Vybírejte z nabídky 38 825 nemovitostí od 826 realitních kanceláří
lupa mobilní menu
Přehled nemovitostí: pronájem komerční > skladové prostory > Dobřejovice Zpět na přehled nabídek

Pronájem obchodně skladových prostor 395 m, Dobřejovice

Prodejce

Makléř: David Machač

Telefon: 720 020 ...

E-mail: machac@c ...

Zobrazit celý kontakt

pronájem

Dobřejovice (okres Praha-východ)

Jesenická

Komerční, Skladové prostory

N6064

18.11.2025

neuvedeno

C - Úsporná

Cena: 249 CZK / m2 / měsíc
Prodejce

Makléř: David Machač

Telefon: 720 020 ...

E-mail: machac@c ...

Zobrazit celý kontakt
Poslat dotaz k nabídce
Zásady používání osobních údajů

Nemovitost nabízí

/loga_velka/7270.jpg

CONTENT REALITY

Průmyslová 1472/11, 102 00 Praha 10 - Hostivař

www.contentreality.cz

Zobrazit kontakt na RK

Zobrazit všechny nabídky RK

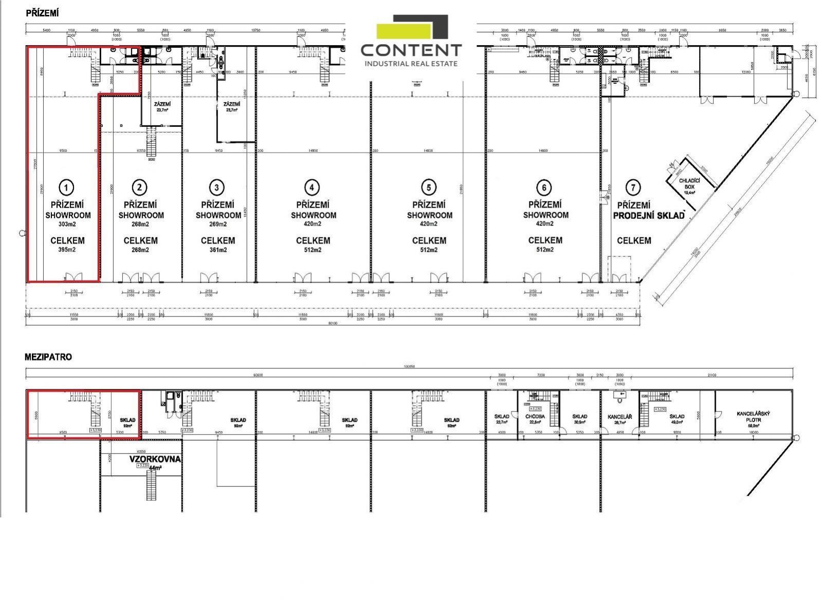
Dobřejovice. V zastoupení majitele a bez provize nabízíme prodejní skladové prostory 395 m, které se nachází v novém komerčním parku na okraji obce Dobřejovice. V těsné blízkosti dálnice D1 a městského okruhu D0. Vzdálenost k dálničnímu nájezdu na D1 2,5 km a vzdálenost nájezdu D0 je 5,0 km. - k dispozici od 01.01. 2026 - showroom, prodejna, kanceláře a sklady - přízemí se zázemím a sprchou 303 m - vestavěné patro v zadní části prostoru 92 m - vnitřní světlá výška skladu 6,2 m - průmyslová bezprašná podlaha - stěny PUR panel tl. 100 mm, U=0,2 W/mK - tepelně izolovaná střecha, střešní okna - čelní prosklená výloha s vchodem a další samostatný vchod pro zásobování zezadu - vytápění / klimatizace TČ s podstropními jednotkami - celková plocha prostoru je 395 m - parkoviště pro zákazníky Cena nájmu je 249,-Kč/m/měsíc + záloha na zúčtovatelné poplatky za služby 19,- Kč/m/měsíc. Pro více informací nás kontaktujte, rádi Vám zajistíme prohlídku nemovitosti.



Nahoru