Prodej, Byt 3+1, Jevany
Makléř: Ing. arch. Eliška Jandová
Telefon: 731 590 ...
E-mail: info@okr ...
Zobrazit celý kontaktTelefon: 731 590 860
E-mail: info@okrealestate.cz
prodej
Bohumil
1088
20.11.2025
2 (dům má 2 podlaží)
osobní
neuvedeno
120 m2
G - Mimořádně nehospodárná
Makléř: Ing. arch. Eliška Jandová
Telefon: 731 590 ...
E-mail: info@okr ...
Zobrazit celý kontaktTelefon: 731 590 860
E-mail: info@okrealestate.cz
Nemovitost nabízí
OK REAL ESTATE s.r.o.
Mánesova 3014/16, 612 00 Brno
Zobrazit kontakt na RK
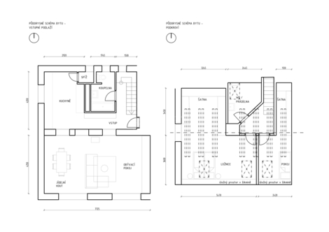
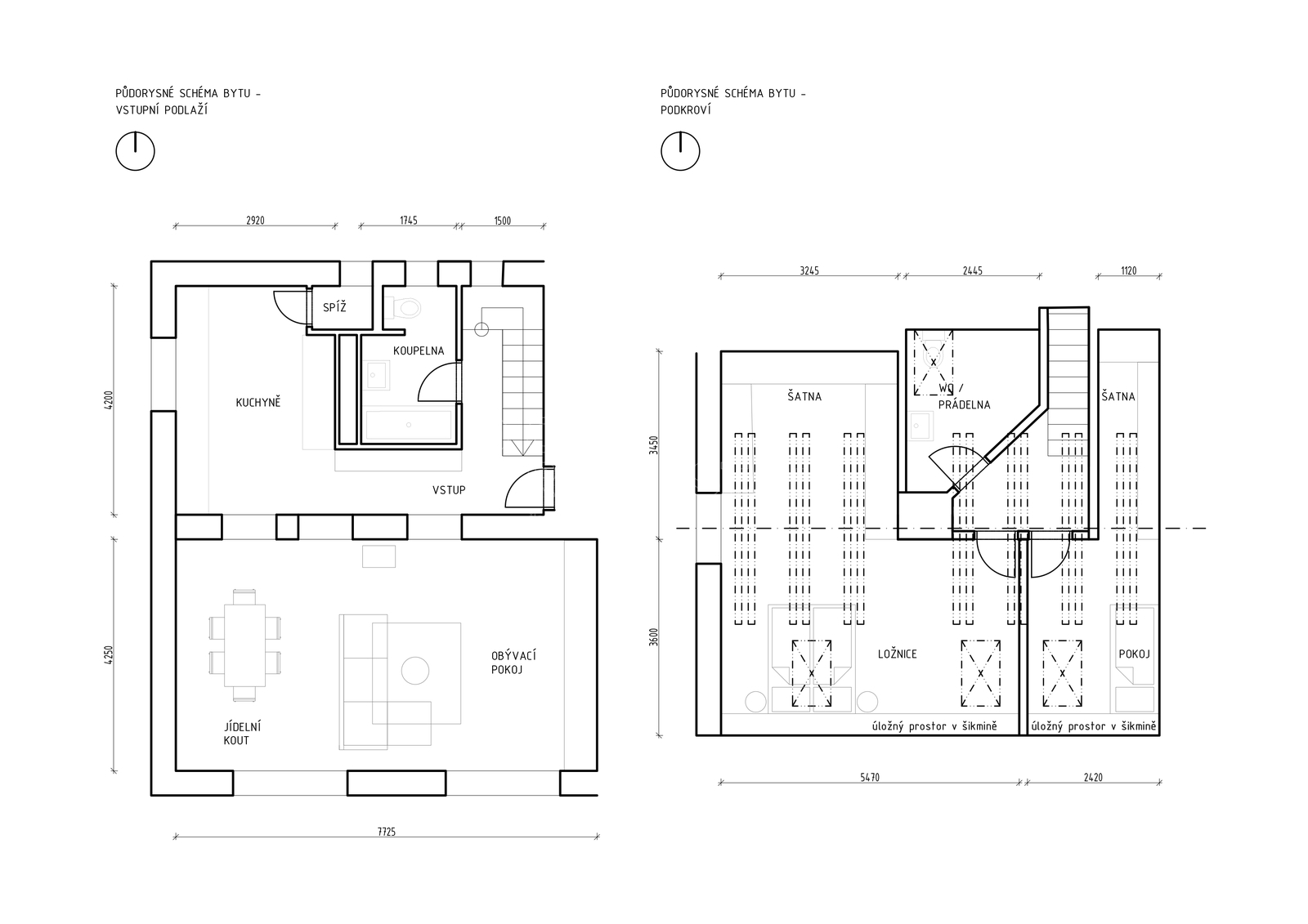
Nabízíme k prodeji atraktivní mezonetový byt 3 + 1 v obci Bohumil okres Praha-východ s velmi dobrou dostupností. Nachází se mezi malebnou obcí Jevany a městem Kostelec nad Černými lesy, které disponuje výbornou občanskou vybaveností jako je škola, školka, supermarkety, sportoviště, lékaři a další služby. Do Prahy na metro Háje se autem dostanete za 35 minut. Tento prostorný byt o užitné ploše 120 m2 poskytuje ideální zázemí pro rodiny s dětmi, které hledají blízko Prahy bezpečné a přívětivé prostředí pro život. Dům je umístěn v zatepleném dvoupodlažním objektu s novými plastovými okny. Rodiny ocení mezonetové uspořádání bytu, které nabízí dostatek prostoru pro pohodlné bydlení. V přízemí se nachází světlý obývací pokoj s krbovými kamny, které vytvoří příjemnou atmosféru v chladných měsících, dále plně vybavená kuchyň, prostorný jídelní kout i koupelna s wc. V patře bytu se nachází dva samostatné pokoje, které jsou využívány jako dětský pokoj a ložnice. Dále je na patře prostorné wc, které je zároveň používané jako prádelna. Bezpečnost dětí je jedním z hlavních prvků, které dělají tuto nemovitost atraktivní. Obec je má klidnou atmosféru, což zajišťuje příjemné rodinné prostředí. Před domem je možné parkovat. Dostatek úložného prostoru je zajištěn díky nadstandartnímu sklepu a sklepní kóji o celkové výměře 10,38 m2. Tato nemovitost nabízí nejen skvělé zázemí pro rodinu, ale i množství příležitostí k aktivnímu trávení volného času v malebné přírodě. Nedaleké Voděradské bučiny vybízí k projížďkám na kole či pěší turistice, v létě oceníte možnost koupání na koupališti Vyžlovka. V případě zájmu o prohlídku nás neváhejte kontaktovat.
Byt, 3+1, prodej, Velké Popovice, Praha východ
Nabízíme k prodeji světlý byt 3+1 o výměře cca 75 m, situovaný ve 2. nadzemním podlaží třípatrového panelového domu v klidné části Velkých Popovic.…
Byt 3+1/L v OV na hypotéku, s garáží, 68,51 m2, Měšice
Nabízíme Vám exkluzivně k prodeji byt v osobním vlastnictví - na hypotéku, dispozice 3+1/L s lodžií ve zvýšeném přízemí (1. nadzemní podlaží)…