Pronájem kanceláře 109 m2, Strakonická, Praha - Smíchov
Makléř: Stanislav Mařík
Telefon: 607 606 ...
E-mail: marik@so ...
Zobrazit celý kontaktTelefon: 607 606 216
E-mail: marik@soccer-reality.cz
pronájem
Strakonická
Komerční, Kanceláře a administrativní prostory
N66492
05.01.2026
osobní
109 m2
A - Mimořádně úsporná
Makléř: Stanislav Mařík
Telefon: 607 606 ...
E-mail: marik@so ...
Zobrazit celý kontaktTelefon: 607 606 216
E-mail: marik@soccer-reality.cz
Nemovitost nabízí
Soccer Reality s.r.o.
ul. Bratří Dohalských 144/8, 190 00 Praha 9 - Vysočany
Zobrazit kontakt na RK777 276 667
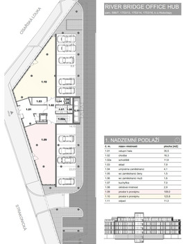
Soccer Reality zprostředkuje k pronájmu exkluzivní kancelářské prostory v nově vzniklém administrativním komplexu RIVER BRIDGE OFFICE HUB. Tento moderní kancelářský areál se nachází v žádané lokalitě Prahy 5, přímo na Strakonické ulici. K dispozici jsou kancelářské prostory v 1. NP o velikosti 123,8 m2 a 109 m2. Prostory budou dokončené ve stavu shell&core, což nabízí skvělou příležitost vytvořit si pracovní prostředí přesně podle svých představ. Každou jednotku lze pronajmout samostatně, případně využít celý prostor 232,8 m2 jako soukromé patro pro váš tým. K nastěhování od 1.3. 2026 Cena nájemného: Prvních 9 měsíců = 7,99 EUR/m2 (bez vnitřního vybavení) Prvních 3 měsíců = 7,99 EUR/m2 (se základním vnitřním vybavením (podlahová krytina, osvětlení) Plné nájemné = 14,99 EUR/m2 Služby = 140 Kč/m2 Sociální zázemí 66m2 = zdarma Parkovné: - krytá parkovací stání pod budovou €115/měsíc - venkovní parkovací stání €85/měsíc - parkovací stání za mostem 1.010Kč/měsíc River Bridge Office Hub nabízí moderní pracovní prostředí v jedné z nejžádanějších pražských lokalit s výbornou dopravní dostupností a širokým zázemím služeb. Zaujala vás nabídka? Zavolejte nebo napište - rád vám prostor osobně představím.
Praktické kancelářské prostory CITY CENTER, 37 m2, ul. Klimentská, Praha 1 - Nové Město
Nabízíme Vám jedinečnou možnost praktických kancelářských prostor Regus CITY CENTRE (37 m2), určených pro jednotlivce v samotném centru Prahy v ulici…
Komfortní kancelářský prostor pro 4 osoby (18 m2), Praha 1 - Nové Město, ul. Na Poříčí
Chcete se zdržovat a pracovat v komfortním, příjemném pracovním prostředí? Odpovědí na všechny Vaše otázky je líbivý kancelářský prostor až pro 4…