Pronájem bytu 3+kk, Kukučínova, Krč, 67m2, Praha
Makléř: Miloslava Kačerová
Telefon: 222 703 ...
E-mail: podpora@ ...
Zobrazit celý kontaktTelefon: 222 703 030
E-mail: podpora@idealninajemce.cz
pronájem
Kukučínova
N6975
27.11.2025
5 (dům má 12 podlaží)
osobní
67 m2
67 m2
C - Úsporná
Makléř: Miloslava Kačerová
Telefon: 222 703 ...
E-mail: podpora@ ...
Zobrazit celý kontaktTelefon: 222 703 030
E-mail: podpora@idealninajemce.cz
Nemovitost nabízí
Ideální nájemce
Lazaretní 925/9, 615 00 Brno
Zobrazit kontakt na RK222 703 030
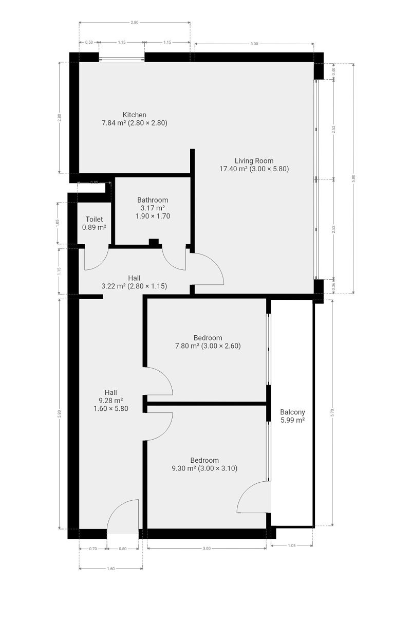
K dlouhodobému podnájmu Vám nabízíme krásný, světlý byt o dispozici 3+kk s podlahovou plochou 67m2. Byt se nachází v 5.patře panelového domu s výtahem, ve velmi klidné, přesto dobře dopravně dostupné lokalitě pražské Krče. Skládá se z velké, centrální vstupní chodby, zařízené velkou vestavnou šatní skříní, která Vám poskytne nadstandartní množství úložných prostor. Dále je zde velmi světlý obývací pokoj s krásným výhledem do přilehlé zahrady a nedaleký les, který navazuje na kuchyňský kout. Ten je zařízen sklokeramickou varnou deskou, digestoří, mikrovlnnou troubou, troubou a pračkou. Toaleta je umístěna samostatně. Koupelna je zařízena vanou a koupelnovou skříňkou. Z ložnice lze vejít na velmi prostornou, zcela novou lodžii s orientací do zahrad. Nachází se v lokalitě s kompletní občanskou vybaveností - pár kroků od od domu je supermarket Albert, několik základních i mateřských škol, dětská hřiště a autobusová zastávka "Zálesí". Pro sportovní a volnočasové aktivity můžete využít blízký "Kunratický a Michelský les". Nedaleko je také Fakultní Thomayerova nemocnice a do lokality bude přivedena nová linka metra D. Stanice metra C "Kačerov" je od domu 1 zastávku autobusem. Zde se také nachází stejnojmenná vlaková stanice. Zálohové platby, které jsou nyní odhadované pro 4 osoby už obsahují zálohy na elektřinu a pojištění domácnosti. Byt je k dispozici ihned.
Pronájem, Byt 3+kk, Praha 2
Nabízíme velmi pěkný zařízený byt k pronájmu 3+kk o celkové rozloze 110 m2, který se nachází ve čtvrtém nadzemním podlaží cihlové budovy v ulici…
Pronájem bytu 3+kk, 81,8 m s balkonem Rezidence Parková čtvrť, Žižkov
Hledáte moderní a komfortní bydlení v jedné z nejrychleji se rozvíjejících částí Prahy? Nabízíme k pronájmu byt 3+kk v prestižním projektu Rezidence…