Vybírejte z nabídky 38 822 nemovitostí od 826 realitních kanceláří
lupa mobilní menu
Přehled nemovitostí: prodej domy > rodinné domy > Hodonín Zpět na přehled nabídek

Prodej rodinného domu 279 m2, Hodonín

Prodejce

Makléř: Krist Roman

Telefon: 608 376 ...

E-mail: krist@da ...

Zobrazit celý kontakt

prodej

Hodonín (okres Hodonín)

Mírové nám.

Domy, Rodinné domy

14352

24.11.2025

177 m2

279 m2

D - Méně úsporná

Cena: 10490000 CZK / objekt
Poznámka k ceně: včetně poplatků, včetně provize, včetně právního servisu 1
Prodejce

Makléř: Krist Roman

Telefon: 608 376 ...

E-mail: krist@da ...

Zobrazit celý kontakt
Poslat dotaz k nabídce
Zásady používání osobních údajů

Nemovitost nabízí

/images/img-no-foto-small.png

Dáme domov

Radlická 2343/48, 15000 Praha

Zobrazit kontakt na RK

Zobrazit všechny nabídky RK

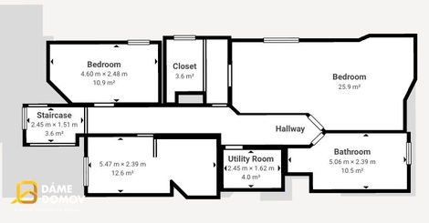
Nabízíme k prodeji exkluzivní rodinný dům na prestižní adrese Mírové náměstí v Hodoníně. Dům prošel kompletní moderní rekonstrukcí s využitím špičkových materiálů a je připraven k okamžitému nastěhování. Hlavní parametry • obytná plocha 200 m2 • soukromá střešní terasa 40 m2 • prostorná dvojgaráž • kompletní rekonstrukce ve vysokém standardu • moderní dispozice, světlý a vzdušný interiér • prémiové materiály, kvalitní technologie a nadčasový design Popis nemovitosti V přízemí se nachází hlavní obytný prostor s moderní kuchyní, která kombinuje kvalitní zpracování a funkční design. Velkorysé místnosti poskytují dostatek prostoru pro rodinný život i reprezentativní využití. Luxusně vybavené koupelny, moderní podlahy a pečlivě zvolené materiály dotvářejí nadstandardní atmosféru celého domu. Dominantou nemovitosti je střešní terasa o velikosti 40 m2, která nabízí naprosté soukromí a příjemný venkovní prostor pro posezení, relax nebo grilování a hned vedle takové terasy najdete vlastní welnes. Součástí domu je také dvojgaráž s pohodlným vjezdem a praktickým úložným prostorem. Lokalita Mírové náměstí je jednou z nejvyhledávanějších adres v Hodoníně. V pěší dostupnosti najdete veškerou občanskou vybavenost - obchody, restaurace, školy, školky, služby i zeleň. Výborná dostupnost a klidná, bezpečná lokalita dělají z této nemovitosti ideální místo pro moderní rodinné bydlení. Zavolejte mi ještě dnes. Rád Vás vezmu na prohlídku. Makléř Roman Krist, RK Dáme domov s.r.o.



Nahoru