Pronájem, Administrativní prostory a objekty, Mladá Boleslav
Makléř: Helena Dlouhá Škutová
Telefon: 775 222 ...
E-mail: hdlouha@ ...
Zobrazit celý kontaktTelefon: 775 222 382, 775 222 382
E-mail: hdlouha@dumrealit.cz
pronájem
Mladá Boleslav (okres Mladá Boleslav)
Bělská
Komerční, Kanceláře a administrativní prostory
653124
23.12.2025
osobní
118 m2
G - Mimořádně nehospodárná
Makléř: Helena Dlouhá Škutová
Telefon: 775 222 ...
E-mail: hdlouha@ ...
Zobrazit celý kontaktTelefon: 775 222 382, 775 222 382
E-mail: hdlouha@dumrealit.cz
Nemovitost nabízí
Dumrealit.cz
Svornosti 8, 150 00 Praha 5
Zobrazit kontakt na RK
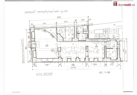
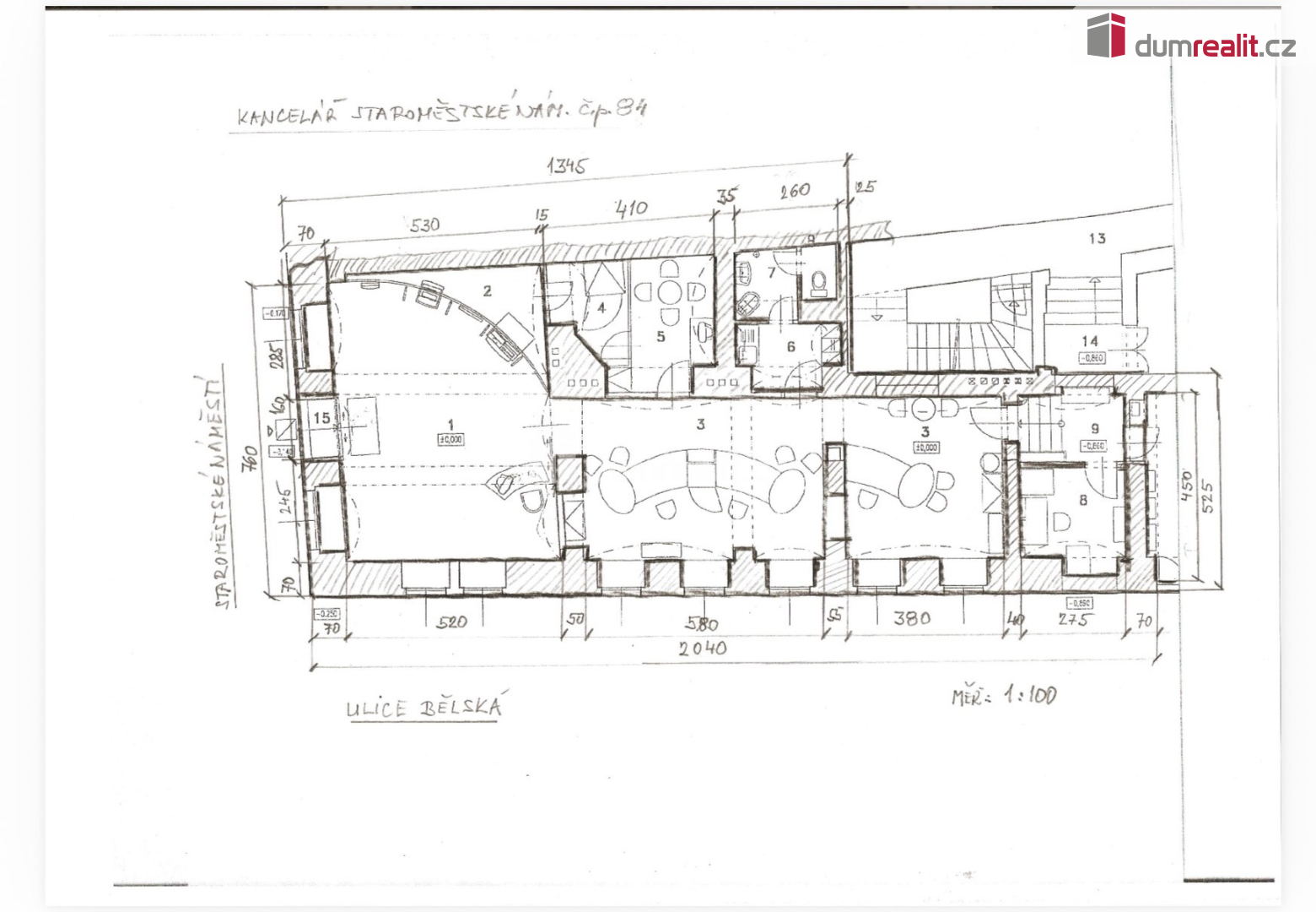
Pronájem reprezentativních nebytových prostor - 118 m2, Staroměstské náměstí, Mladá Boleslav Dovolujeme si nabídnout k pronájmu vysoce kvalitně vybavené a ihned volné nebytové prostory o výměře 118 m2, umístěné v přízemí rohového domu na prestižní adrese Staroměstské náměstí - přímo vedle Magistrátu města Mladá Boleslav, na rohu s Bělskou ulicí a také 5 min chúze od nového vývojového centra Škody Auto (Česaná) Vstup přímo z náměstí zajišťuje maximální viditelnost i skvělou dostupnost pro klienty. Lokalita je po kompletní revitalizaci a patří k nejžádanějším místům ve městě. Hlavní přednosti prostoru Reprezentativní, nově zrekonstruované prostory Kvalitní kancelářský nábytek v ceně Bezpečnostní systém včetně kamer Kartový systém vstupu Klimatizace a datové rozvody Vlastní plynové vytápění Velký, pevně zabudovaný trezor Možnost parkování u domu, případně ve veřejných podzemních garážích Vhodné využití Prostory jsou ideální pro: bankovní nebo firemní klientská centra právní či poradenské kanceláře pojišťovny, agentury, služby reprezentativní sídlo firmy s provozem pro veřejnost Uspořádání i vybavení umožňuje pohodlnou práci administrativních týmů i obsluhu individuálních i korporátních klientů. Finanční podmínky Nájemné: 40 000 Kč / měsíc Kauce. Provize: 1 měsíční nájem Energie a služby: nejsou součástí ceny, vychází od cca 5000 Kč měs. ( voda, plyn a elektřina) Prostor je k dispozici ihned. Neváhejte nás kontaktovat ohledně dalších informací či domluvení prohlídky. Ev. číslo: 653124. Energetický štítek: G
Pronájem, Administrativní prostory a objekty, Mladá Boleslav
Dovolujeme si vám exkluzivně nabídnout k pronájmu komerční prostory o výměře 75 m2 v centru Mladé Boleslavi. Prostory jsou po kompletní rekonstrukci…
Pronájem kancelářského prostoru, 265 m2, Mladá Boleslav
Nabízíme k pronájmu komerční prostory v srdci Mladé Boleslavi, ideální pro dynamicky se rozvíjející firmy hledající prestižní místo pro své podnikání…