Prodej moderního rodinného domu 4+kk s pozemkem 566 m2, Kroměříž Bílany
Makléř: Bc. Kalousek David
Telefon: 725 293 ...
E-mail: david.ka ...
Zobrazit celý kontaktTelefon: 725 293 969
E-mail: david.kalousek@century21.cz
prodej
Bílany
960867
27.11.2025
1
osobní
566 m2
118 m2
B - Velmi úsporná
Makléř: Bc. Kalousek David
Telefon: 725 293 ...
E-mail: david.ka ...
Zobrazit celý kontaktTelefon: 725 293 969
E-mail: david.kalousek@century21.cz
Nemovitost nabízí
CENTURY 21 Style Happy
Štefánikova 2464/7, 76701 Zlín
www.century21.cz/kancelar-style-happy
Zobrazit kontakt na RK739 565 656
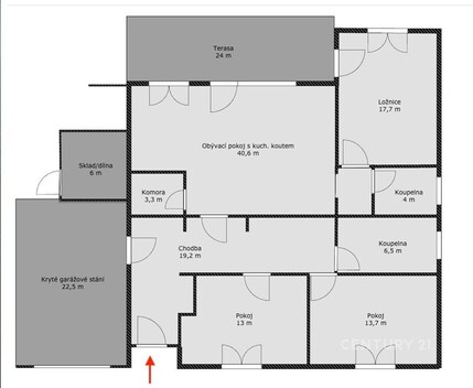
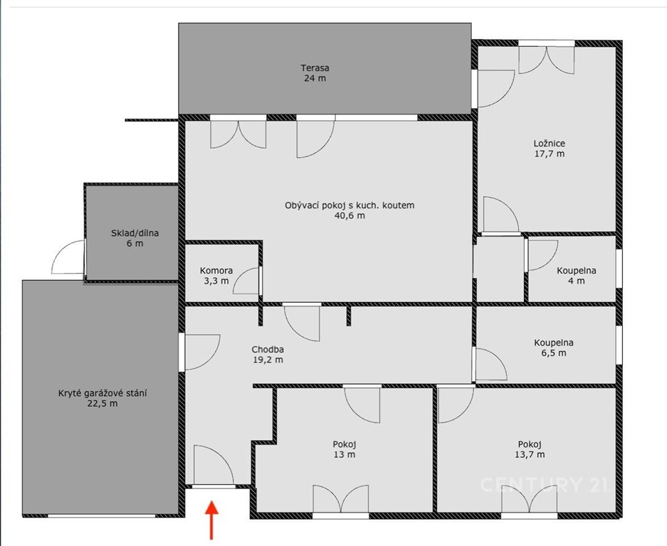
Prodej samostatně stojícího rodinného domu 4+kk s pozemkem o celkové rozloze 566 m2 v Bílanech, místní části města Kroměříže. Tento dům kolaudovaný v roce 2018 splňuje veškeré požadavky na moderní rodinné bydlení s naprostým soukromím. Kvalitní zateplená dřevěná konstrukce s celulózovou izolací mezi sloupky. Teplovodní podlahové vytápění v celém domě napojené na plynový kotel. Platová okna. To vše zajišťuje tepelný komfort, účinné odhlučnění a řadí dům do energetické kategorie B. Součástí skvěle dispozičně řešeného domu je kuch. linka s vestavnými spotřebiči a vestavné skříně v chodbách. Dvě koupelny = 2x WC, vana, sprchový kout a prostor na pračku i sušičku. Komora na skladování potravin. Dostatek denního světla v obývací části zajišťuje stropní světlík. Sedlová střecha s plechovou krytinou ve formátu tašek. Vinylové podlahy v dekoru dřeva v obytných místnostech. V koupelnách dlažba a jako doplňkové vytápění stropní topné panely. Technické vybavení. • Elektricky ovládané venkovní žaluzie a rolety • Venkovní kamerový systém kolem celého domu • Příprava na krbová kamna v obývacím pokoji Udržovaná zahrada s okrasnými keři a stromy, krytým venkovním posezením, dětským hřištěm a uzamykatelnou dřevěnou dílnou/komorou. K parkování slouží z jedné strany domu garážové kryté stání, z té druhé venkovní stání u domu případně dlouhá dlážděná příjezdová cesta.
Prodej činžovní dům 3 bytové jednotky, garáž, bazén , vinárna v historické části města Kroměříž
Nabízíme Vám exkluzivně k prodeji činžovní dům o třech bytových jednotkách ( s potenciálem 5 jednotek ), s garáží, bazénem, vinárnou, pergolou pro…
Prodej rodinný dům 3+1 s garáží, terasou
Nabízíme Vám jedinečnou příležitost koupě prostorného rodinného domu v malebné lokalitě Na Návsi, Kroměříž - Vážany. Tento krásný cihlový dům o…