Vybírejte z nabídky 38 667 nemovitostí od 824 realitních kanceláří
lupa mobilní menu
Přehled nemovitostí: prodej domy > rodinné domy > Loket Zpět na přehled nabídek

Prodej prostorného rodinného domu s velkým pozemkem a potenciálem pro drobné podnikání, Loket

Prodejce

Makléř: Veselská Martina

Telefon: 420 777 ...

E-mail: martina. ...

Zobrazit celý kontakt

prodej

Loket (okres Benešov)

Domy, Rodinné domy

969757

30.11.2025

1

osobní

6 186 m2

261 m2

G - Mimořádně nehospodárná

Cena: 9490000 CZK / objekt
Prodejce

Makléř: Veselská Martina

Telefon: 420 777 ...

E-mail: martina. ...

Zobrazit celý kontakt
Poslat dotaz k nabídce
Zásady používání osobních údajů

Nemovitost nabízí

/loga_velka/10035.webp

CENTURY 21 Birdie Reality - pobočka NextRound

28. října 813/248, 709 00 Ostrava

www.century21.cz/kancelar-birdie-reality-pobocka-nextround

Zobrazit kontakt na RK

Zobrazit všechny nabídky RK

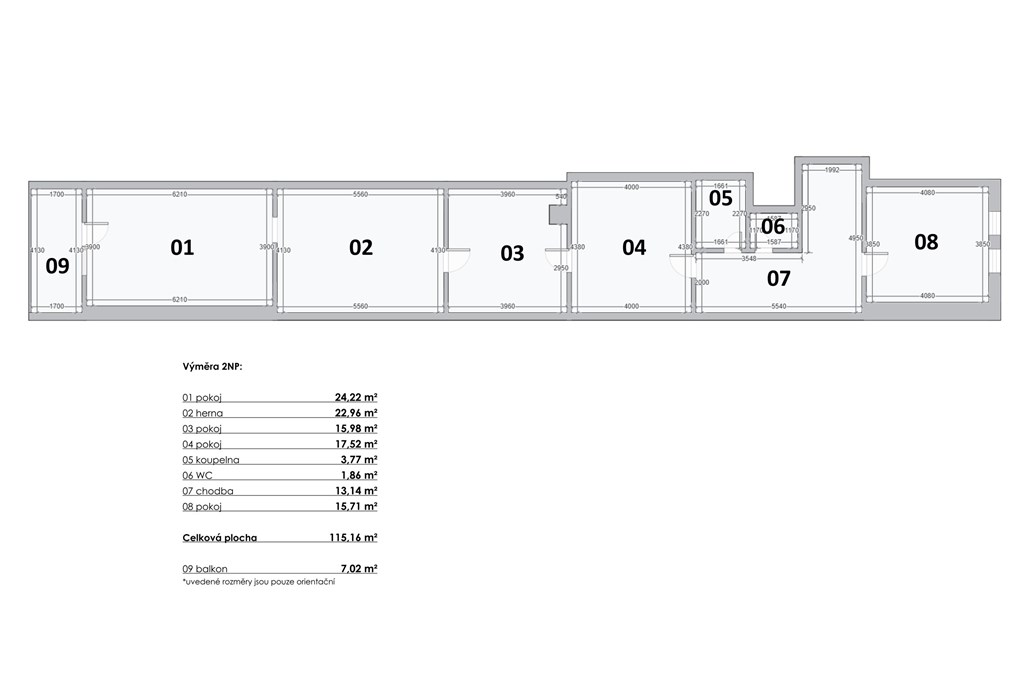
Představujeme vám jedinečnou příležitost ke koupi rozsáhlého rodinného domu, který nabízí komfortní bydlení a zároveň skvělý potenciál pro komerční využití. To vše v klidné lokalitě Bezděkov u Dolních Kralovic s výbornou dostupností. Dům je dvoupodlažní, dispozičně velmi dobře řešený a nabízí: • Celková užitná plocha domu : 260.62 m2 o Přízemí: 139.07 m2 o Patro : 121.55 m2 • Velikost zahrady: 6 186 m2 - Rozlehlá plocha, která zaručuje soukromí, možnosti relaxace i dalšího rozvoje. Vybavení a technické informace • Vytápění: o Přízemí: Moderní teplovodní podlahové topení pro maximální tepelný komfort. o 1. Patro: Kvalitní radiátory. o Zdroj tepla: Elektrokotel. o Doplňkové vytápění: Útulný krb v přízemí. • Ohřev Vody: 2 bojlery o objemech 100 l a 160 l. • Elektřina: Kompletní rozvody v mědi, třífázový jistič. • Voda a Odpad: o Aktuálně: Vlastní studna (napojení na dům) a septik. o Možnost připojení: Na hranici pozemku je přiveden městský vodovodní řád, k dispozici je i nevyužívaná ČOV (čistírna odpadních vod). Lokalita a občanská vybavenost Bezděkov je malebná obec na pomezí Středočeského kraje a kraje Vysočina, obklopená čistou přírodou, loukami a lesy. Jedná se o místo s minimálním provozem a příjemnou atmosférou, vhodné pro rodiny s dětmi, rekreační bydlení nebo klidné trvalé bydlení. Veškerá širší občanská vybavenost se nachází v nedalekých Dolních Kralovicích (cca 3-5 minut autem): • mateřská a základní škola • obchody s potravinami a smíšeným zbožím • pošta • lékař a lékárna • restaurace, kavárny • sportovní areál, dětská hřiště Další kompletní vybavenost v Ledči nad Sázavou, Humpolci či Vlašimi. Bezděkov má výborné napojení na dálnici D1 - nájezd Exit 65 - Dolní Kralovice je vzdálen jen několik minut jízdy. • Praha - cca 50-55 minut • Benešov - cca 30 minut • Humpolec - cca 20 minut • Jihlava - cca 40 minut Autobusové spojení je dostupné v Dolních Kralovicích, odkud je možné pokračovat směr Benešov, Vlašim či Pelhřimov. Díky užitné ploše 261 m2 a rozsáhlému pozemku o výměře 6 186 m2 nabízí nemovitost výjimečný potenciál pro drobnou podnikatelskou činnost, rekreační provoz či zážitkové služby. Klidná venkovská poloha, soukromí a působivá okolní krajina vytvářejí ideální podmínky pro vytvoření originálního a profitabilního projektu. Možnosti využití: 1) Malé svatební místo / rodinné oslavy • venkovní obřady • zahradní párty ve stanu • menší svatební hostiny nebo narozeniny • možnost doplnění o altán, pergolu nebo modulární stanovou konstrukci 2) Firemní teambuildingy a malé eventy • teambuildingové programy • školení v přírodě • workshopy pro malé firmy 3) Ubytování - "Venkovský penzion / glamping" • malé ubytovací kapacity • umístění 2-4 glamping stanů či tiny housů • vytvoření klidné zóny pro hosty (sauna, vířivka, ohniště, relax zóna) 4) Agroturistika • chov drobných zvířat • sezónní farmářské produkty • edukační programy pro děti a školy 5) Ateliér, dílna nebo tvůrčí prostor • umělecký ateliér • truhlárna / keramická dílna



Nahoru