Byt, 4+kk, prodej, Hřibská, Praha 10, Strašnice, Praha
Makléř: Bc. Vendy Tranová
Telefon: 735 572 ...
E-mail: vendy@no ...
Zobrazit celý kontaktTelefon: 735 572 232
E-mail: vendy@novaetvetera.cz
prodej
Hřibská
1650
26.11.2025
6 (dům má 7 podlaží)
osobní
neuvedeno
neuvedeno
C - Úsporná
Makléř: Bc. Vendy Tranová
Telefon: 735 572 ...
E-mail: vendy@no ...
Zobrazit celý kontaktTelefon: 735 572 232
E-mail: vendy@novaetvetera.cz
Nemovitost nabízí
NOVA ET VETERA
nám. Jiřího z Poděbrad 1554/6, Praha 3 - Vinohrady
Zobrazit kontakt na RK
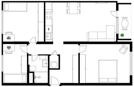
Přímý majitel nabízí k prodeji světlý byt 4+kk s lodžií o celkové výměře 75 m, který se nachází v 7. nadzemním podlaží zrekonstruovaného a zatepleného domu v oblíbené části Prahy 10 Strašnice, v ulici Hřibská. Jedná se o klidnou rezidenční lokalitu s výbornou občanskou vybaveností. V okolí najdete školy, školky, obchody, restaurace, kavárny, sportoviště i zdravotnická zařízení. Přímo u domu se nacházejí autobusové zastávky Hostýnská a Na Palouku, v docházkové vzdálenosti také tramvajové zastávky Vinice a Solidarita se spojením na metro A Strašnická nebo Želivského. Okolí nabízí dostatek zeleně. Přímo u domu se rozkládá Park pod školou, v blízkosti je také Malešický park a nedaleko se nachází park Gutovka se sportovními areály a plochami pro volnočasové aktivity. Byt právě prochází kompletní a kvalitní rekonstrukcí, která zahrnuje nové rozvody elektřiny, vody a odpadů, nové podlahy, moderní obklady a dlažbu značky Marazzi, koupelnu se sprchovým koutem a sanitou Grohe a také novou kuchyňskou linku se spotřebiči Gorenje, na kterou je poskytována prodloužená záruka 5 let. Dispozičně byt nabízí obývací pokoj s kuchyňským koutem a vstupem na lodžii o velikosti 3 m, tři samostatné pokoje vhodné jako ložnice a dětský pokoj či pracovna, moderní koupelna s toaletou a technická místnost. K bytu náleží sklepní kóje o velikosti 1 m. Byt je orientovaný na východ a západ. Vytápění je centrální dálkové. Energetická třída budovy je C - úsporná. Byt je prodáván přímo majitelem, bez provize, a cena zahrnuje kompletní právní servis. Fotografie jsou ilustrační, ale odpovídají standardu a kvalitě provedené rekonstrukce. Pro více informací a domluvení osobní prohlídky nás neváhejte kdykoliv kontaktovat.
Krásný světlý byt 4+kk s dvěma balkony u pražské zoo, Praha 7 Troja
Rezidence Bella Vista Praha 7 Troja, Pod Hrachovkou 4+kk 118,8 m2 s dvěma balkony 22,5 m2 a 7,2 m2 v 2. nadzemním podlaží Benefity bytu: Byt s…
Prodej bytových a nebytových jednotek Bělehradská 1604/29, Praha 2 Vinohrady
Prodej bytových a nebytových jednotek Bělehradská 1604/29, Praha 2 Vinohrady Historická krása s moderním komfortem. Bydlení či podnikání v srdci…