Byt o velikosti 2KK v ulici Janouškova, Třebíč
Makléř: Ing. Michaela Buďová
Telefon: 731 966 ...
E-mail: budova@s ...
Zobrazit celý kontaktTelefon: 731 966 802
E-mail: budova@stecoreality.cz
pronájem
Janouškova
Janouškova Byt A
25.11.2025
1 (dům má 1 podlaží)
osobní
neuvedeno
neuvedeno
G - Mimořádně nehospodárná
Makléř: Ing. Michaela Buďová
Telefon: 731 966 ...
E-mail: budova@s ...
Zobrazit celý kontaktTelefon: 731 966 802
E-mail: budova@stecoreality.cz
Nemovitost nabízí
Šteco Reality
Stavební 1454, Třebíč
Zobrazit kontakt na RK
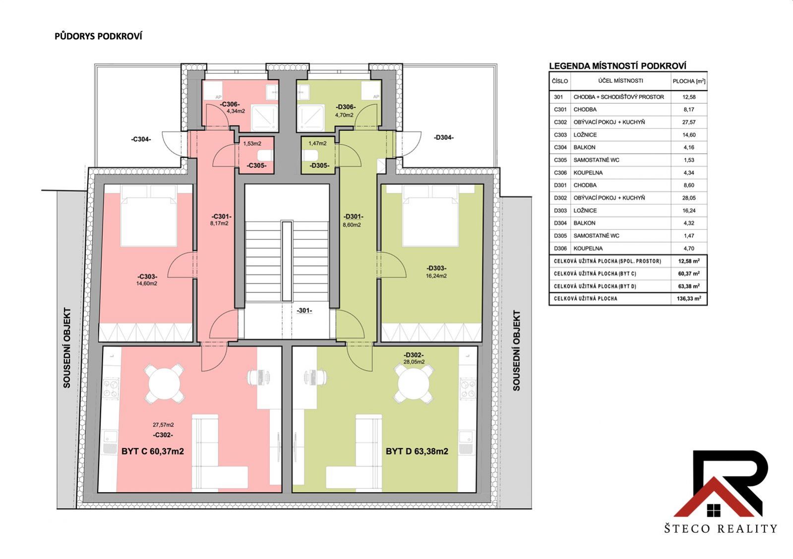
Nabízíme k pronájmu nový byt o velikosti 2 + kk, situovaný v oblíbené části obce Horka-Domky, v ulici Janouškova, okrese Třebíč. Tento cihlový objekt je ve velmi dobrém stavu a nachází se ve druhém nadzemním podlaží budovy s celkovým počtem dvou podlaží. Byt má užitnou plochu 65,67 m, což poskytuje dostatek prostoru pro pohodlné bydlení. Interiér je částečně vybaven, což umožňuje novému nájemci přizpůsobit si prostor dle svých představ a potřeb. Lokalita, ve které se nemovitost nachází, je klidná a zároveň dobře dostupná. V blízkosti bytu jsou veškeré potřebné služby, které zajišťují pohodlné a komfortní bydlení. K bytu náleží zahrada s pergolou, která je k užívání. Tento prostor nabízí možnost relaxace a trávení volného času na čerstvém vzduchu, ideální pro pořádání grilování s přáteli nebo rodinou. Celkově se jedná o ideální volbu pro jednotlivce či páry hledající moderní bydlení v klidné lokalitě s dobrou dostupností do centra Třebíče. V případě zájmu o prohlídku nás neváhejte kontaktovat. Možné jsi i další dispozice bytů.
Pronájem byty 2+kk, 50 m2 - Třebíč - Vnitřní Město
Exkluzivní pronájem bytu 2KK v srdci Třebíče - Žijte v klidu s výhledem na řeku! Představte si probouzení s uklidňujícím šuměním řeky, a přitom jste…
Pronájem byty 2+kk, 41 m2 - Třebíč (byt č.5)
Nabídka jedinečného bydlení v srdci Třebíče! „Staňte se prvními obyvateli nově zrekonstruovaného domova - užijte si pocit nového začátku!“ Hledáte…
Pronájem bytu 2+kk Třebíč na Eurobydleni.cz