Pronájem skladu 447m2 ve 2.patře s výtahem - Jirny, Tovární 26 Praha východ
Makléř: Luboš Borovka
Telefon: 736 490 ...
E-mail: lubos.bo ...
Zobrazit celý kontaktTelefon: 736 490 317
E-mail: lubos.borovka@realityprostor.cz
pronájem
Tovární
11604
27.11.2025
osobní
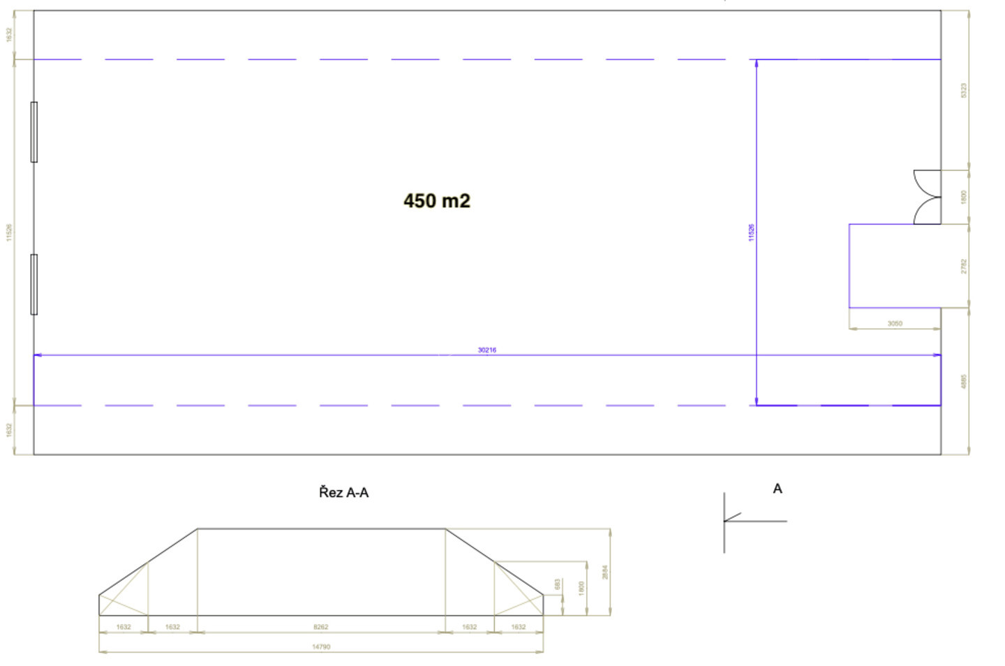
447 m2
G - Mimořádně nehospodárná
Makléř: Luboš Borovka
Telefon: 736 490 ...
E-mail: lubos.bo ...
Zobrazit celý kontaktTelefon: 736 490 317
E-mail: lubos.borovka@realityprostor.cz
Nemovitost nabízí
Reality PROSTOR s.r.o
Chlumecká 1539/7, 19800 Praha 9
Zobrazit kontakt na RK281 910 232
Nabízíme k pronájmu sklad o podlahové ploše 447 m2 ve 2.patře s výtahem o nosnosti 1000Kg v komerčním areálu na adrese Tovární 26, Praha východ Jirny. Skladový prostor je ve druhém patře celkem o rozloze 447 m2. Prostor je přístupný nákladním výtahem s nosností 1 000 kg a schodištěm, příjezd nákladních vozidel k rampě která disponuje dostatečným manipulačním prostorem pro vozidla do 5 t. Sklad je vybaven topením pro temperování proti zamrznutí a v přízemí jsou k dispozici společné toalety. Průkaz energetické náročnosti zatím nebyl vydán, proto je administrativně uvedena jako třída G - úsporná, což neodráží skutečnou spotřebu energie. Výborná dopravní dostupnost - snadné napojení na dálnici D11 a Pražský okruh, dobrá dostupnost do centra Prahy i do průmyslových zón v okolí, zastávka MHD přímo před budovou (směr Černý Most, Brandýs nad Labem, Úvaly a další směry).
Pronájem skladu - komerčního prostoru 236 m2 ve 2.patře s výtahem - Jirny, Tovární 26 Praha východ
Nabízíme k pronájmu sklad o podlahové ploše 236 m2 ve 2.patře s výtahem o nosnosti 1000Kg v komerčním areálu na adrese Tovární 26, Praha východ Jirny…
Pronájem skladu - komerčního prostoru 683 m2 ve 3.NP s výtahem - Jirny, Tovární 26 Praha východ
Nabízíme k pronájmu sklad o podlahové ploše 683 m2 ve 3. NP s výtahem o nosnosti 1000Kg v komerčním areálu na adrese Tovární 26, Praha východ Jirny.…