Prodej RD se zahradou, Dolánky nad Ohří
Makléř: Šulcová Jolana
Telefon: 420 603 ...
E-mail: jolana.s ...
Zobrazit celý kontaktTelefon: 420 603 163 679
E-mail: jolana.sulcova@era-reality.cz
prodej
Dolánky nad Ohří (okres Litoměřice)
971466
07.05.2026
2
osobní
677 m2
108 m2
G - Mimořádně nehospodárná
Makléř: Šulcová Jolana
Telefon: 420 603 ...
E-mail: jolana.s ...
Zobrazit celý kontaktTelefon: 420 603 163 679
E-mail: jolana.sulcova@era-reality.cz
Nemovitost nabízí
Severní realitní Ústí nad Labem s.r.o.
Masarykova 635/159, 400 01 Ústí nad Labem
Zobrazit kontakt na RK603 163 679
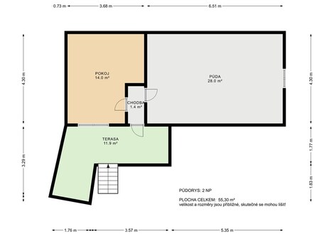
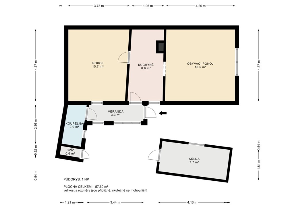
Nabízíme k prodeji menší RD s dispozicí 2+1, resp.3+1, příslušenstvím a dvorkem na pozemku celkem 106 m2 a dále spolu s ním zahradu 570 m2, vzdálenou cca 5 min chůze. Nemovitosti jsou nabízeny jako celek, nelze prodat zahradu samostatně. Domek je ze smíšeného zdiva a sloužil k trvalému bydlení. Je napojený na veškeré dostupné IS elektřinu, vodovod a kanalizaci, plyn není. V přízemí se nachází 2 pokoje, kuchyňka, předsíň a malá koupelna se sprchovým koutem, v patře, přístupném po venkovních schodech, je pak další, letní pokoj, otevřená terasa a půda. Ze dlážděného dvora vejdete do venkovní komory a kůlny/dílny. Ulička, v níž se domek nachází, je přístupná autem do vzdálenosti cca 10 m od domku, pak už jen pěšky. Zaparkujete však velmi blízko v příjezdové ulici cca 80 m od domku. Zahrada je úžasným bonusem 5 min chůze, rovinatá, s přípojkou el.proudu a vlastní studnou o hloubce 5 m, která dosud nikdy nevyschla. Získáte útulný domek jako ve Zlaté uličce, který si dobudujete podle svých představ, a zahradu, kde realizujete všechny své sny. Ráda Vám podám bližší informace a zajistím prohlídku domku. Pomoc s vyřízením hypotéky v případě potřeby samozřejmostí.
Prodej rodinného domu 5+1, 403 m2, Horní Řepčice okr. Litoměřice
Naše společnost zprostředkuje exkluzivní prodej rodinného domu 5+1, v klidné obci Horní Řepčice okr. Litoměřice, s pozemkem o celkové výměře 403 m. V…
Rodinný dům 5+kk, 131,7 m2, s pozemkem 406 m2, Roudnice nad Labem, C2
Jedná se o dvoupodlažní, moderní rodinný dům (dvojdům) 5+kk, 131,7m2, s plochou střechou, který je postaven na pozemku o rozloze 406 m2, v rezidenční…