Pronájem novostavby skladu 875 m, Králův Dvůr
Makléř: David Machač
Telefon: 720 020 ...
E-mail: machac@c ...
Zobrazit celý kontaktTelefon: 720 020 656
E-mail: machac@contentreality.cz
pronájem
Pod Dálnicí
N6202
27.11.2025
neuvedeno
D - Méně úsporná
Makléř: David Machač
Telefon: 720 020 ...
E-mail: machac@c ...
Zobrazit celý kontaktTelefon: 720 020 656
E-mail: machac@contentreality.cz
Nemovitost nabízí
CONTENT REALITY
Průmyslová 1472/11, 102 00 Praha 10 - Hostivař
Zobrazit kontakt na RK272 142 234
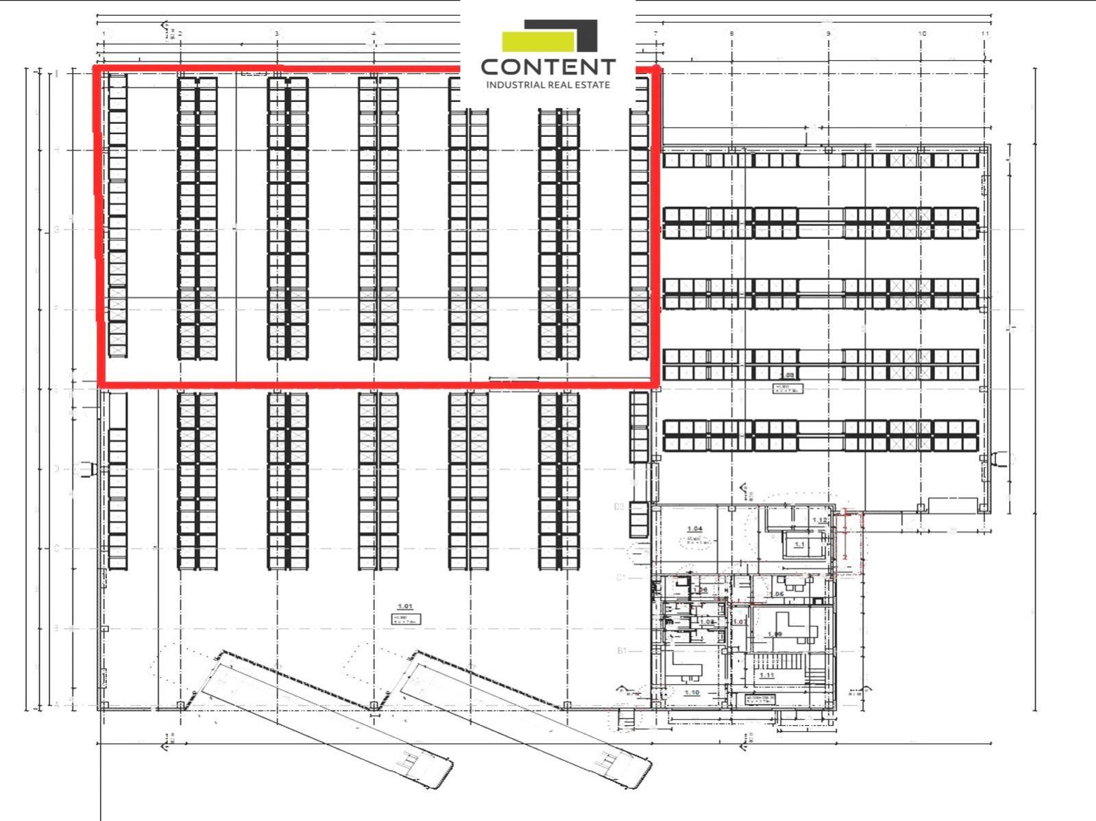
Pronájem novostavby skladu 875 m, Králův Dvůr, D5 EXIT 22. V zastoupení majitele a bez provize nabízíme nové industriální prostory, s využitím pro skladování. - k dispozici ihned, - zásobování zajištěno koridorem z 2 nákladních ramp, - vysoko-zátěžové, bezprašné podlahy s nosností 5 t/m, - výška stropu 8 m, denní světlo dle norem, - zatepleno, vytápěno - kancelářské a sociální zázemí dle požadavku, - příjezd pro TIR, dostatečné manipulační i parkovací plochy, - další úpravy možné, Cena nájmu je Kč 160/m/měsíc + energie. Pro více informací nás kontaktujte, rádi Vám zajistíme prohlídku nemovitosti.
Pronájem 1000 - 7000m2 v 7 patrech komerčních prostor Králův dvůr-Beroun s dobrou obslužností
Komerční prostory se nacháejíí v blízkosti dálnice s dobrou dostupností nákladní dopravy, dostatečný manipulační prostory pro kamiónovou dopravu.…
Nájem skladu 300 m2, novostavba, Králův Dvůr u BEROUNA (nedaleko Exitu dálnice D5)
Nabízíme k nájmu zateplenou halu 300 m2, vjezdová průmyslová vrata, Hala se nachází na okraji Králova Dvora u Berouna, nedaleko od Exitu Beroun…
Pronájem skladu Králův Dvůr na Eurobydleni.cz