Prodej domu, 420 m2, Jaroslavice - Znojmo
Makléř: Trechová Yvetta Julia
Telefon: 296 399 ...
E-mail: info@mmr ...
Zobrazit celý kontaktTelefon: 296 399 006
E-mail: info@mmreality.cz
prodej
Náměstí
925657
27.11.2025
1
osobní
895 m2
420 m2
G - Mimořádně nehospodárná
Makléř: Trechová Yvetta Julia
Telefon: 296 399 ...
E-mail: info@mmr ...
Zobrazit celý kontaktTelefon: 296 399 006
E-mail: info@mmreality.cz
Nemovitost nabízí
M&M reality holding a.s.
Krakovská 1675/2, 110 00 Praha 1
Zobrazit kontakt na RK800 100 446
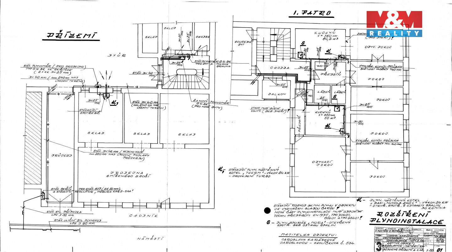
Investičně zajímavý dům jako objekt občanské vybavenosti. Disponuje třemi zrekonstruovanými byty v patře a obchodními prostory v přízemí, které mají vchod přímo z náměstí obce. Pozemek 895 m2 s možností parkovaní ve vnitrobloku pro 6 aut. Byty mají samostatné měřiče energií. Napojení na plyn, vodovod, elektřinu, kanalizaci. Byt č.1 - 2kk 98 m2 Byt č.2 - 3+1 120 m2 Byt č.3 - 2+1 78 m2 Obchodní prostory 132 m2 - se zavedenou klientelou. Byty jsou nyní pronajaté s možností pokračování nájmu nebo uvolnění. Dům prochází rekonstrukcí balkónů a venkovního zateplení. Obec Jaroslavice se nachází nedaleko Rakouska a Znojma. Je to skvělá příležitost k podnikání, bydlení a investici. Naši hypoteční poradci Vám pomohou zajistit financování.
Činžovní dům, prodej, Tiskárenská, Moravský Krumlov, Znojmo
PRODEJ PRŮMYSLOVÉHO AREÁLU A NÁJEMNÍHO DOMU S OSMI BYTY, Moravský Krumlov Ve výhradním zastoupení nabízím prodej průmyslového areálu v Moravském…
Prodej činžovního domu, centrum města Znojma, ul. Horní náměstí
K prodeji nabízíme komerční nemovitost činžovního domu v samém srdci města Znojma, dům se rozkládá u hlavních dvou ulic tohoto historického města a…