Pronájem bytu 2+kk, 52 m2 + terasa 26 m2, Praha 4 - Nusle, ul. Na Pankráci
Makléř: Jiří Šimon nájem
Telefon: 737 447 ...
E-mail: najem@ji ...
Zobrazit celý kontaktTelefon: 737 447 189
E-mail: najem@jirisimon.cz
pronájem
Na Pankráci
N00457
28.11.2025
1 (dům má 7 podlaží)
osobní
neuvedeno
neuvedeno
G - Mimořádně nehospodárná
Makléř: Jiří Šimon nájem
Telefon: 737 447 ...
E-mail: najem@ji ...
Zobrazit celý kontaktTelefon: 737 447 189
E-mail: najem@jirisimon.cz
Nemovitost nabízí
ORANGE PROPERTY s.r.o.
Kaprova 42/14, Praha
Zobrazit kontakt na RK
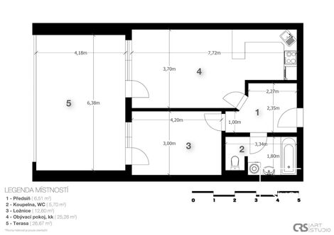
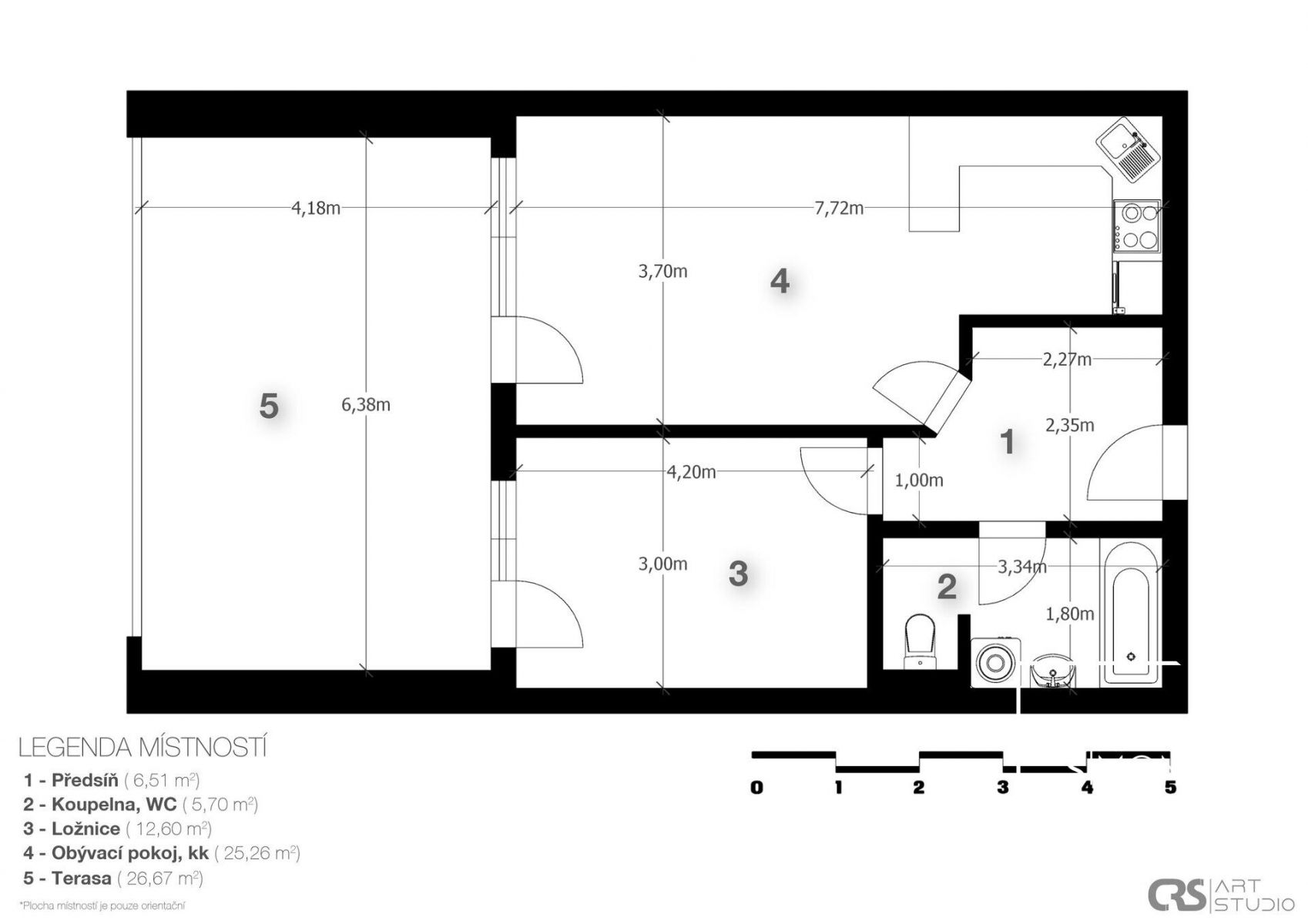
Nabízíme vám v dlouhodobému pronájmu byt s dispozicí 2+kk a výměrou 52 m2 + terasa 26 m2, na adrese Na Pankráci 404/30a, Praha 4 - Nusle. Byt se nachází v druhém patře moderního bytového domu a obsahuje velký obývací pokoj s kuchyňským koutem, ložnici, koupelnu s wc a velkou terasu 26 m2. Jedná se o moderní byt na skvělé adrese. Kromě vybavené kuchyně není vybavený, tak jak je vyobrazeno na fotografiích. Nájemné je 24.000,- Kč / měsíčně + zálohy na 5.354,- zálohy na energie a služby, které se skládají z: 1500,- / měs. elektřina v bytě 344,- / měs. studená voda 1175,- / měs. teplá voda 856,- / měs. topení 297,- / měs. úklid společných částí domu 153,- /měs. elektřina společných částí domu 63,- / měs. výtah 132,-/měs. odvoz odpadků 834,- domovnické služby Byt je připravený k nastěhování. Při nastěhování se platí 29.354,- nájemné na první měsíc + 29.354,- kauce + 29.354,-provize.
Pronájem bytu : Praha 7 - Bubeneč, Šmeralova
Nabízíme k pronájmu velice hezký, moderně zařízený byt 2+kk s užitnou plochou 52m2, který se nachází ve 2.patře kompletně zrekonstruovaného secesního…
Pronájem, Byt 2+kk, Praha 2
Rádi bychom Vám nabídli k pronájmu nezařízený byt, dispozičně řešený jako 2kk, který se nachází ve 4. patře zrekonstruovaného domu s výtahem nedaleko…
Pronájem bytu 2+kk Praha 4, Nusle na Eurobydleni.cz