Vybírejte z nabídky 38 665 nemovitostí od 824 realitních kanceláří
lupa mobilní menu
Přehled nemovitostí: prodej domy > rodinné domy > Úvaly Zpět na přehled nabídek

Prostorný dům 125 m2 na pozemku 1 338 m2 — oblíbené Úvaly, klidné místo s výborným spojením do Prahy

Prodejce

Makléř: Gabriel Leo

Telefon: 226 259 ...

E-mail: synergy@ ...

Zobrazit celý kontakt

prodej

Úvaly (okres Praha-východ)

Na Ztraceném korci

Domy, Rodinné domy

970813

30.11.2025

2

osobní

1 234 m2

125 m2

G - Mimořádně nehospodárná

Cena: 13500000 CZK / objekt
Poznámka k ceně: Včetně provize, právního servisu, advokátní úschovy a zajištění financování. 1
Prodejce

Makléř: Gabriel Leo

Telefon: 226 259 ...

E-mail: synergy@ ...

Zobrazit celý kontakt
Poslat dotaz k nabídce
Zásady používání osobních údajů

Nemovitost nabízí

/images/img-no-foto-small.png

Century 21 Synergy

Ke Štvanici 656/3, 180 00 Praha 8 - Karlín

www.century21.cz/kancelar-synergy

Zobrazit kontakt na RK

Zobrazit všechny nabídky RK

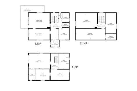
Rodinný dům v Úvalech u Prahy Prostor, velký pozemek, klidná vilová čtvrť a skvělá dostupnost do Prahy — přesně tohle je kombinace, kterou v Úvalech většina rodin hledá. Dům stojí v oblíbené lokalitě Na Ztraceném korci, v místě obklopeném zelení a s výborným spojením do Prahy i na Černý Most. Úvaly jsou dlouhodobě vyhledávané pro kvalitní zázemí - školy, obchody, lékaře, sportoviště i přírodu hned "za plotem". Dům, který si můžete upravit podle sebe Samostatně stojící rodinný dům z roku 1980 nabízí praktickou dispozici 4+1, obytné podkroví a příjemný výhled do okolní zeleně. Podlahová plocha činí cca 125 m2, zastavěná plocha 96 m2. Dům už má něco za sebou, ale právě díky tomu může nový majitel vytvořit moderní bydlení přesně podle svých představ. Technický stav - dům, který má za sebou kus života Dům, který potřebuje znovu milující rodinu a péči. V praxi to znamená: • původní eternitová střecha • komín není v nejlepší kondici • lokální praskliny a omítky • interiér si zaslouží novou výmalbu • garážová vrata nejsou nejnovější • starší elektroinstalace a rozvody odpovídající 80. létům Nic dramatického — spíš typická příležitost, jak sladit dům s dnešními standardy a vlastním vkusem. Pozemek 1 338 m2 - prostor, který se dnes těžko hledá K domu patří garáž a rozlehlá, slunná a oplocená zahrada o výměře 1 338 m2 (parcely 3086 a 3087). Pozemek je rovinatý nabízí možnosti pro terasu, bazén nebo další doplňkové stavby. Inženýrské sítě: vlastní studna, jímka, vytápění kotlem na tuhá paliva + plynový kotel. Úvaly u Prahy - klidné město s perfektní dostupností Úvaly leží jen 22 km od centra Prahy a nabízejí spojení, které často konkurují pražským okrajům: • vlakem na Masarykovo nádraží za 25 minut • rychlý příjezd na Černý Most (15-20 min) • napojení na D11 a I/12 Pro ty, kteří pracují v Praze, ale chtějí žít v rodinnějším prostředí, jsou Úvaly ideální. Zároveň mají plnohodnotnou občanskou vybavenost: školy, gymnázium, zdravotní péči, obchody, restaurace, sportoviště i kulturní dům. Příroda a aktivní život Město obklopují lesy, cyklostezky a rekreační trasy směrem na Klánovice či Škvorecký potok. Najdete tu koupaliště, rybníky a spoustu míst na běhání, procházky nebo rodinné výlety. Proč jsou Úvaly tak oblíbené? Dostupnost jako u pražských čtvrtí, ale více prostoru, klidu a přírody. Stabilní komunita, kvalitní infrastruktura a dobrá investiční hodnota nemovitostí. Právní stav Nemovitost je bez věcných břemen či zástav.



Nahoru