Vybírejte z nabídky 37 139 nemovitostí od 812 realitních kanceláří
lupa mobilní menu
Přehled nemovitostí: pronájem komerční > výrobní prostory > Tuchoměřice Zpět na přehled nabídek

Pronájem skladu, výrobních prostor 1.000 m, Tuchoměřice, Praha - Západ

Prodejce

Makléř: Matěj Ježek

Telefon: 734 523 ...

E-mail: jezek@co ...

Zobrazit celý kontakt

pronájem

Tuchoměřice (okres Praha-západ)

Ke Kopanině

Komerční, Výrobní prostory

N6219

neuvedeno

B - Velmi úsporná

Cena: na dotaz v RK
Prodejce

Makléř: Matěj Ježek

Telefon: 734 523 ...

E-mail: jezek@co ...

Zobrazit celý kontakt
Poslat dotaz k nabídce
Zásady používání osobních údajů

Nemovitost nabízí

/loga_velka/7270.jpg

CONTENT REALITY

Průmyslová 1472/11, 102 00 Praha 10 - Hostivař

www.contentreality.cz

Zobrazit kontakt na RK

Zobrazit všechny nabídky RK

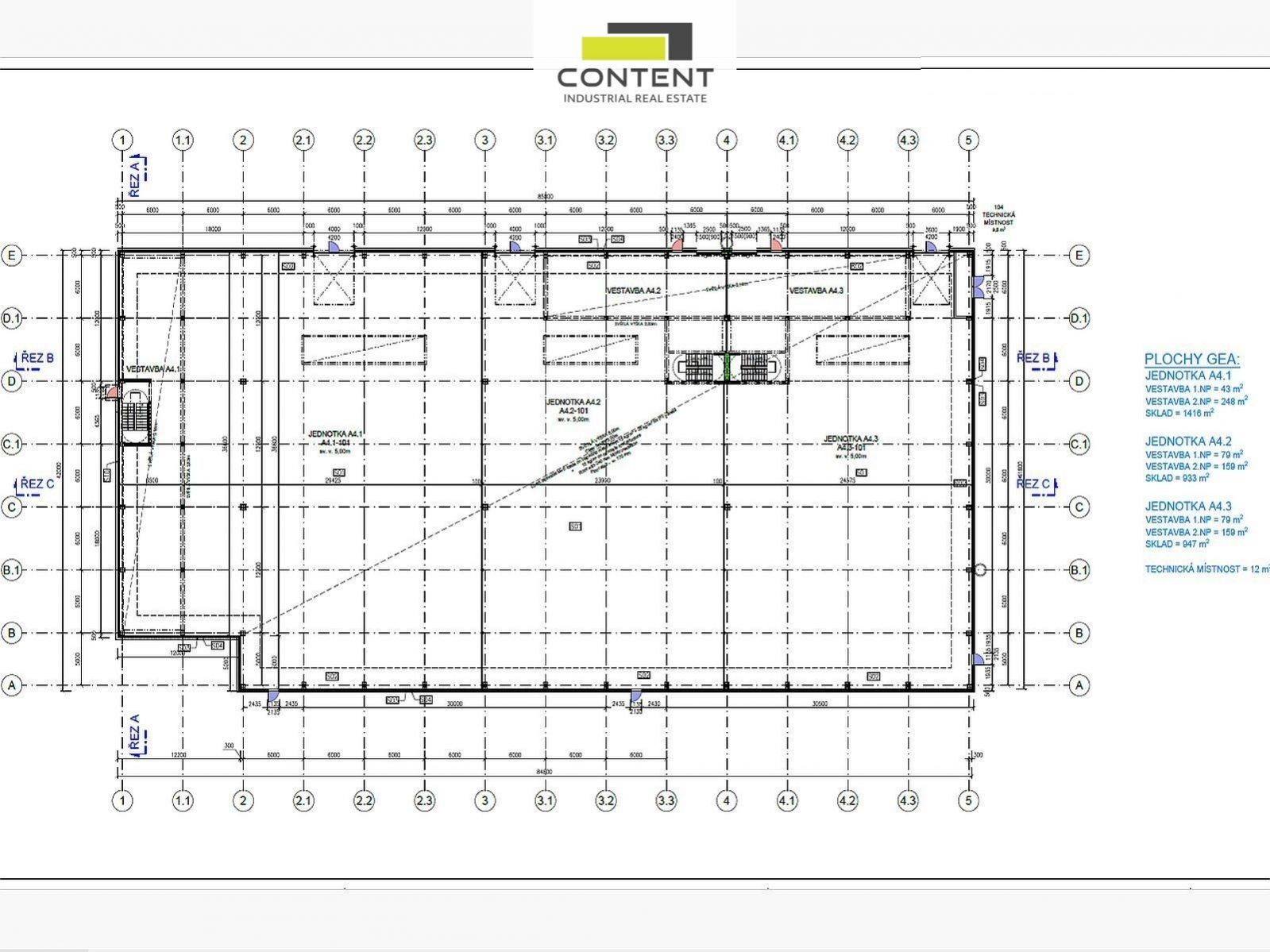
Pronájem skladu, výrobních prostor 1000 m Tuchoměřice. V zastoupení majitele a bez provize nabízíme industriální prostory, umístěné na strategickém místě nedaleko Letiště Václava Havla, s výbornou dostupností na dálnici D7 a do Prahy: - výrobní prostory, logistické centrum, sídla firem, výzkumné prostory, školící centra a kanceláře - volná část budovy D1/D2 2889 m ve výstavbě, k dispozici 02/2026 - světlá výška 11,2 m - nosnost podlahy minimálně 5 t/m - nákladová rampa, přímý vjezd - LED osvětlení, sprinklery - moderní, úsporná budova s certifikátem udržitelnosti BREEAM - kancelářské a sociální zázemí dle požadavku - sprinklery - lze rozdělit na menší samostatné jednotky od cca 1000m + kanceláře - oplocený areál s ostrahou - v areálu ještě k dispozici jednotka 3296 m Cena bude stanovena dle dalších požadavků individuálně. Fotografie jsou pouze ilustrační. Pro více informací nás kontaktujte.




Pronájem výrobního prostoru Tuchoměřice na Eurobydleni.cz


Nahoru