Vybírejte z nabídky 37 144 nemovitostí od 812 realitních kanceláří
lupa mobilní menu
Přehled nemovitostí: prodej domy > rodinné domy > Štěnovice Zpět na přehled nabídek

Prodej rodinného domu 4+1 s garáží a prostorným pozemkem, Štěnovice (Plzeň-jih)

Prodejce

Makléř: Cink Pavel

Telefon: 704 784 ...

E-mail: p.cink@p ...

Zobrazit celý kontakt

prodej

Štěnovice (okres Plzeň-jih)

Akátová

Domy, Rodinné domy

71

2

940 m2

neuvedeno

G - Mimořádně nehospodárná

Cena: 7750000 CZK / objekt
Prodejce

Makléř: Cink Pavel

Telefon: 704 784 ...

E-mail: p.cink@p ...

Zobrazit celý kontakt
Poslat dotaz k nabídce
Zásady používání osobních údajů

Nemovitost nabízí

/images/img-no-foto-small.png

Nemovitost s odhadem s. r. o.

Cílkova 649/4, Praha - Kamýk

www.nemovitostsodhadem.cz

Zobrazit kontakt na RK

Zobrazit všechny nabídky RK

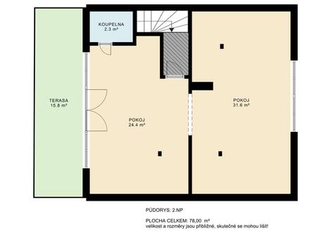
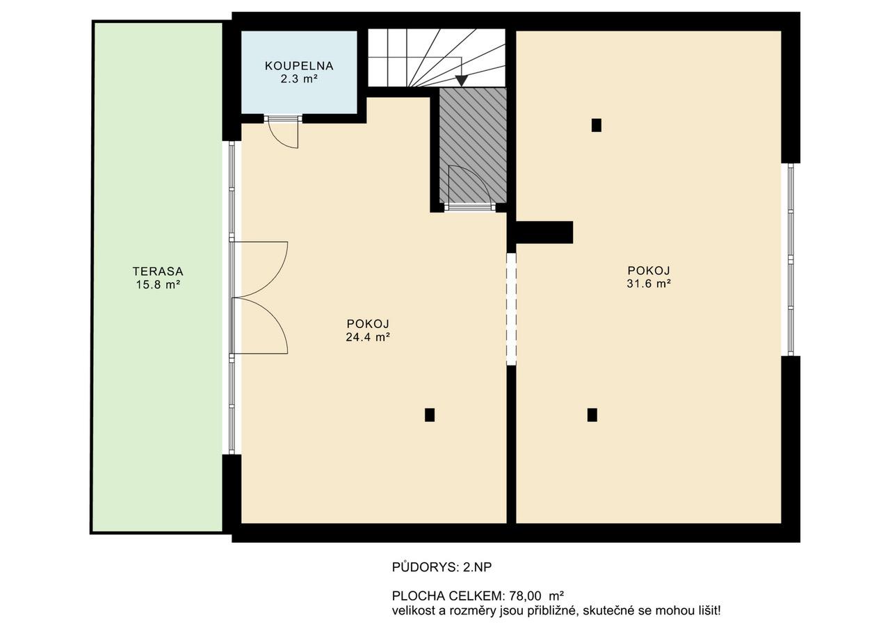
Prostorný rodinný dům s velkým pozemkem v jedné z nejoblíbenějších lokalit u Plzně Štěnovicích Nabízíme k prodeji prostorný rodinný dům s celkovou podlahovou plochou cca 220 m na krásném rovinatém pozemku o velikosti 940 m, zasazeném v klidné a atraktivní části žádané obce Štěnovice, která je doslova pár minut od Plzně. Dispozice domu: Suterén (74,8 m): Velkorysá garáž (25,8 m), sklad (17,6 m), technická místnost (7,6 m), dvě komory (5,2 a 5,4 m) a prostorná hala/schodiště (13,3 m). Skvělé místo pro hobby, dílnu, skladování i technické zázemí. Přízemí (75,4 m): Světlý obývací pokoj (28,7 m), ložnice (14,9 m), kuchyně (7,6 m), koupelna (5,2 m), prostorná hala se schodištěm (11,5 m), samostatné WC a vstupní chodba. 2. nadzemní podlaží (78 m): Dva velké pokoje (24,4 a 31,6 m), koupelna (2,3 m) a vstup na prostornou terasu (15,8 m) ideální pro relaxaci. Pozemek je ideálně orientovaný, rovinatý, se vzrostlými stromy a nabízí maximální soukromí i prostor pro další realizace například vybudování druhého domu či bazénu (vždy dle platných regulací). Dům je v původním, zachovalém stavu, určený k rekonstrukci dle vlastních představ ideální pro vícegenerační bydlení, kombinaci bydlení a podnikání, nebo investici. Možnost čerpat dotaci Oprav dům po babičce, díky které můžete ušetřit až 50 % nákladů na rekonstrukci. Se zajištěním dotace rádi pomůžeme! Lokalita, o které se mluví! Štěnovice jsou právem jednou z nejvyhledávanějších lokalit v okolí Plzně. Skvělá dopravní dostupnost - 10 minut do Plzně, nájezd na dálnici D5, nákupní centrum Olympia 5 minut autem. Perfektní občanská vybavenost: obchody, zdravotní středisko, škola, školka, restaurace, sportovní a volnočasová zázemí. Lokalita je obklopena nádhernou přírodou, která nabízí bohaté možnosti k aktivnímu odpočinku i relaxaci. Neváhejte a využijte jedinečné příležitosti získat dům či pozemek v jedné z nejlepších adres jižního Plzeňska. Pro bližší informace nás neváhejte kontaktovat nebo rovnou domluvit termín prohlídky!



Nahoru