Byt k pronájmu 3+kk, Kočova, Čimice, 32900 Kč/měs, 86 m2, Praha
Makléř: Dana Oralová
Telefon: 222 703 ...
E-mail: podpora@ ...
Zobrazit celý kontaktTelefon: 222 703 030
E-mail: podpora@idealninajemce.cz
pronájem
Kočova
N7005
3 (dům má 3 podlaží)
osobní
86 m2
86 m2
G - Mimořádně nehospodárná
Makléř: Dana Oralová
Telefon: 222 703 ...
E-mail: podpora@ ...
Zobrazit celý kontaktTelefon: 222 703 030
E-mail: podpora@idealninajemce.cz
Nemovitost nabízí
Ideální nájemce
Lazaretní 925/9, 615 00 Brno
Zobrazit kontakt na RK222 703 030
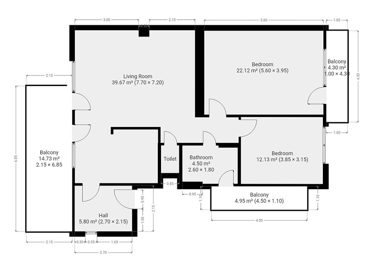
K dlouhodobému pronájmu nabízíme částečně zařízený byt dispozice 3+kk o rozloze 86 m2 po kompletní rekonstrukci ve 2. patře řadového domu na pozemku se zahradou v klidné rezidenční lokalitě pražských Čimic. Bytu vévodí rozlehlý obývací pokoj výměry téměř 40 m2 s moderní kuchyní a přístupem na terasu, na další dvě terasy se pak vchází z ložnice a koupelny. Vytápění bytu a ohřev vody je realizován plynovým kotlem, všechny místnosti jsou vybaveny klimatizací. Kromě zahrady je k dispozici parkovací stání na oploceném pozemku domu. Součástí měsíčních záloh jsou již energie a k dispozici je i vysokorychlostní internet. K dispozici solidním zájemcům hledajícím dlouhodobé kvalitní bydlení k okamžitému nastěhování. Individuální prohlídky možné po domluvě kdykoliv včetně pozdních večerních hodin a víkendů. Byt pronajímá Ideální nájemce - služba, se kterou budete bydlet bezstarostně a za férových podmínek. Když se něco přihodí, k dispozici jsou správci, kteří s Vámi vše vyřeší. Pomůžeme s veškerou administrativou, s nastavením plateb a zajistíme Vám speciální pojištění. Pojďte bydlet s námi!
3+kk/B, 68 m2, panel, 5 p., ul. Papírníkova, Praha 4 - Kamýk
Zprostředkujeme Vám pronájem bytové jednotky 3+kk s lodžií, o celkové ploše 68 m2. Bytová jednotka se nachází v pátém patře sedmipatrového kompletně…
3+kk, 70 m2, vybavený, 5 p., cihla, ul. Ortenovo náměstí, Praha 7 - Holešovice
Zprostředkujeme Vám pronájem bytové jednotky 3+kk o celkové ploše 70 m2, nacházející se v pátém patře šestipatrového cihlového domu, v klidné části…