Skladovací prostory, pronájem, Brno, Brno-město
Makléř: Roman Kučera
Telefon: 222 703 ...
E-mail: roman.ku ...
Zobrazit celý kontaktTelefon: 222 703 245
E-mail: roman.kucera@sklady.cz
pronájem
03474
21.12.2025
neuvedeno
G - Mimořádně nehospodárná
Makléř: Roman Kučera
Telefon: 222 703 ...
E-mail: roman.ku ...
Zobrazit celý kontaktTelefon: 222 703 245
E-mail: roman.kucera@sklady.cz
Nemovitost nabízí
Marion management
Za Sedmidomky 15, 101 00 Praha
Zobrazit kontakt na RK222 703 245
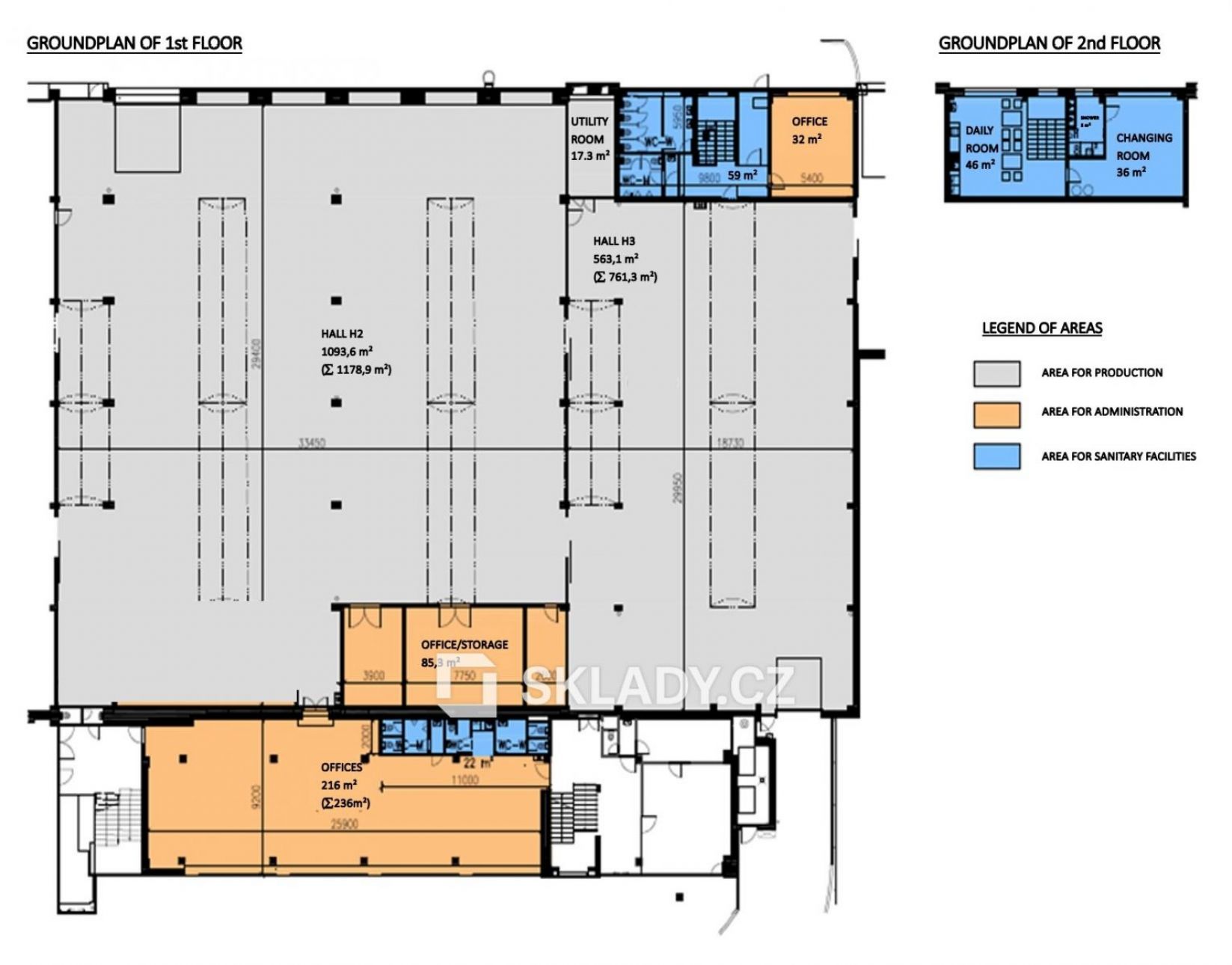
Nabízíme k pronájmu vytápěnou skladovou/výrobní halu v moderním a bezpečném areálu. Skvělá dopravní dostupnost pouze 600 m od křížení dálnic D1 (Praha), D2 (Bratislava), a směr Vídeň K dispozici výrobní/skladovací prostory o velikosti: 1.178,9 m 563,1 m Kanceláře (typ A) 198,2 m Technické specifikace: Vytápěná hala Protipožární a bezpečnostní systém Sekční vrata: 3,78 m × 4 m (vhodné pro nákladní vozidla) Nosnost podlahy: 5 t/m Světlá výška: 5,80 m Zabezpečovací systém Nepřetržitá ostraha 24/7 Správa objektu přímo v areálu Individuální přístup ke klientům Možnost dalších služeb dle dohody Na našem portále najdete více než 700 skladových hal v ČR a na Slovensku. Rádi pro klienta zdarma zpracujeme aktuální přehled nabídek v požadované lokalitě a v rámci našeho zastoupení zajistíme pro klienta nevýhodnější podmínky nájmu. V případě zájmu o tuto či jinou nemovitost nás neváhejte kontaktovat a zajistěte si prohlídku ještě dnes.
Pronájem komerčních prostor v samotném srdci Brna 250 m2 Cena při podpisu smlouvy do 31. 12. 2025.
Pronájem komerčních prostor - 250 m2 v srdci Brna Cena při podpisu smlouvy do 31. 12. 2025. Nabízíme k pronájmu atraktivní komerční prostory o…
Brno - Černovice
Nabízíme k pronájmu moderní skladové a výrobní prostory v nově budovaném komerčním areálu ViPark Brno, který je ideální pro firmy hledající zázemí…