Pronájem kanceláře 42 m2, Praha 10 Dolní Měcholupy
Makléř: Lisacová Marcela DiS.
Telefon: 602 102 ...
E-mail: marcela. ...
Zobrazit celý kontaktTelefon: 602 102 745
E-mail: marcela.lisacova@century21.cz
pronájem
Za zastávkou
Komerční, Kanceláře a administrativní prostory
971860
18.12.2025
42 m2
E - Nehospodárná
Makléř: Lisacová Marcela DiS.
Telefon: 602 102 ...
E-mail: marcela. ...
Zobrazit celý kontaktTelefon: 602 102 745
E-mail: marcela.lisacova@century21.cz
Nemovitost nabízí
CENTURY 21 Harmony
Plk. Švece 188/1, 251 01 Říčany
www.century21.cz/kancelar-harmony
Zobrazit kontakt na RK
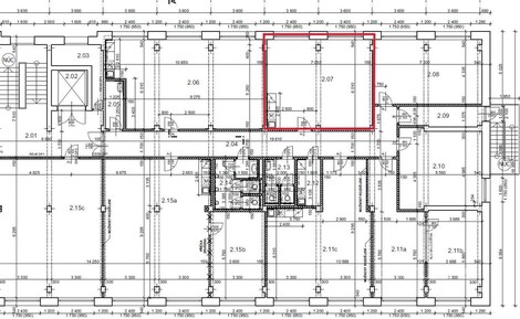
Nabízíme k pronájmu kancelářské prostory (A12/2.07) o celkové výměře 42,27 m2 ve vyhledávané lokalitě Praha 10 - Dolní Měcholupy. Prostory se nachází ve 2. NP administrativní budovy Areálu PM (vjezd z ulice Za zastávkou) s výtahem a s bezbariérovým přístupem. K dispozici jsou i další prostory k pronájmu na patře o výměře 152 m2 (A12/2.15) nebo 58 m2 (A12/3.23) za cenu 350, Kč/m2. Dispozice a vybavení kanceláře (A12/2.07) • světlé kanceláře orientované na východ • zátěžové koberce, klimatizace, plastová okna, žaluzie • kanceláře se pronajímají nezařízené • sociální zázemí (pánské / dámské toalety) společné na patře Parkování a služby: • možnost pronájmu parkovacího stání v areálu za 800 Kč/měsíc + DPH • internet - poskytovatel Fiber Connections • elektřina účtována měsíčně dle skutečné spotřeby • vytápění, výtah a údržba společných prostor jsou zahrnuty v měsíčním nájemném Kancelářské prostory jsou vhodné pro: • IT společnosti • Administrativní a backoffice týmy • Telekomunikační společnosti • Účetní a daňové kanceláře • Marketingové nebo reklamní agentury • Poradenské firmy (business, HR, finance…) • Architektonická či projektová studia • Startupy a malé podnikatelské týmy • Servisní a zákaznická podpora • Právní nebo advokátní kanceláře • Projekční nebo inženýrské firmy • Realitní kanceláře Dopravní dostupnost: • vlaková zastávka Horní Měcholupy - 400 m • autobusové zastávky Průmstav a Nádraží Horní Měcholupy - 400 m • v areálu jídelna, v blízkosti jsou restaurace, Kaufland, OC Retail Park Poplatky za kancelář: • nájemné: 14 794,50 Kč/měsíc + DPH • poplatky za elektřinu dle reálné spotřeby • kauce: 1 měsíční nájem + DPH • provize RK: 1 měsíční nájem + DPH Preferujeme dlouhodobého nájemce (plátce DPH). K nastěhování ihned. Neváhejte mě kontaktovat a domluvit si prohlídku. Věřím, že Vás tyto prostory nadchnou. Marcela Lisacová, tel. +420 602 102 745
Pronájem kancelářských prostor (1115,27 m2) City West, ul. Siemensova, Praha 5 - Stodůlky
Nabízíme pronájem kancelářských prostor o výměře 1 115,27 m2 ve 3. patře komplexu City West, Praha 5 - Stodůlky.Nabídka flexibilních prostorů již od…
Pronájem servisovaných kancelářských prostor (30m2), Praha 4, Brumlovka
FLEKSI Business Centrum je moderní administrativní prostor na Praze 4, která nabízí kompletně zařízené kancelářské a coworkingové prostory různých…