AKCE PREMIUM: UŽ NEČEKEJTE! Podkrovní byt 3+KK, Vimperk
Makléř: Bardová Marie
Telefon: 724 217 ...
E-mail: marie.ba ...
Zobrazit celý kontaktTelefon: 724 217 167
E-mail: marie.bardova@century21.cz
prodej
Jirchářská
971785
16.01.2026
2 (dům má 2 podlaží)
osobní
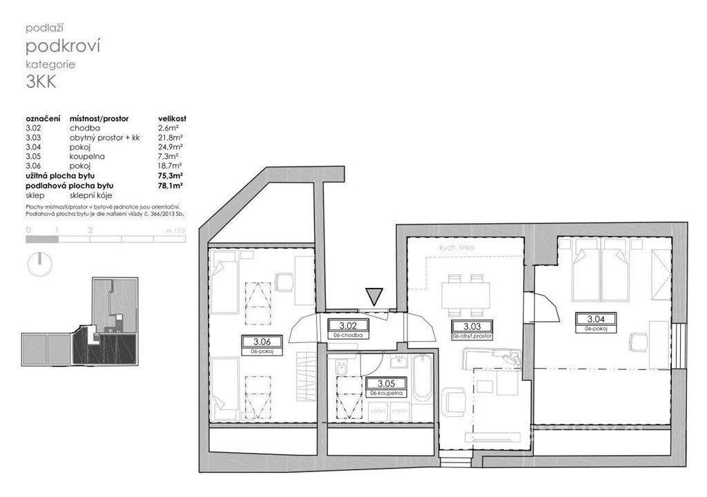
78 m2
75 m2
G - Mimořádně nehospodárná
Makléř: Bardová Marie
Telefon: 724 217 ...
E-mail: marie.ba ...
Zobrazit celý kontaktTelefon: 724 217 167
E-mail: marie.bardova@century21.cz
Nemovitost nabízí
CENTURY 21 4fin Reality
Na Hřebenech II 1718/8, 140 00 Praha 4
Zobrazit kontakt na RK
AKCE PREMIUM: UŽ NEČEKEJTE! NEJLEPŠÍ CENA ZA NOVÉ BYDLENÍ VE VIMPERKU! Jedinečné 3+KK v Rezidenci Volyňka. STOP ZVYŠOVÁNÍ CEN! Nenechte si ujít nejvýhodnější nabídku v celém projektu Rezidence Volyňka. Máte jedinečnou šanci získat moderní, zrekonstruovaný byt k okamžitému nastěhování za PREMIUM CENU, která se již nebude opakovat! Majitel spouští časově omezenou prodejní akci: PREMIUM CENA: JEN 59 000 Kč/m2! Podmínky pro získání slevy Tato exkluzivní nabídka platí pouze pro nejrychlejší zájemce a je striktně podmíněna: 1. Podpisem kupní smlouvy 2. Složením celé kupní ceny A to vše nejpozději do: 31. LEDNA 2026! Proč jednat IHNED? FINANČNÍ JISTOTA: Fixní cena 59 000 Kč/m2 je výrazně pod standardní tržní hodnotou nového bydlení v lokalitě. Je to transparentní úspora. K OKAMŽITÉMU UŽÍVÁNÍ: Byty jsou dokončené, zkolaudované a připravené k nastěhování. Žádné čekání na dokončení stavby, bydlíte hned! KVALITA A PRESTIGE: Získáváte byt v unikátním projektu Rezidence Volyňka (bývalé tiskárny), který kombinuje industriální historii s moderním rezidenčním komfortem, přímo u řeky Volyňky a na dohled od Šumavy. Neodkládejte prohlídku! Volejte dnes a zarezervujte si svůj byt, než ho získá někdo jiný za PREMIUM CENU 59 000 Kč/m2! Další byt v Rezidenci Volyňka podkrovní 3+KK (75m2) ve Vimperku k nastěhování. Získejte 30% slevu na kuchyň a nábytek! Představujeme Vám další dokončený byt v rámci úspěšného developerského projektu "Rezidence Volyňka" v klidné části Vimperku. Jedná se o moderní podkrovní byt s dispozicí 3+KK a velkorysou užitnou plochou 75 m2, který je připraven k okamžitému předání klíčů. TOP 3 Důvody pro koupi: FINANČNÍ BONUS NA VYBAVENÍ: jako speciální nabídku získává nový majitel slevu 30 % v majitelově nábytkářském studiu. Slevu můžete využít na novou kuchyňskou linku a kompletní zařízení interiéru na míru - výrazně tak snížíte počáteční náklady na vybavení! INVESTIČNÍ POTENCIÁL: díky moderním standardům, lokalitě blízko Šumavy a úspornému plynovému vytápění je byt ideální k pronájmu. Lze ho využít jak pro dlouhodobý, tak i krátkodobý pronájem pro turisty (Airbnb/Booking). KOMFORT A EKONOMIE: byt je vytápěn plynovým kotlem, což zajišťuje nízké provozní náklady a stabilní komfort bydlení. IHNED K NASTĚHOVÁNÍ! Detaily bytu a domu Dispozice: 3+KK (75 m2) - podkrovní byt. Vytápění: Úsporné plynové vytápění. Lokalita: Klidná část Vimperku s rychlou dostupností do centra. Lokalita a okolí - Život v podhůří Šumavy Vimperk nabízí veškerou občanskou vybavenost (školy, obchody, služby) s bonusem blízkosti nádherné šumavské přírody. Řeka Volyňka a okolní lesy jsou na dosah ruky, což zvyšuje atraktivitu lokality pro bydlení i rekreaci. Neváhejte s prohlídkou, dokud je byt aktuálně volný. Financování hypotečním úvěrem je samozřejmě možné ve spolupráci s našimi finančními specialisty. Kontaktujte mě pro sjednání prohlídky, budu se na vás těšit.
Mezonetový apartmán 3+kk v Chlumu u Volar (krb)
V létě na kolo kolem Lipna, v zimě na běžky do zasněžených hřebenů a po celý rok jen relax, příroda a božský klid. Hledáte investici, která vám…
Prodej mezonetového bytu 3+kk 120 m + nebytový prostor
Ve výhradním zastoupení majitele nabízím k prodeji krásný, zcela nově vybudovaný mezonetový byt o dispozici 3+kk, s velkorysou podlahovou plochou 120…