Jednotka 5+KK v novostavbě rodinného domu se zahradou, Praha
Makléř: Bc. Stára Michal
Telefon: 420 605 ...
E-mail: michal.s ...
Zobrazit celý kontaktTelefon: 420 605 201 840
E-mail: michal.stara@century21.cz
prodej
971855
07.12.2025
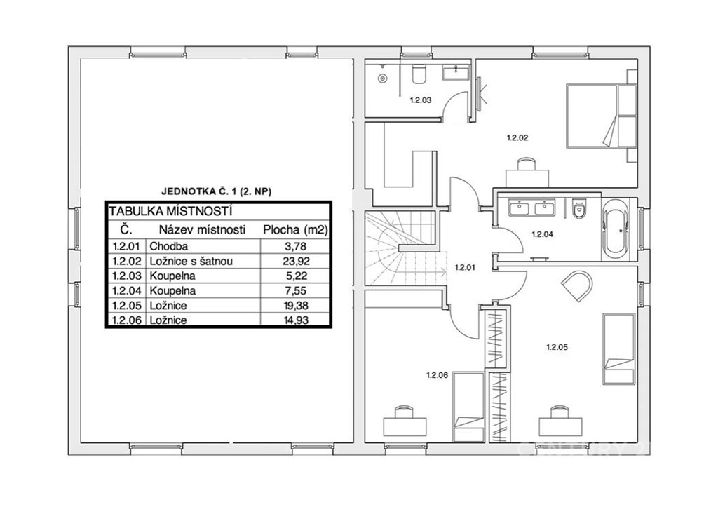
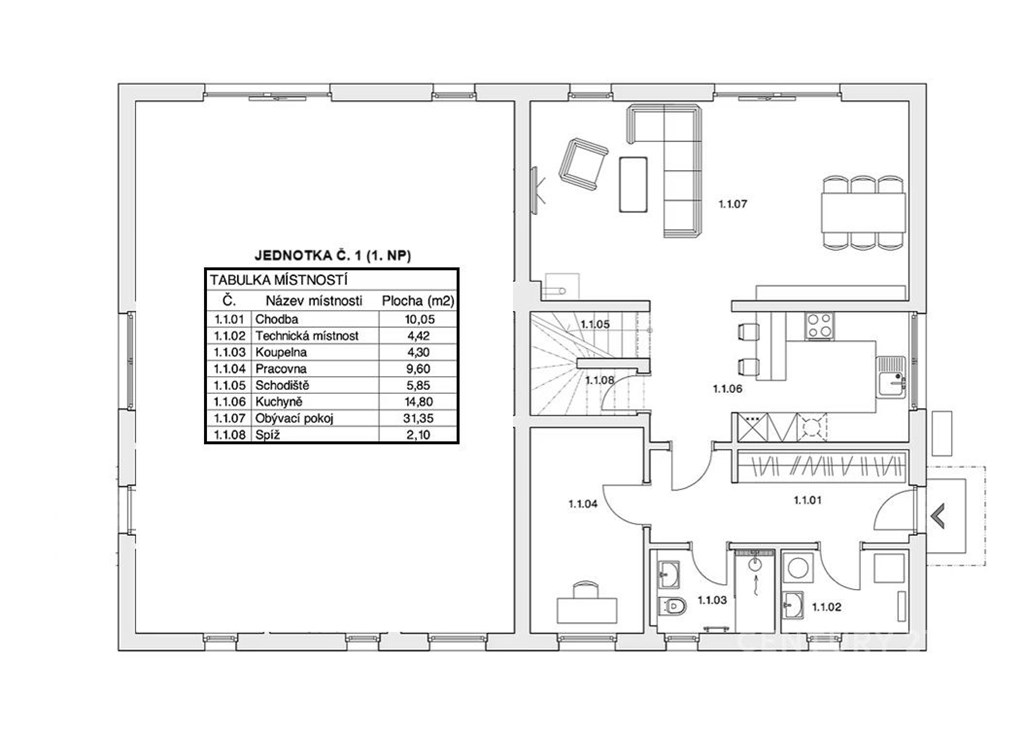
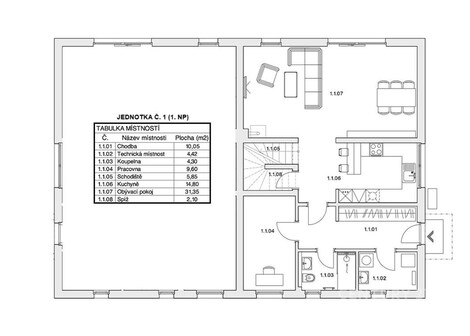
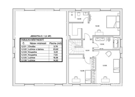
1 (dům má 2 podlaží)
osobní
188 m2
157 m2
B - Velmi úsporná
Makléř: Bc. Stára Michal
Telefon: 420 605 ...
E-mail: michal.s ...
Zobrazit celý kontaktTelefon: 420 605 201 840
E-mail: michal.stara@century21.cz
Nemovitost nabízí
CENTURY 21 Realitas Central Praha
Jeremiášova 2722/2a, 155 00 Praha 13
www.century21.cz/kancelar-realitas-central-praha
Zobrazit kontakt na RK
Praha 4 Újezd u Průhonic: Váš nový, úsporný domov s vlastní zahradou! Exkluzivní novostavba 5+KK (157 m2) s unikátní kombinací klidu a dostupnosti! Hledáte moderní bydlení, kde se snoubí luxus, úspora energie a prvotřídní lokalita? Máme pro vás ideální řešení v jedné z nejoblíbenějších částí Prahy - v Újezdě u Průhonic. Jedná se o plně autonomní bytovou jednotku č. 1 v novostavbě rodinného domu, která byla kolaudována v říjnu 2025. Nyní je čas využít flexibilitu dokončení! Klíčové Výhody, Které Vás Přesvědčí: Prostor a dispozice: Velkorysých 5+KK (157 m2) ve dvou podlažích. Ideální pro rodinný život s dostatkem soukromí. Vlastní zahrada a parkování: Přímý vstup do zeleně a vlastní parkovací stání v ceně! TOP Úspora Energie (Třída B): Tepelné čerpadlo + Podlahové topení. Rekuperace tepla pro zdravé a úsporné bydlení. Příprava na fotovoltaiku. Nadstandardní bydlení: Elektrické žaluzie, příprava pro SmartHome a krb, velkoformátové obklady, značková sanita a zabezpečovací systém. Lokalita: Klid, zeleň a perfektní doprava Můžete si užívat Milíčovský les, Průhonický park, dendrologickou zahradu a okolní rybníky - ideální ráj pro sport a relaxaci (běh, cyklistika). Vše po ruce: Škola, školka, sportoviště a obchody v docházkové vzdálenosti. Nákupy: 10 minut autem do Čestlic, Průhonic a na Chodov. Dostupnost do centra: Zastávka MHD pouhých 170 metrů a rychlé napojení na D1 (2 nájezdy). Možnosti dokončení - Rozhodujete Vy! Dům je z 90 % dokončený. Vyberte si, co vám vyhovuje: A/ Whitewall (Dokončení svépomocí): Maximální úspora a možnost dotvořit si interiér přesně podle svých snů a potřeb. B/ Na klíč: Nechte starosti s dokončením na developerovi a nastěhujte se rovnou do hotového standardu. Nenechte si ujít šanci získat energeticky úsporný a moderní domov v jedné z nejžádanějších lokalit Prahy! Kontaktujte nás ještě dnes pro bližší informace a domluvení prohlídky!
Prodej luxusního bytu 5kk 240m2, terasa v centru Letné, soukromí, garáž, parkovací místo, Letná, Hol
Chcete luxusní bydlení v centru a přitom v soukromí , místo pro rodinu, relaxaci a romantiku tento designový a přitom velmi praktický mezonetový byt…
Prodej bytu 5+kk, 106 m2, Praha, ul. Bartůňkova
Nabízíme k prodeji moderní slunný rohový byt 5+kk s užitnou plochou 106 m2 a prostornou lodžií (17 m2). Nachází se v 7. patře nově vznikajícího…