Pronájem bytu 4+kk s balkonem a garáží, novostavba na Praze 3 Žižkov, Husitská, Praha
Makléř: Mgr. Merknerová Barbora
Telefon: 608 662 ...
E-mail: barbora. ...
Zobrazit celý kontaktTelefon: 608 662 147
E-mail: barbora.merknerova@century21.cz
pronájem
Husitská
971423
02.01.2026
2 (dům má 5 podlaží)
osobní
88 m2
88 m2
G - Mimořádně nehospodárná
Makléř: Mgr. Merknerová Barbora
Telefon: 608 662 ...
E-mail: barbora. ...
Zobrazit celý kontaktTelefon: 608 662 147
E-mail: barbora.merknerova@century21.cz
Nemovitost nabízí
CENTURY 21 Ruby
Přemyslovská 2845/43, 130 00 Praha 3
www.century21.cz/kancelar/ruby/
Zobrazit kontakt na RK603 488 499
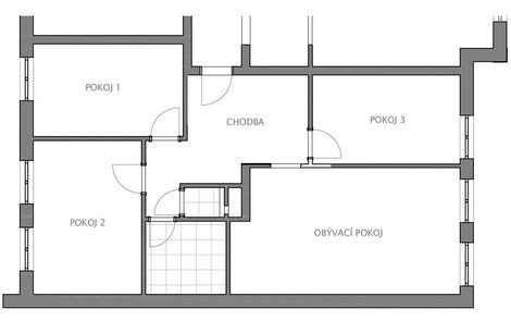
Nabízíme k pronájmu krásný byt 4+kk s balkonem a 1 parkovacím stáním v novostavbě z roku 2009 na Praze 3 v těsné blízkosti vrchu Vítkov. Byt se nachází ve 4. nadzemním podlaží domu s výtahem. K bytu dále náleží sklípek v přízemí objektu, který je umístěn prakticky u parkovacího stání. Byt s kompletně a moderně vybavenou kuchyní je částečně zařízen nábytkem. Má 3 samostatné ložnice a prostorný obývací pokoj s kuchyňským koutem. U ložnice orientované do dvora je balkon. Jedná se o velmi praktickou lokalitu, v místě je veškerá občanská vybavenost, školy, dostatek zeleně a je odsud výborné dopravní spojení do centra Prahy. Byt bude volný od 1.1.2026 Prohlídky možné po dohodě. Majitel si přeje nájemníky bez domácích mazlíčků. Nájemce skládá kauci ve výši 1 měsíčního nájmu + měsíční zálohy na služby. Odměna RK 1 měsíční nájem 1 DPH.
Pronájem prostorného částečně zařízeného bytu 4+kk/2T, garážové stání, sklep, Nuselský pivovar P4
Bydlete na úžasném místě s úžasným komfortem ve velkorysém bytě se dvěma terasami, garážovým stáním a velkým sklepem, v jednom z nejpovedenějších…
Pronájem reprezentativního, plně zařízeného bytu 4kk (177m2), Praha 2, Na Hrobci
Zrekonstruovaný, kompletně a luxusně zařízený byt (177 m2) s neopakovatelnými výhledy na Vltavu a Pražský hrad v 1. patře kompletně…