Prodej rodinného domu 227 m2 s bazénem, garáží a pozemkem 1004 m2 - Turnov
Makléř: Kalábová Petra
Telefon: 776 324 ...
E-mail: kalabova ...
Zobrazit celý kontaktTelefon: 776 324 010, 776 324 010
E-mail: kalabovap@seznam.cz
prodej
Zborovská
591
12.12.2025
2
1 004 m2
neuvedeno
G - Mimořádně nehospodárná
Makléř: Kalábová Petra
Telefon: 776 324 ...
E-mail: kalabova ...
Zobrazit celý kontaktTelefon: 776 324 010, 776 324 010
E-mail: kalabovap@seznam.cz
Nemovitost nabízí
Hit Reality
Vranové 1.díl 252, Malá Skála
Zobrazit kontakt na RK
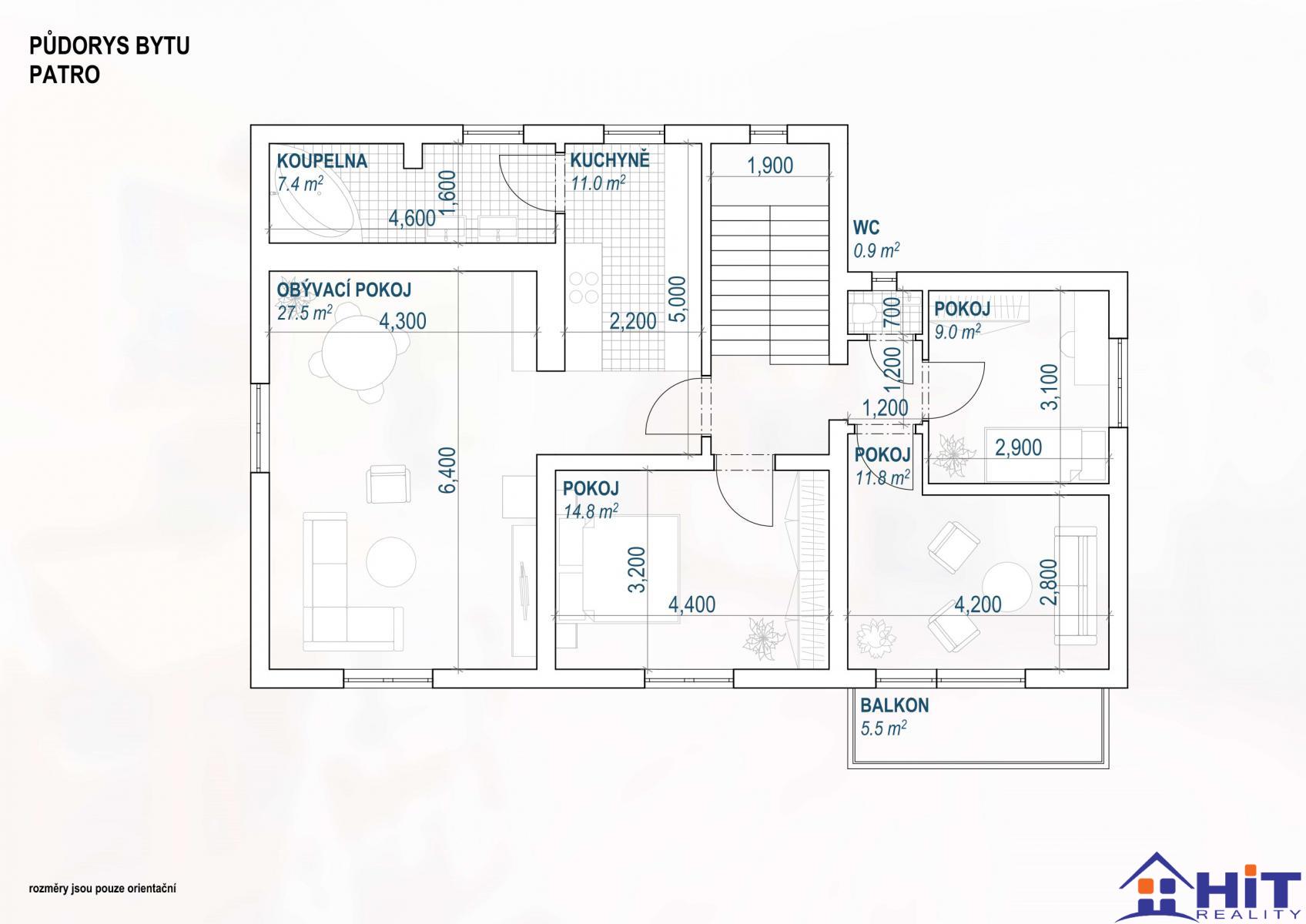
Nabízíme k prodeji mimořádně prostorný rodinný dům, který se nachází v jedné z nejvyhledávanějších a nejklidnějších částí Turnova. Nemovitost zaujme zejména svou velkorysou užitnou plochou 227 m2, mimořádným technickým stavem, rozsáhlým pozemkem (1.004 m2) a možností rozdělení na dvě samostatné bytové jednotky. Dům prošel v roce 2013 významnou rekonstrukcí a aktuálně nabízí komfortní rodinné bydlení s prvky, které běžně najdete spíše u rozsáhlejších usedlostí. Dům disponuje třemi nadzemními podlažími a celkovým podsklepením, které zahrnuje mimo jiné útulný vinný sklípek a trezorový prostor. Přízemí tvoří velká vstupní hala, chodby, úložné prostory, komora, technická místnost a obytná část (3+1) se stylovými dřevěnými parketami. Nachází se zde také první koupelna se sprchovým koutem vybaveným masážními tryskami a samostatné WC. Velkou přidanou hodnotou přízemí je zimní zahrada, která poskytuje přímé spojení s exteriérem a činí prostor příjemně světlým během celého roku. Všechny místnosti s keramickou dlažbou jsou zde vybaveny podlahovým vytápěním, což výrazně zvyšuje komfort. V prvním patře je situována hlavní obytná část domu. Najdete zde několik prostorných pokojů vhodných jako ložnice, dětské pokoje či pracovny, dále velkou koupelnu s vanou, dvěma umyvadly a vytápěným žebříkem. Toaleta je zde samostatná a disponuje vlastním malým umyvadlem, celkově byt 4+1. Z patra je přístup na balkon orientovaný do klidné části pozemku. Jednotlivá patra propojuje krásné žulové schodiště, které je nejen estetickým prvkem, ale také znakem kvalitního provedení. Podkroví je pochozí a aktuálně slouží jako další obytný nebo skladovací prostor. Díky své výšce a rozloze nabízí možnost dalšího rozšíření či přestavby podle budoucích potřeb nového majitele. Po technické stránce je dům ve výborném stavu. Vytápění (plynový kotel) zajišťují radiátory v kombinaci s podlahovým topením v přízemí a dvěma krby, které umožňují efektivní a zároveň atmosférické vytápění dřevem. Teplá voda je ohřívána elektrickým kotlem. Dům je napojen na obecní vodovod i kanalizaci, elektro přípojka je kompletní a samozřejmostí je alarm a kamerový systém, které zajišťují vysokou míru zabezpečení. V interiéru jsou použity kvalitní materiály, například masivní dřevěné dveře, žulové parapety, keramické dlažby a dřevěné parkety. Okna jsou dřevěná a poskytují velmi dobrou tepelnou i zvukovou izolaci. Součástí prodeje je také rozsáhlý pozemek se zahradou a celou řadou doplňkových staveb, které výrazně rozšiřují možnosti využití nemovitosti. Nachází se zde venkovní bazén, solární ohřev vody, pergola vhodná k posezení, velký skleník, dřevník, samostatný zahradní domek a prostorná garáž. Parkování je možné také přímo z vedlejší ulice Zborovská. Celý pozemek je světlý, dobře udržovaný a nabízí dostatek prostoru pro zahradničení, volnočasové aktivity i případné další stavební záměry. Lokalita patří mezi nejatraktivnější v rámci Turnova. Jedná se o klidnou rezidenční oblast v dosahu centra města, přičemž v okolí najdete veškerou občanskou vybavenost. Blízké okolí nabízí výjimečné možnosti pro sport i rekreaci v pěší vzdálenosti se nachází skvělé zázemí pro běžecké i cyklistické aktivity, nedaleká Jizera nabízí možnosti koupání i vodních sportů a rekreační oblast Dolánky je oblíbeným místem pro rodiny. V blízkosti je také hokejová hala, sportovní středisko TJ Turnov, lezecké terény, Klokočské skály či vstupní brána do Českého ráje. Lokalita tak spojuje výhody městského života s bezprostřední blízkostí přírody, což z ní činí ideální místo pro aktivní rodiny i milovníky klidu. Tato nemovitost představuje vynikající příležitost pro ty, kteří hledají prostorný dům ve výborném technickém stavu, s velkým pozemkem, bazénem a nadstandardním zázemím. Budeme se na Vás těšit na osobní prohlídce.
Rodinný dům, prodej, Tázlerova, Turnov, Semily
Ve výhradním zastoupení majitele Vám nabízíme k prodeji atraktivní rodinný dům s podlahovou plochou 300 m, situovaný v samotném srdci Turnova s…
Prodej rodinného domu 145 m, Turnov
Prodej rodinného domu v centru Turnova 145 m, dvě garáže Nabízíme k prodeji rodinný dům o celkové užitné ploše 145 m, nacházející se přímo v centru…
Prodej rodinného domu Turnov na Eurobydleni.cz