Pronájem kanceláře, sídlo firmy, Showroom - Kunovice
Makléř: Musil Roman
Telefon: 601 240 ...
E-mail: musil@re ...
Zobrazit celý kontaktTelefon: 601 240 412
E-mail: musil@remach.cz
pronájem
Kunovice (okres Uherské Hradiště)
Na Záhonech
Komerční, Kanceláře a administrativní prostory
03414
10.12.2025
500 m2
G - Mimořádně nehospodárná
Makléř: Musil Roman
Telefon: 601 240 ...
E-mail: musil@re ...
Zobrazit celý kontaktTelefon: 601 240 412
E-mail: musil@remach.cz
Nemovitost nabízí
Remach
Palackého nám. 175, 68601 Uherské Hradiště
Zobrazit kontakt na RK
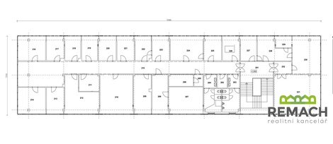
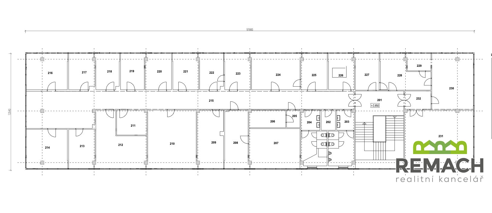
Pronájem kancelářských prostor - ulice Na Záhonech, Kunovice Nabízíme k pronájmu administrativní kancelářské prostory v komerčním areálu na ulici Na Záhonech v Kunovicích. Objekt prochází kompletní rekonstrukcí, která zajistí moderní standard a komfortní pracovní prostředí. Aktuálně je k dispozici 18 samostatných kanceláří různých velikostí. Prostory budou připraveny k nastěhování od února 2026. Výhody a vybavení: modernizovaná administrativní budova možnost parkování v areálu uzavřený a hlídaný areál - bezpečný přístup možnost pronájmu skladovacích či výrobních prostor ve stejném areálu vhodné pro firmy i živnostníky, sídla firem nebo servisní pracoviště Lokalita nabízí velmi dobrou dostupnost z hlavní komunikace a návaznost na průmyslovou část Kunovic. Ideální příležitost pro společnosti hledající kvalitní kancelářské zázemí s možností rozšíření o další provozní plochy. Rádi vám poskytneme více informací k dostupným kancelářím včetně půdorysů a cenových možností. Neváhejte nás kontaktovat pro rezervaci prostoru nebo schůzku.
Pronájem, Kanceláře, - Staré Město
Pronájem kanceláří - Zlechovská, Staré Město Nabízíme k pronájmu soubor až 10 kanceláří v administrativní budově na ulici Zlechovská ve Starém Městě.…
Pronájem, Administrativní prostory a objekty, Uherské Hradiště
Dumrealit.cz Vám zprostředkuje pronájem moderní kanceláře v budově VTP Triangl v Uherském Hradišti na ulici Stojanova. Samostatná kancelář o…