RD se zahradou, garáží a dílnou v Čáslavi
Makléř: Stehlíková Zdena
Telefon: 606 931 ...
E-mail: stehliko ...
Zobrazit celý kontaktTelefon: 606 931 485
E-mail: stehlikova@topmaklerky.cz
prodej
Mikoláše Alše
00180
10.12.2025
2
448 m2
184 m2
G - Mimořádně nehospodárná
Makléř: Stehlíková Zdena
Telefon: 606 931 ...
E-mail: stehliko ...
Zobrazit celý kontaktTelefon: 606 931 485
E-mail: stehlikova@topmaklerky.cz
Nemovitost nabízí
TOP MAKLÉŘKY
Politických vězňů 42, Kolín
Zobrazit kontakt na RK606 717 310
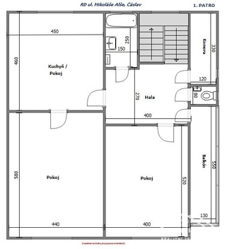
Nabízím dům v naší krásné Čáslavi, vhodný zejména pro větší rodinu, lidi podnikající z domova, či drobného řemeslníka apod. Velký dvoupatrový dům s užitnou plochou 185 m2 disponuje také prostornou garáží a dílnou, což může být pro někoho velké plus. Další výhodou může být možnost rozdělit dům na dvě bytové jednotky, ať už pro investiční využití k pronájmu, či vícegenerační soužití. Ale začněme DOMEM - ten byl přizpůsoben k bydlení dvou rodin, tzn., že po vstupu z verandy najdeme v přízemí halu, prostornou kuchyň s jídelním koutem, dva pokoje, koupelnu, samostatné WC a komoru. A úplně to samé se nachází v prvním patře, jen kuchyňská linka je již odstraněná. Z haly v horním patře je vstup na lodžii. Dům je z poloviny podsklepený a 3 místnosti sestávající z kotelny, skladu a sklepa na ovoce, jsou suché a udržované. Z kuchyně v přízemí se vstupuje na zahradu přes zastřešenou, dlážděnou terasu, která díky své orientaci na jihozápad poskytne příjemnou relaxaci hlavně odpoledne a k večeru. Nemovitost je v původním stavu, napojena na všechny IS, vytápění je zajištěno plynovým kotlem. Voda a kanalizace jsou obecní, na zalévání zahrady je k dispozici studna. A nyní již k ZAHRADĚ - je rovinatá, opečovávaná a osázená ovocnými stromy. Její velikost o výměre 274 m2 je tak akorát na využití pro odpočinek i na údržbu. Ze dvou stran je odstíněna od sousedů vlastní vedlejší stavbou a garážemi od sousedního objektu, které ovšem zahradu nijak nestíní. A poslední k popisu je GARÁŽ - tento samostatný objekt ukrývá garáž s výměrou 19 a dílnu s 15 m2. Oba prostory jsou ve výborném stavu, se zavedenou elektřinou. Na rekonstrukci lze využít dotační program Zelená úsporám. Nemovitost se nachází blízko centra města, kousek od vlakového i autobusového nádraží, prostě vše co potřebujete, ať už jsou to školy, školky, obchody, doprava, je na dosah ruky v pěší vzdálenosti.
Prodej rodinného domu se zahradou a garáží, Nad Rezkovcem , ČáslavNové Město, CP 174 m2, pozemek 130 m2,
Prodej rodinného domu v Čáslavi - ideální k rekonstrukci podle vašich představ Dvoupodlažní, podsklepený rodinný dům o užitné ploše 150 m2 se…
Prodej rodinného domu, Čáslav, ul. Lochy
Nabízíme k prodeji většinový podíl rodinného domu s číslem popisným, který se nachází v malebné lokalitě Čáslav-Nové Město. Tato samostatně stojící…