Činžovní dům, prodej, Žitavského, Praha 5, Zbraslav, Praha
Makléř: Milan Šámal
Telefon: 602 100 ...
E-mail: samal@ju ...
Zobrazit celý kontaktTelefon: 602 100 722
E-mail: samal@justo.cz
prodej
Žitavského
J12100
23.12.2025
osobní
331 m2
neuvedeno
B - Velmi úsporná
Makléř: Milan Šámal
Telefon: 602 100 ...
E-mail: samal@ju ...
Zobrazit celý kontaktTelefon: 602 100 722
E-mail: samal@justo.cz
Nemovitost nabízí
JUSTO Česká republika
Korunní 2569/108, 101 00 Praha 10
Zobrazit kontakt na RK
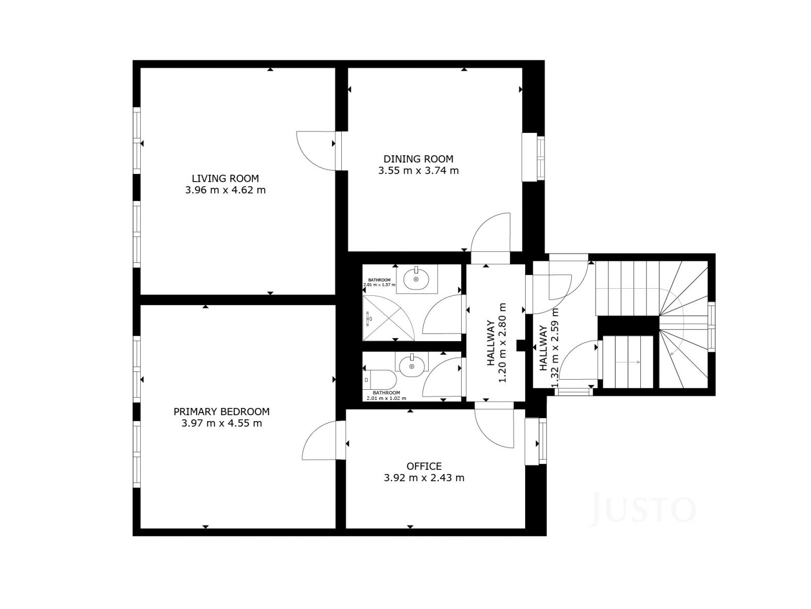
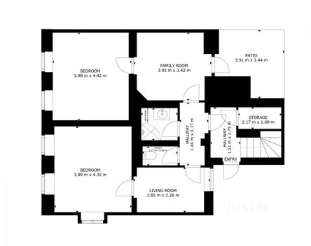
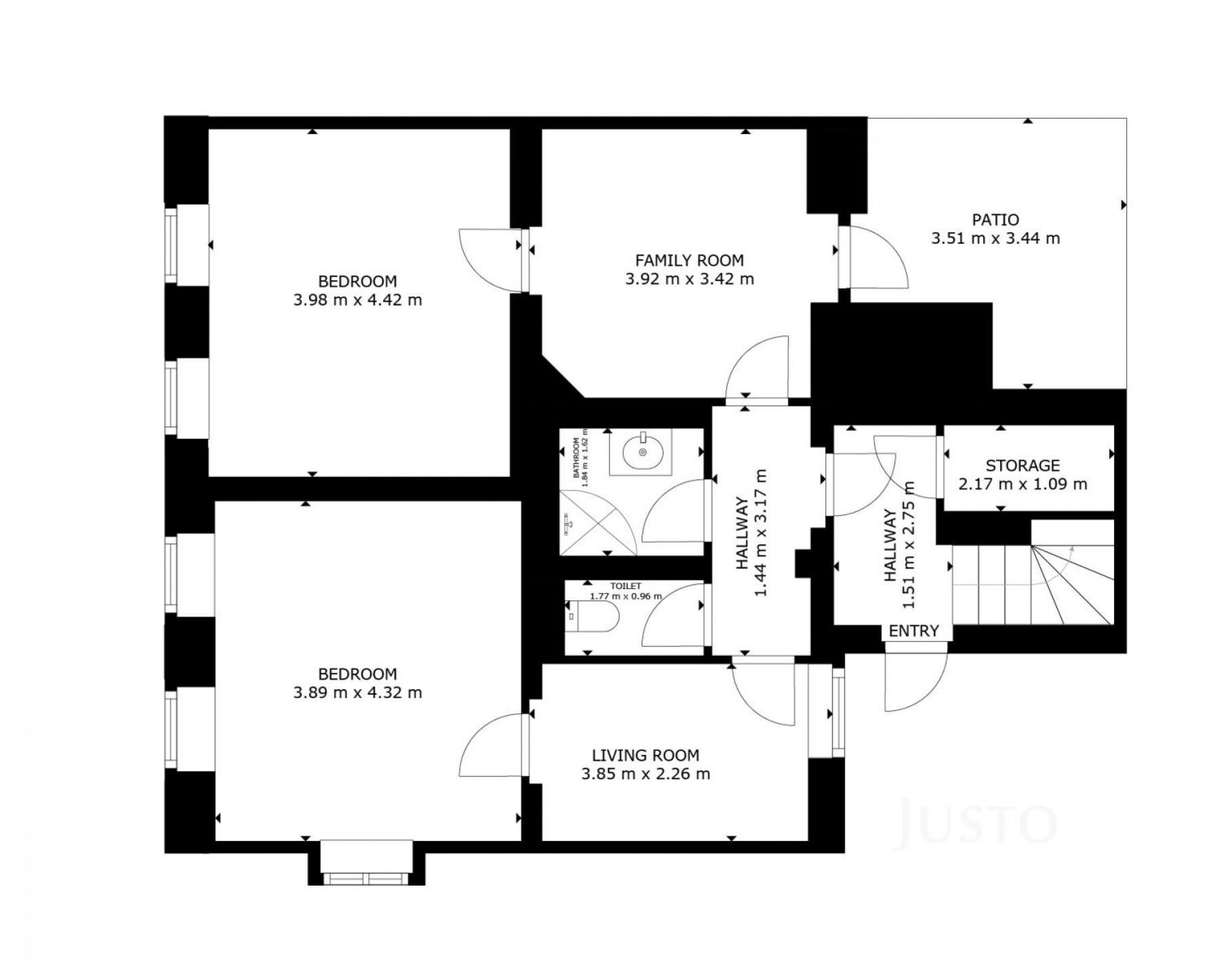
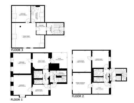
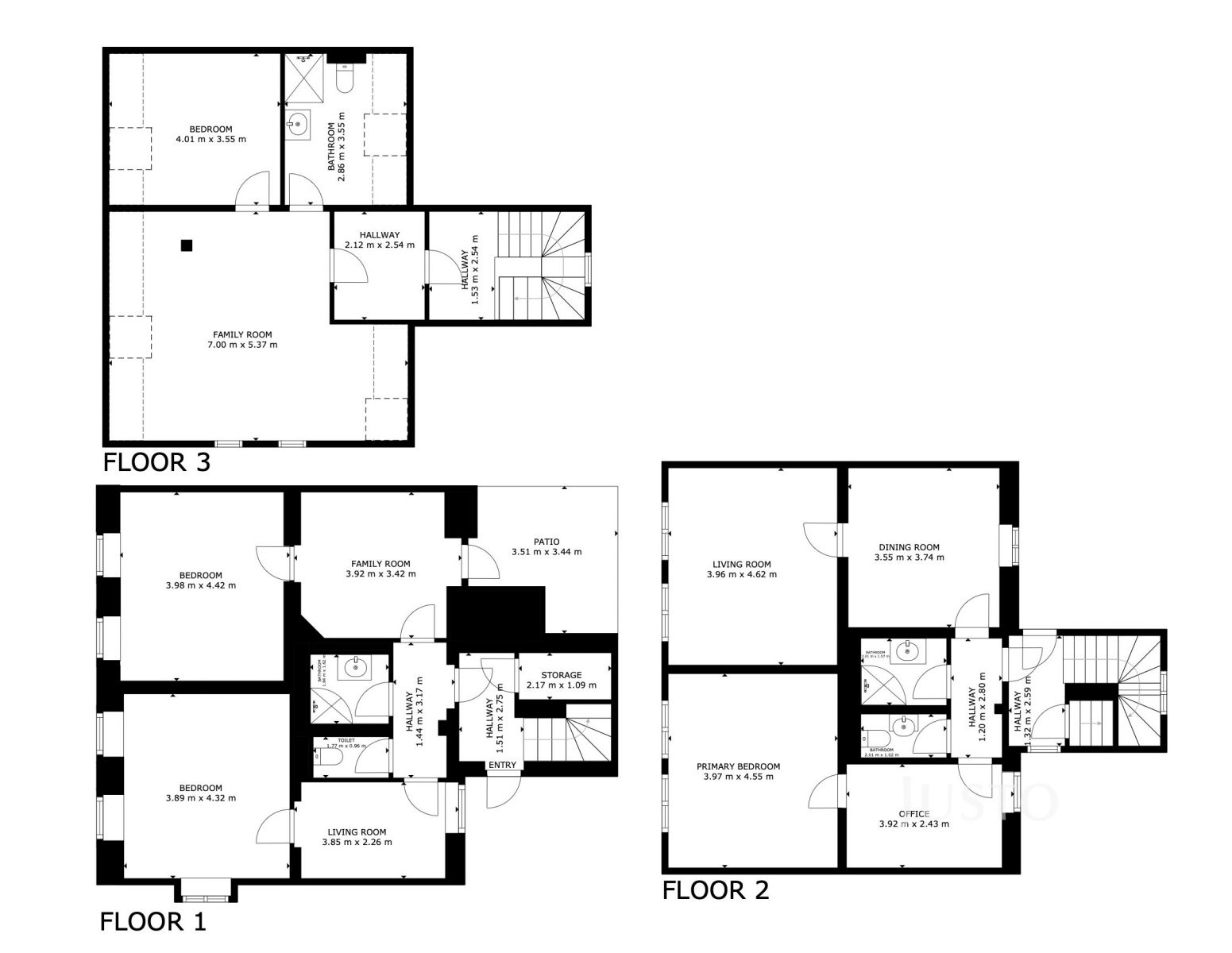
Ve výhradním zastoupení majitele nabízím k prodeji kompletně zrekonstruovaný obytný dům o užitné ploše 207 m, který se nachází v atraktivní a klidné lokalitě Prahy 5 Zbraslav, na ulici Žitavského. Tato nemovitost představuje velmi zajímavou investiční příležitost, a to díky rozdělení na tři samostatné bytové jednotky. V přízemí se nachází bezbariérová bytová jednotka o dispozici 3+1. Celková plocha bytu s příslušenstvím bez podlahové plochy svislých konstrukcí je 58,9 m a se svislými konstrukcemi je 66,4 m. K bytu náleží terasa o výlučném užívání o ploše 12,5 m. V prvním patře je bytová jednotka o dispozici 3+1. Celková plocha bytu s příslušenstvím bez podlahové plochy svislých konstrukcí je 65,1 m a se svislými konstrukcemi je 77,1 m. V druhém patře je podkrovní bytová jednotka o dispozici 2+kk. Celková plocha bytu s příslušenstvím bez podlahové plochy svislých konstrukcí je 58,3 m a se svislými konstrukcemi je 63,6 m. Každý z bytů disponuje kvalitně provedeným interiérem s moderním designem, který je připraven k okamžitému použití bez nutnosti dalších investic, vyjma kuchyňské linky. Ke každému z bytů náleží jedno parkovací stání. Objekt je napojen na centrální plynové vytápění, což zajišťuje komfortní a efektivní provoz všech bytů po celý rok. Stupeň energetické náročnosti budovy je "B", což je zárukou nízkých provozních nákladů. Dům je situován v žádané části Zbraslavi s výbornou občanskou vybaveností a dostupností služeb. V okolí najdete například supermarket Lidl (990 m), fitness centrum, restaurace a kavárny, či sportovní a rekreační zařízení. Nedaleko je i vlaková a autobusová doprava, což zajišťuje skvělou dostupnost do centra Prahy. Tato nemovitost je vhodná jak pro dlouhodobý pronájem jednotlivých jednotek, tak i pro krátkodobé ubytování, což nabízí variabilní možnosti zhodnocení investice. Pro více informací o této nemovitosti nebo sjednání prohlídky nás prosím kontaktujte nebo vyplňte formulář.
ČD na prodej, 731m2+300m2 SP, 28.Pluku, Praha 10 Vršovice
Charakteristika: Prodej činžovního domu z přelomu 1920. století v pěkné části Vršovic nedaleko ulice Kodaňské se stavebním povolením na rekonstrukci…
Činžovní dům (1.060 m2) s výnosem, 5 min. od centra Anděl- Praha 5 Košíře, Pod Kavalírkou- prodej
Hledáte investiční příležitost v Praze? Ve výhradním zastoupení si Vám dovolujeme nabídnout velmi dobře udržovaný činžovního dům z r. 1928 v Praze 5…