Prodej, Rodinný dům, Hradec Králové
Makléř: Ing. Petr Seidel
Telefon: 607 871 ...
E-mail: pseidel@ ...
Zobrazit celý kontaktTelefon: 607 871 494, 607 871 494
E-mail: pseidel@hvbreal.cz
prodej
Hradec Králové (okres Hradec Králové)
Nová
N2516883
12.12.2025
2
499 m2
102 m2
G - Mimořádně nehospodárná
Makléř: Ing. Petr Seidel
Telefon: 607 871 ...
E-mail: pseidel@ ...
Zobrazit celý kontaktTelefon: 607 871 494, 607 871 494
E-mail: pseidel@hvbreal.cz
Nemovitost nabízí
HVB Real Estate s.r.o.
Korunní 1310/56, 120 00 Praha - Vinohrady
Zobrazit kontakt na RK602 200 907
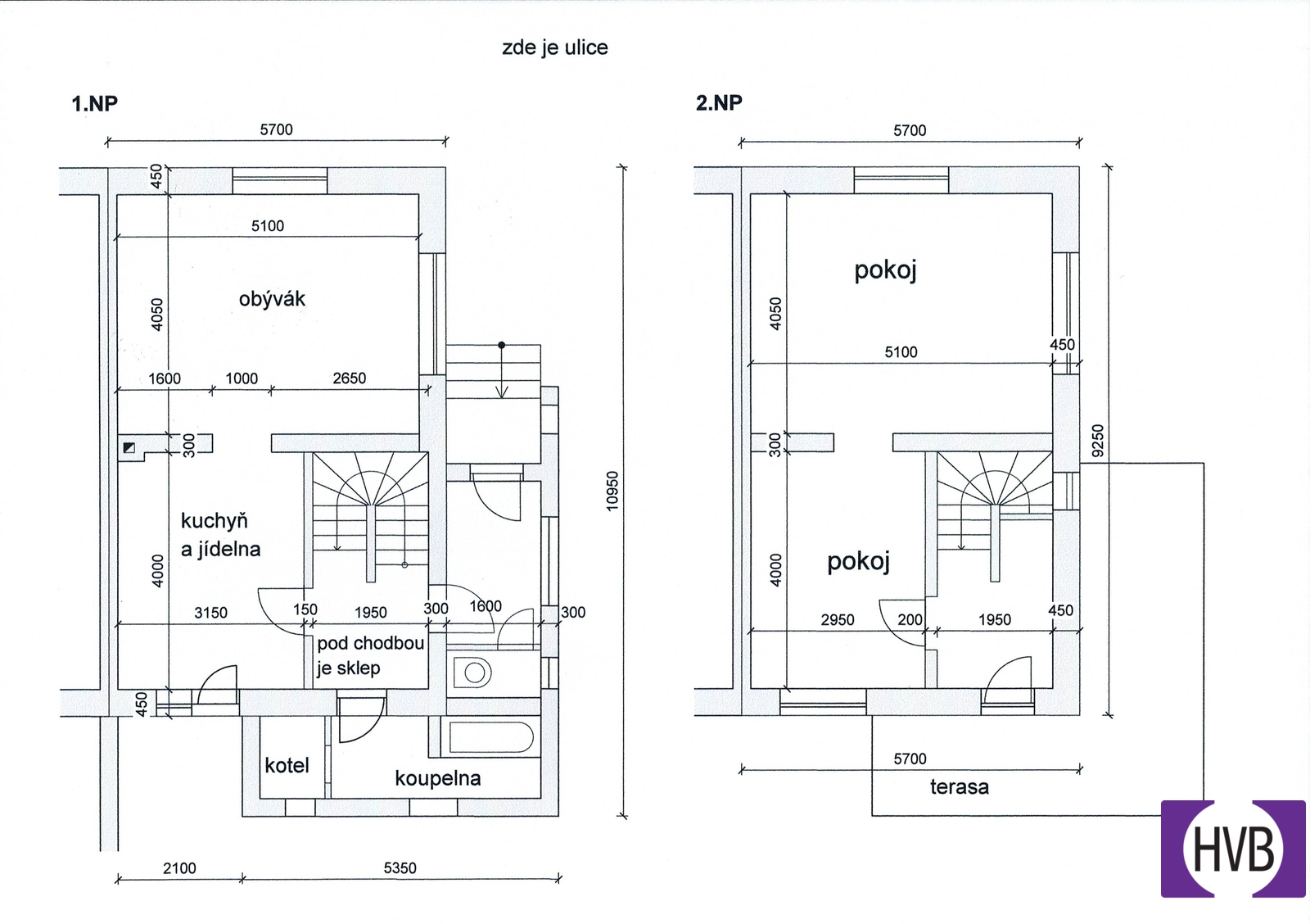
Nabízíme k prodeji rodinný dům 3+1, 101m2, na pozemku 499m2, lokalita Hradec Králové - Svobodné Dvory, ulice Nová. Jedná se o dvoupodlažní dům kolaudovaný v 50. letech minulého století, rekonstruován před cca 10 ti lety. V přízemí se nachází velký obývací pokoj a velká jídelna se vstupem na zahradu, vstupní prostor, dále koupelna s vanou, místnost pro kotel a chodba se schodišti do sklepa a do 2.NP. Ve 2.NP se nachází dva pokoje a chodba. Část domu je podsklepená. Součástí domu je větší zděná garáž s dílnou a zděná kůlna. Za těmito stavbami se se nachází klidná zahrada cca 200m2. Nemovitost se nachází v klidné oblasti krajského města v okolní zástavbě RD a luk. Možnost financovat hypotékou, výhodně vyřídíme. Bližší info telefonicky nebo mailem.
Prodej 3+1, Hradec Králové, ul. Pražská třída
Nabízíme prodej bytové jednotky 3+1 v rodinném domě se samostatným vstupem a velkou zahradou. Byt o velikosti 91 m2 se skládá se ze tří pokojů a…
Prodej rodinného domu, 159 m2, Hradec Králové, ul. U Cihelny
Nabízíme k prodeji vícegenerační rodinný dům o užitné ploše 159 m2 v klidné, slepé ulici v žádané lokalitě Svobodné Dvory v Hradci Králové. Dům je…