Vybírejte z nabídky 37 135 nemovitostí od 812 realitních kanceláří
lupa mobilní menu
Přehled nemovitostí: pronájem komerční > kanceláře > Praha Zpět na přehled nabídek

Pronájem kancelářských prostor: Praha 1 - Nové Město, Opletalova

Prodejce

Makléř: Dagmar Suchardová, ORION Realit, s.r.o.

Telefon: 739 544 ...

E-mail: info@ori ...

Zobrazit celý kontakt

pronájem

Praha (okres Praha 1)

Opletalova

Komerční, Kanceláře a administrativní prostory

211921

15.12.2025

osobní

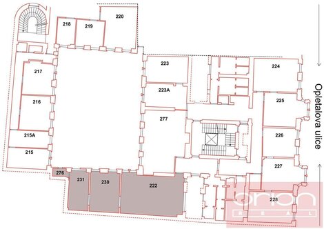
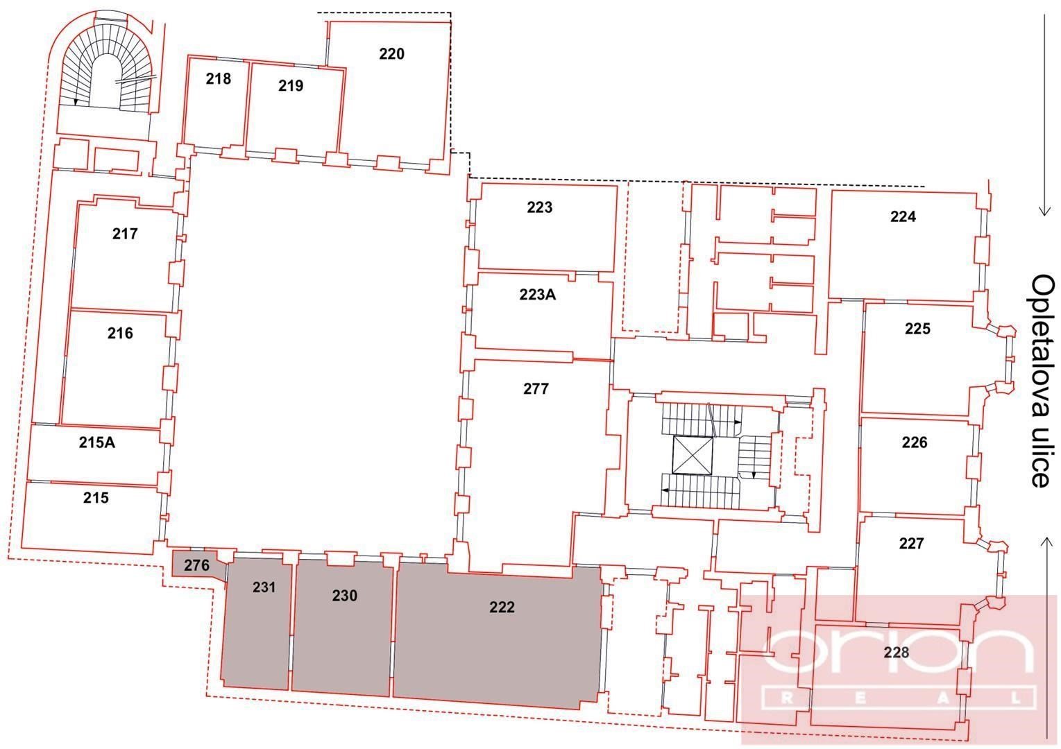
91 m2

G - Mimořádně nehospodárná

Cena: 32185 CZK / objekt / měsíc
Poznámka k ceně: + popl. paušál 3.098,00 Kč + topení 2.733,00 Kč + elektřina, voda, ohřev vody a odvoz odpadu 500,00 Kč/měs./os. Uvedené ceny jsou bez DPH 1
Prodejce

Makléř: Dagmar Suchardová, ORION Realit, s.r.o.

Telefon: 739 544 ...

E-mail: info@ori ...

Zobrazit celý kontakt
Poslat dotaz k nabídce
Zásady používání osobních údajů

Nemovitost nabízí

/loga_velka/2299.jpg

ORION Realit s.r.o.

Strakonická 3367, 15000 Praha 5 - Smíchov

www.orionreal.cz/

Zobrazit kontakt na RK

Zobrazit všechny nabídky RK

Nabízíme k pronájmu kancelářské prostory o celkové velikosti 91,10 m2 ve 3. patře zrekonstruované budovy ve vyhledávané lokalitě Praha 1 - Nové Město. Kancelářský prostor tvoří 3 místnosti vedle sebe situované do tichého dvora s vlastní kuchyňkou a toaletou. K vybavení patří klimatizace, žaluzie, koberce. Možnost doplnit pracovní stoly. Budova se nachází pouze pár kroků od stanice metra Muzeum přímo na Václavském náměstí a blízko nájezdu na magistrálu. V budově je recepce a 24/7 ostraha. K dispozici ihned, prohlídky na vyžádání.



Nahoru