Pronájem bytu 2+kk, U Zátiší, Hodkovičky, 23500 Kč/měs, 72 m2 Garážové stání, Praha
Makléř: Miloslava Kačerová
Telefon: 222 703 ...
E-mail: podpora@ ...
Zobrazit celý kontaktTelefon: 222 703 030
E-mail: podpora@idealninajemce.cz
pronájem
U Zátiší
N2906
17.12.2025
2 (dům má 7 podlaží)
osobní
72 m2
72 m2
G - Mimořádně nehospodárná
Makléř: Miloslava Kačerová
Telefon: 222 703 ...
E-mail: podpora@ ...
Zobrazit celý kontaktTelefon: 222 703 030
E-mail: podpora@idealninajemce.cz
Nemovitost nabízí
Ideální nájemce
Lazaretní 925/9, 615 00 Brno
Zobrazit kontakt na RK222 703 030
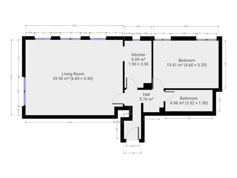
K dlouhodobému podnájmu nabízíme krásný prostorný byt po rekonstrukci o dispozici 2+kk v atraktivní lokalitě Praha - Hodkovičky. Byt o celkové výměře 72 m2 se nachází ve druhém patře cihlové novostavby s výtahem. K bytu patří i sklep, a garážové parkovací stání v podzemní garáži. Byt má výhled do zeleně. Byt se nabízí částečně vybavený. Stylová kuchyně disponuje lednicí, vestavěnou elektrickou troubou, plynovým sporákem, myčkou a digestoří. Součástí prostorné obývací skříně je šatní skříň. Ložnice je nezařízená. V krásné koupelně najdeme sprchový kout, umyvadlo, pračku a sušičku. V okolí domu jsou restaurace, základní škola, dětská hřiště, supermarket Billa. V dojezdové vzdálenosti je supermarket Kaufland. Dopravní dostupnost je zajištěna zastávkou Na Lysinách, která je vzdálená tři minuty chůze od domu. Byt je volný k nastěhování od 1.4.2026. Uvedena energetická kategorie G, jelikož nemáme k dispozici PENB. Byt pronajímá Ideální nájemce - služba, se kterou budete bydlet bezstarostně a za férových podmínek. Když se něco přihodí, k dispozici jsou správci, kteří s vámi vše vyřeší. Pomůžeme s veškerou administrativou, s nastavením plateb a zajistíme vám speciální pojištění. Pojďte bydlet s námi!
Světlý byt 2+kk s balkonem v klidné části Prahy 5 Na Valentince
Nabízíme k pronájmu prostorný a světlý byt 2+kk o ploše 65m s příjemným balkonem o velikosti 8m, umístěný v 6. patře bytového domu s výtahem v klidné…
Pronájem bytu : Praha 7 - Bubeneč, Šmeralova
Nabízíme k pronájmu velice hezký, moderně zařízený byt 2+kk s užitnou plochou 52m2, který se nachází ve 2.patře kompletně zrekonstruovaného secesního…