Prodej, Rodinný dům, Červené Pečky
Makléř: Jaroslav Menc
Telefon: 495 518 ...
E-mail: jaroslav ...
Zobrazit celý kontaktTelefon: 495 518 830, 602 419 411
E-mail: jaroslav.menc@globalreality.cz
prodej
Na Vyhlídce
4707
21.04.2026
1
922 m2
101 m2
B - Velmi úsporná
Makléř: Jaroslav Menc
Telefon: 495 518 ...
E-mail: jaroslav ...
Zobrazit celý kontaktTelefon: 495 518 830, 602 419 411
E-mail: jaroslav.menc@globalreality.cz
Nemovitost nabízí
Global Reality HK s.r.o.
Havlíčkova 401, 500 02 Hradec Králové
Zobrazit kontakt na RK495 518 830
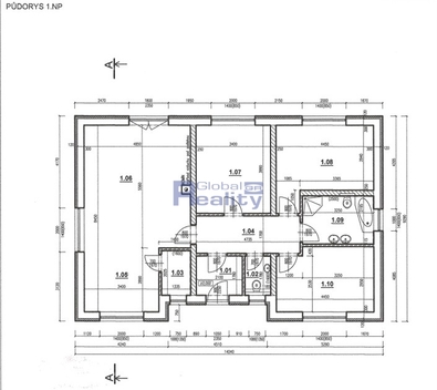
4707 - Zděný, samostatně stojící rodinný dům o velikosti 4+1, vybudovaný před 5 lety na pozemku o celkové výměře 922m2 v nové zástavbě rodinných domů. Dispozice: zádveří, chodba, obývací pokoj s jídelnou, kuchyň, komora, 3 pokoje, WC a koupelna. Dům je napojen na veškeré inženýrské sítě. Velmi dobrý stav, pěkné místo, atraktivní lokalita. V případě zájmu volejte makléře.
Prodej rodinného domu
4707 - Zděný, samostatně stojící rodinný dům o velikosti 4+1, vybudovaný před 5 lety na pozemku o celkové výměře 922m2 v nové zástavbě rodinných domů…
Prodej rodinného domu, 78 m2, Červené Pečky, ul. 9. května
Nabízíme k prodeji samostatný rodinný dům v klidné části obce Červené Pečky, který zaujme svou kombinací komfortu, soukromí a moderního zázemí.…