Vybírejte z nabídky 37 143 nemovitostí od 812 realitních kanceláří
lupa mobilní menu
Přehled nemovitostí: pronájem komerční > skladové prostory > Horní Bříza Zpět na přehled nabídek

Pronájem skladové haly o užitné ploše 895 m2 v Tovární ulici v Horní Bříze, Horní Bříza

Prodejce

Makléř: Mašek Michal

Telefon: 733 108 ...

E-mail: masek@pu ...

Zobrazit celý kontakt

pronájem

Horní Bříza (okres Plzeň-sever)

Tovární

Komerční, Skladové prostory

21362MA-1

17.12.2025

895 m2

G - Mimořádně nehospodárná

Cena: 70000 CZK / objekt / měsíc
Poznámka k ceně: + DPH, + režie, včetně právního servisu 1
Prodejce

Makléř: Mašek Michal

Telefon: 733 108 ...

E-mail: masek@pu ...

Zobrazit celý kontakt
Poslat dotaz k nabídce
Zásady používání osobních údajů

Nemovitost nabízí

/loga_velka/9817.jpg

REALITNÍ KANCELÁŘ PUBEC, s.r.o.

Šafaříkovy sady 2455/5, 301 00 Plzeň

www.pubec.cz

Zobrazit kontakt na RK

Zobrazit všechny nabídky RK

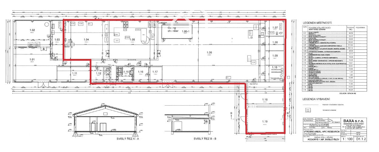
Předmětem pronájmu je skladová hala, která se nachází v uzavřeném, střeženém výrobním areálu v Horní Bříze - dojezdový čas z centra města Plzně je cca. 17 minut. Jedná se o halu postavenou kombinací betonové konstrukce a porobetonu. Užitná plocha haly je 895,m2, výška 3,5 m, vjezd je zajištěn průmyslovými vraty o rozměrech 3 m x 3 m. Před halou se nachází zpevněná venkovní betonová plocha, která použitelná na logistickou obsluhu haly a parkování osobních automobilů a dodávek. Hala disponuje průmyslovou betonovou podlahou a zahrnuje několik skladových prostor, kanceláří a kompletním zázemím pro zaměstnance. Půdorys haly je možné vidět mezi inzertními fotografiemi. Venkovní zpevněná plocha má dostatečnou únosnost pro logistickou obsluhu haly nákladními auty či vozidly kategorie TIR. Skladová hala je napojena na všechny inženýrské sítě tj. elektřinu, plyn, vodu a kanalizaci. Elektroinstalace je nyní dimenzována pro strojní výrobu cca. 3x140A. Vytápění je zajištěno plynovým kotlem s rozvodem teplé vody do radiátorů a sahar. Pronájem haly je možný od 15.1.2026. Areál disponuje 24 h ostrahou a vlastní trafostanicí. Zastávka autobusu a vlaku je vzdálena v dochozí vzdálenosti cca 700 m. Do areálu je bezproblémový příjezd nákladních vozidel a vozidel TIR. Zajištěn je i dostatek místa pro jejich vykládku či nakládku. V případě dotazů, či přání si nabízené prostory prohlédnout, neváhejte kontaktovat našeho makléře pana Michala Maška.



Nahoru