Stavební pozemek s projektem malého domku včetně stavebního povolení v Těšovicích u Sokolova, Těšovice
Makléř: David Veršecký
Telefon: 775 604 ...
E-mail: david@rk ...
Zobrazit celý kontaktTelefon: 775 604 327
E-mail: david@rk-sedlacek.cz
Makléř: David Veršecký
Telefon: 775 604 ...
E-mail: david@rk ...
Zobrazit celý kontaktTelefon: 775 604 327
E-mail: david@rk-sedlacek.cz
Nemovitost nabízí
Realitní kancelář Sedláček s.r.o.
Slezská 954, 356 01 Sokolov
Zobrazit kontakt na RK775 604 327
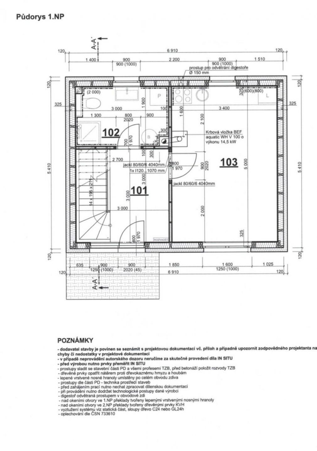
Nabízíme k prodeji stavební pozemek o celkové výměře 275 m, situovaný v klidné části obce Těšovice s výbornou dostupností do okresního města Sokolov s kompletní občanskou vybaveností. Pozemek je ideální pro klienty, kteří hledají úsporné a minimalistické bydlení v rekreačním objektu s nízkými náklady na výstavbu i pozdější provoz. Součástí nabídky je kompletní projekt se stavebním povolením pro nízkonákladový objekt o zastavěné ploše 40,40 m. Jedná se o nepodsklepenou, jednopodlažní stavbu s půdním prostorem, která je navržena s ohledem na efektivní využití prostoru. Projekt počítá s těmito místnostmi: Obývací pokoj s kuchyňským koutem 17 m Koupelna s WC 5,7 m Zádveří 9 m Půdní prostor využitelný jako úložný či relaxační Inženýrské sítě: Připojení na veřejný vodovod Veřejná kanalizace Elektrická přípojka 230 V je již na pozemku vybudovaná Pro nízké náklady na vytápění je projekt počítán s využitím kvalitní teplovodní krbové vložky BEF AQUATIC WH V 100, která má integrovaný teplovodní výměník pro rozvod tepla do otopného systému. Tato vložka je navržena pro efektivní a čisté spalování dřeva s výkonem vhodným právě do menších objektů, a díky výměníku lze teplo s vysokou účinností využít i pro ohřev vody či topení domu. Součástí projektu je i samostatný dřevník o zastavěné ploše 11 m, který je na pozemku již hotový ideální pro uskladnění palivového dřeva nebo zahradního nářadí. Těšovice klidné a příjemné místo s dobrou dostupností do Sokolova a napojením na hlavní komunikace. Výborné místo pro ty, kteří chtějí kombinaci venkovského klidu a dostupnosti služeb města.
Prodej pozemku k bydlení, 1296 m2, Kynšperk nad Ohří
Prodej krásného pozemku určeného k bydlení o rozloze 1296 m2. Pozemek navazuje na město Kynšperk n. Ohří. Pozemek je v územní plánu veden pro stavbu…
Prodej pozemku k bydlení 671 m2 v Kraslicích
Hledáte ideální místo pro bydlení? Nabízíme prodej pozemku pravidelného tvaru, v mírném svahu o velikosti 671 m2, který se nachází v okrajové části…