Kanceláře 95m2 Komárov, Konopná - blízko centra i dálnice, Brno
Makléř: Tomáš Bajgl
Telefon: 511 141 ...
E-mail: bajgl@re ...
Zobrazit celý kontaktTelefon: 511 141 484, 773 020 020
E-mail: bajgl@realoffice.cz
pronájem
Konopná
Komerční, Kanceláře a administrativní prostory
259424
18.12.2025
osobní
95 m2
G - Mimořádně nehospodárná
Makléř: Tomáš Bajgl
Telefon: 511 141 ...
E-mail: bajgl@re ...
Zobrazit celý kontaktTelefon: 511 141 484, 773 020 020
E-mail: bajgl@realoffice.cz
Nemovitost nabízí
REAL OFFICE s.r.o.
Konopná 4, 61700 Brno
Zobrazit kontakt na RK511 141 484
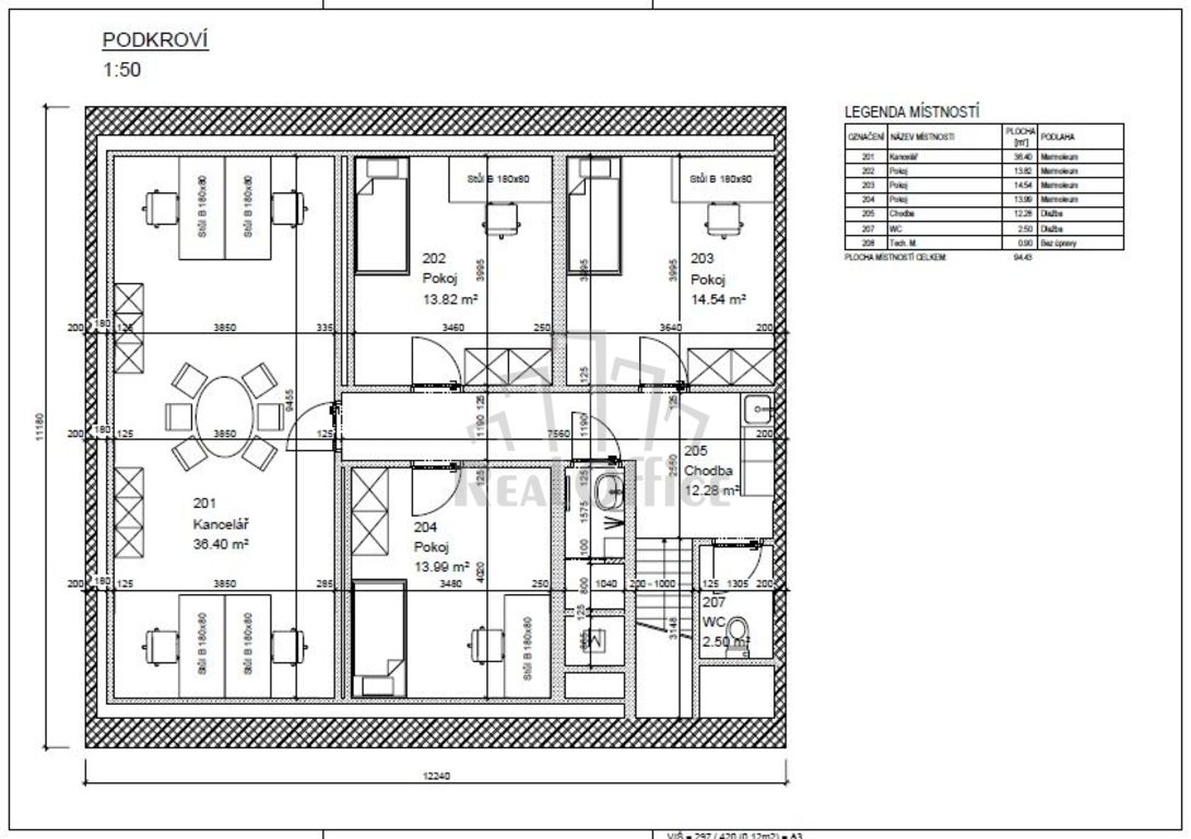
Nabízíme pronájem celého patra, tj. 4 klimatizovaných nezařízených místností se samostatnými vstupy o rozměrech 36m2, 14m2, 14m2, 14m2 a zázemí, tzn. celku o ploše cca 95m2 v bezprostřední blízkosti centra města v lukrativní městské části Brno-Komárov na ulici Konopná. Reprezentativní prostory se nachází ve 2.patře/2. (podkroví) cihlového zrekonstruovaného domu, který je celý využíván ke komerčním účelům. Společné prostory - chodba 12 m2, soc. zařízení 5 m2 (místnost s umyvadlem+sprchovým koutem a místnost s umyvadlem+WC). Prostory jsou orientovány do ulice i do dvora (v půdorysu č.201, 202, 203 a 204 - v této místnosti nyní také umyvadlo). V prostoru chodby je k dispozici kuchyňka s lednicí. Internet v ceně, wi-fi. Možnost parkování před domem. Dům střežen kamerovým systémem, otevírání vstupních dveří s kamerou. Prostory lze užívat pro klasickou kancelářskou/obchodní činnost, popř. i pro masáže, fyzioterapii a obdobné činnosti. Měs. nájemné: 22.000 Kč + zál. na energie, (v případě plátců + DPH). Vratná kauce 1 nájem. Provize RK 1 nájem. V blízkosti je veškerá občanská vybavenost (pošta, restaurace, obchodní centrum, atd.). Výborná dostupnost na dálnici i do centra města (5-10min.). Volné ihned. Více info v RK.
Pronájem: kancelářské prostory 14 m2
BEZ PROVIZE nabízíme k pronájmu klimatizované administrativní prostory o celkové volné ploše 297 m2. Kanceláře se nachází v hlavní budově výrobního…
Pronájem kancelářských prostor (35 m2) Plynárenská, Brno
Nabízíme pronájem kancelářských prostor o podlahové ploše 35 m2, ul. Plynárenská, Brně. Prostory se nacházejí v 8. patře zajímavé administrativní…