Pronájem, Administrativní prostory a objekty, Český Těšín
Makléř: Bc. Šárka Otipková
Telefon: 774 581 ...
E-mail: sarka.ot ...
Zobrazit celý kontaktTelefon: 774 581 213
E-mail: sarka.otipkova@ferovi-makleri.cz
pronájem
Nová Tovární
Komerční, Kanceláře a administrativní prostory
1746
09.04.2026
1 053 m2
G - Mimořádně nehospodárná
Makléř: Bc. Šárka Otipková
Telefon: 774 581 ...
E-mail: sarka.ot ...
Zobrazit celý kontaktTelefon: 774 581 213
E-mail: sarka.otipkova@ferovi-makleri.cz
Nemovitost nabízí
Féroví makléři
Svatoplukova 612/9, 700 30 Ostrava
Zobrazit kontakt na RK723 684 886
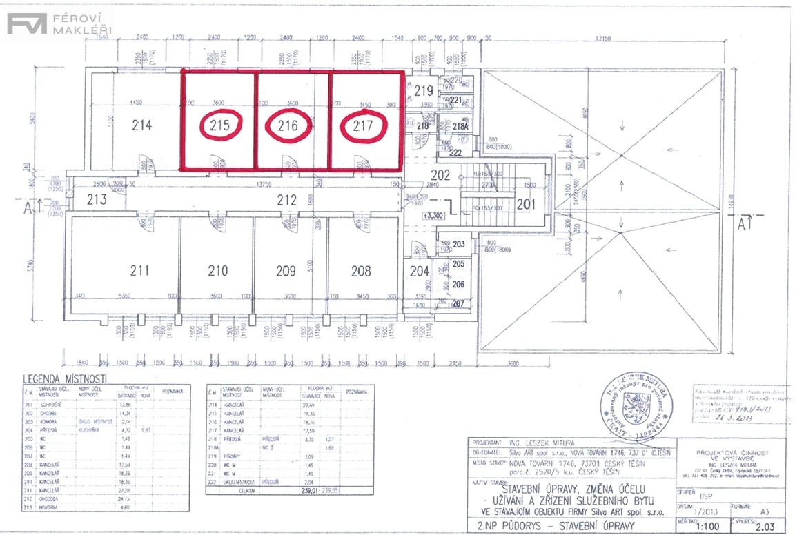
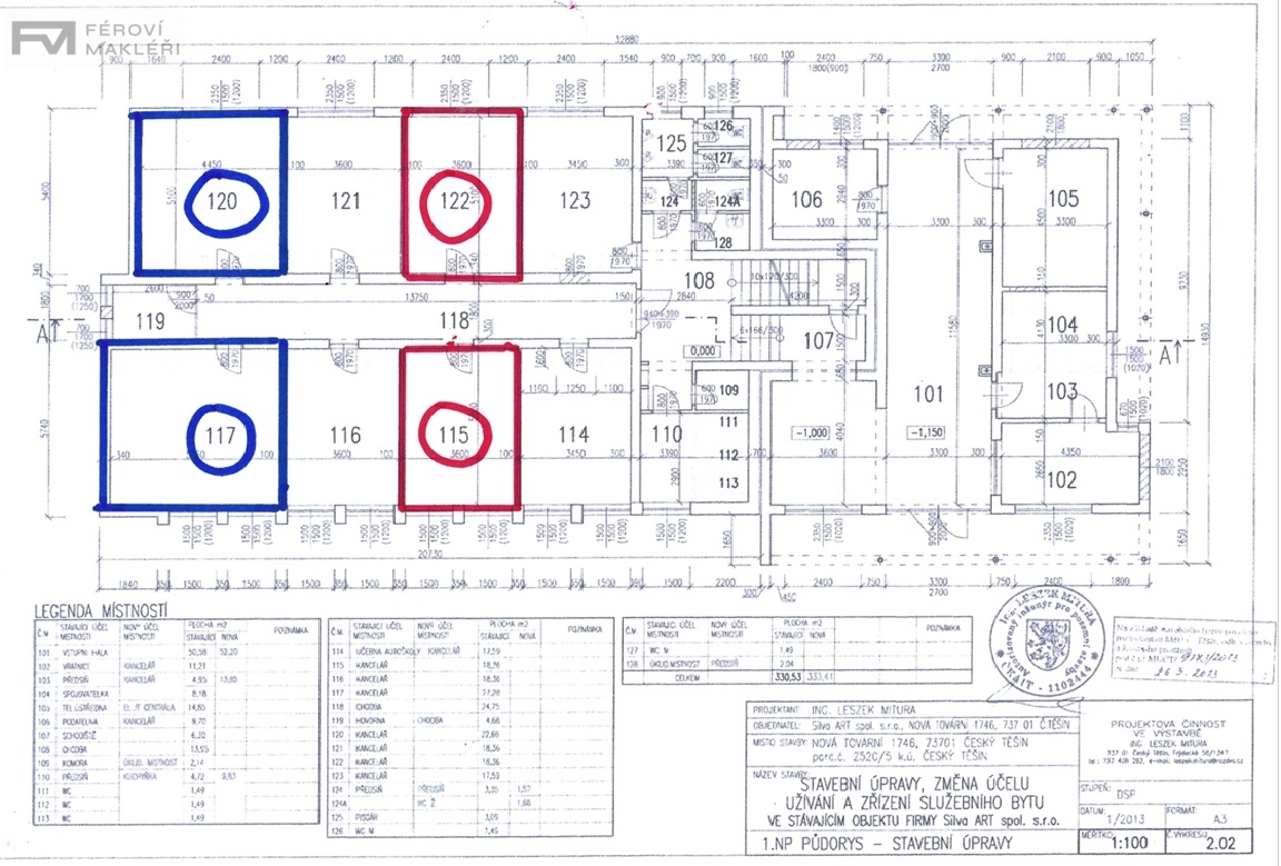
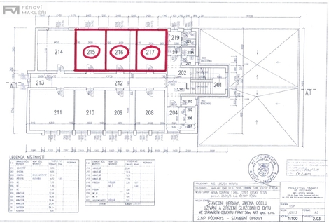
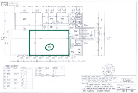
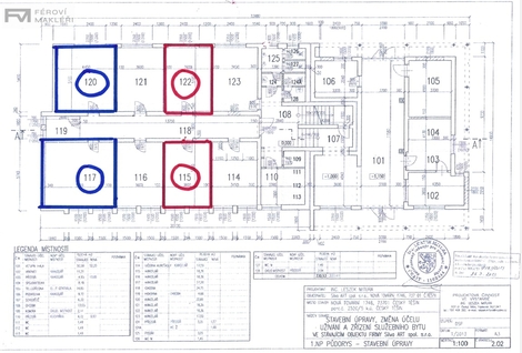
Nabízíme pronájem nebytových prostor na zajímavé adrese za rozumnou cenu. Komerční prostory se nacházejí v oploceném areálu v Českém Těšíně na ulici Nova Tovární. Jedná se o bezpečnou lokalitu s dostatkem parkovacích míst v areálu i mimo areál v těsné blízkosti pronajatých místností. Prostor v budově lze využít jako kanceláře, sklad, dílnu, ateliér nebo provozovnu. Jedná se o 4 místnosti v přízemí, 3 místnosti v prvním patře a 1 velká místnost ve druhém patře. Velikost místností je označena barevně na půdorysu, Červeně do 18 m2 - místnosti č. 115, 122, 215, 216, 217. Modře do 26 m2 místnosti č. 117 a č. 120. Zeleně 76 m2 místnost č. 307. Cena pronájmu včetně vytápění a internetového připojení a používání společné kuchyňky na chodbě a oddělených WC pro muže a ženy je za místnosti 18 m2 3500,- Kč/měsíc, za místnosti do 26 m2 4500,- Kč/měsíc a za největší místnost o velikosti 76,7 m2 je 12000,- Kč/měsíc. Spotřebu elektřiny, vody a tepla si platí nájemce dle vyúčtování skutečné spotřeby. Ke každému pronájmu je povinná měsíční platba za úklid v budově (mytí chodby, schodů, oken, dveří, kuchyňky, wc), údržba zeleně a odklízení sněhu 1000,- Kč. Pokud si nájemce pronajme více kanceláří, bude poskytnuta sleva. Provize RK v ceně jednoho nájmu platí nájemce. V areálu není kantýna, ale je možnost objednat si dovážku jídla dle denní nabídky.
Kancelář, pronájem, Ostravská, Mistřovice, Český Těšín, Karviná
Pronájem kanceláře v Českém Těšíně na ul. Ostravská o celkové výměře 23,21 m2 (kancelář č.4.03 v půdorysu) se společnými prostory soc. zázemí včetně…
Pronájem, Administrativní prostory a objekty, Český Těšín
Brusírnu v Českém Těšíně zná snad každý. Z původní nemovitosti zbyla pouze železobetonová konstrukce a nyní je ve zcela novém kabátě. Lepší budovu s…