Prodej novostavby RD 4+kk, 130 m2, na pozemku 458 m2, Dolní Kamenice u Velvar, Chržín
Makléř: Bc. Antonín Dvořák
Telefon: 731 444 ...
E-mail: dvorak@r ...
Zobrazit celý kontaktTelefon: 731 444 715
E-mail: dvorak@rkgroup.cz
prodej
8808
20.12.2025
2
osobní
458 m2
130 m2
G - Mimořádně nehospodárná
Makléř: Bc. Antonín Dvořák
Telefon: 731 444 ...
E-mail: dvorak@r ...
Zobrazit celý kontaktTelefon: 731 444 715
E-mail: dvorak@rkgroup.cz
Nemovitost nabízí
RK Group realitní kancelář
K Dalejím 89/2, 152 00 Praha 5
Zobrazit kontakt na RK739 092 000
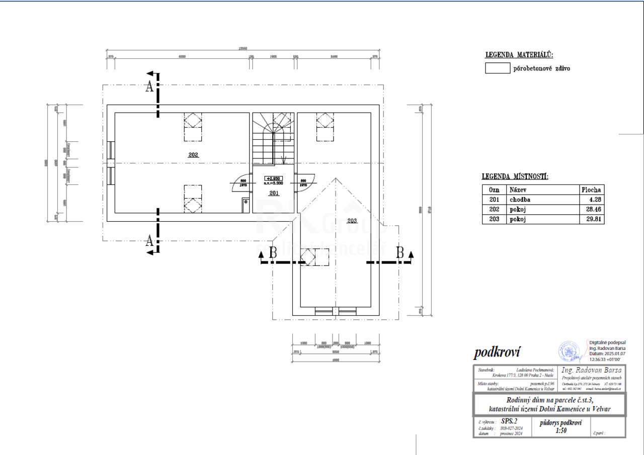
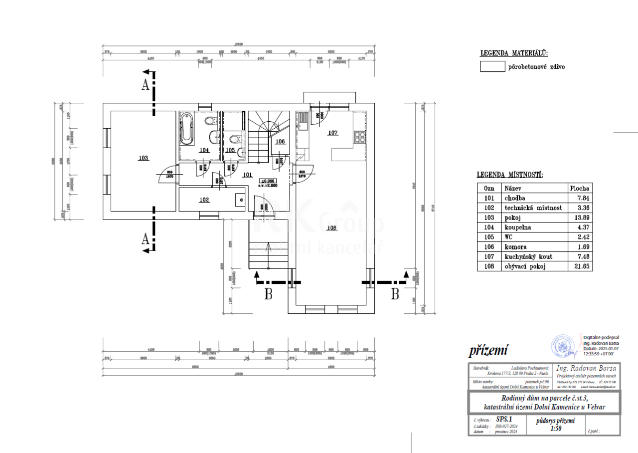
Nabízíme prodej novostavby RD 130 m2 na pozemku 458 m2 v obci Dolní Kamenice u Velvar, okr. Kladno. Jedná se o nepodsklepený rodinný dům s podkrovím, kolaudace 11/2025. V přízemí obývací pokoj s prostorem připraveným na instalaci kuchyňské linky, ložnice, dvě koupelny s WC (jedna s vanou, druhá se sprchou), komora a technická místnost s kotlem zn. Buderus zajišťujícím vytápění a ohřev TUV. V podkroví jsou dva větší pokoje. Dům je napojen na všechny inženýrské sítě, vč. obecní kanalizace. Zdivo Porfix P2-440, železobetonové stropy, sedlová střecha, tašková krytina. Okna plastová, v podkroví střešní okna. Podlahy laminátové + dlažba, schodiště betonové, schodnice z bukového masivu, nerez zábradlí. Příprava pro TV a internet - rozvody v celém domě, instalováno zabezpečovací zařízení. Provedeny terénní úpravy, vč. založení trávníku. Na pozemku jedno parkovací místo. Dolní Kamenice u Velvar je klidná část obce, v nedalekých Velvarech se nachází veškerá občanská vybavenost. Blízkost D8 zaručuje výbornou dopravní dostupnost Prahy. V případě financování hypotékou Vám zdarma pomůžeme vybrat tu nejvýhodnější variantu. Pro více informací kontaktujte makléře.
Prodej rodinného domu, 91 m2, Třebíz
Na prodej rodinný dům v malebné obci Třebíz, situovaný přímo na historické návsi. Dům o dispozici 4+1 nabízí komfortní bydlení ve dvou nadzemních…
Prodej rodinného domu, 180 m2, Kladno, ul. Třebízského
Nabízím k prodeji prostorný rodinný dům v Kladně, který je skvělou příležitostí pro pohodlné bydlení i výhodnou investici. Dům má dvě nadzemní…