Prodej zahrady, 197 m2, Klimkovice, ul. U Zahrádek
Makléř: Novák Daniel
Telefon: 296 399 ...
E-mail: info@mmr ...
Zobrazit celý kontaktTelefon: 296 399 006
E-mail: info@mmreality.cz
prodej
Klimkovice (okres Ostrava-město)
U Zahrádek
927780
23.12.2025
osobní
197 m2
Makléř: Novák Daniel
Telefon: 296 399 ...
E-mail: info@mmr ...
Zobrazit celý kontaktTelefon: 296 399 006
E-mail: info@mmreality.cz
Nemovitost nabízí
M&M reality holding a.s.
Krakovská 1675/2, 110 00 Praha 1
Zobrazit kontakt na RK800 100 446
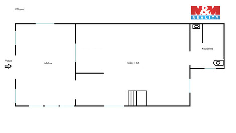
Exkluzivně nabízíme k prodeji udržovanou zahradu o rozloze 197 m2, nacházející se v Zahrádkářské osadě Viola, na okraji obce Klimkovice. Zahrada je osázená ovocnými stromy a okrasnými keři. Je oplocená a nabízí k využití dosud nezkolaudovanou, celoročně využitelnou, nepodsklepenou, dřevěnou chatu s přilehlou venkovní terasou. Chata je vytápěná kamny a je napojená na veřejný vodovod a elektřinu. V přízemí chaty je k dispozici jídelna, obývací pokoj s kuchyňským koutem a koupelna s WC. V podkroví je samostatný pokoj s balkónem. Součástí nemovitosti je i plechový zahradní domek pro uskladnění nářadí. Skvělá dostupnost z Ostravy autem i MHD, činí tuto nemovitost ideálním místem pro ty, kteří hledají prostředí k relaxaci, odpočinku a zahrádkaření. Pro více informací a prohlídku nás neváhejte kontaktovat.
Prodej, Pozemky 15.602 m2 ,Vratimov __Horní Datyně
Nabízíme Vám ve výhradním zastoupení majitele k prodeji rovinatý pozemek v obci Vratimov - Horní Datyně o celkové rozloze 15 602m2.Jedná se o dvě…
Prodej, Zahrada, Ostrava
Nabízíme na prodej zahradu skládající se ze dvou parcel o celkové výměře 1564m2. Zahrada se nachází v chatové oblasti u velkého Rybníka v…