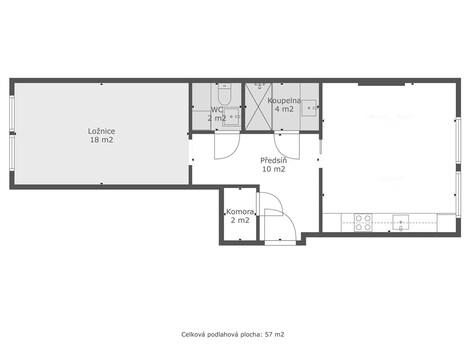
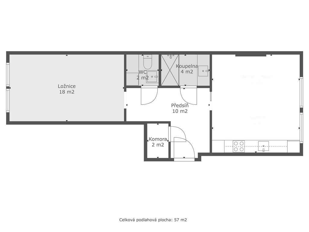
Prodej bytu 2+kk 57m2 Mostecká, Praha 1
Makléř: Ing. Bulan Petr
Telefon: 604 955 ...
E-mail: petr.bul ...
Zobrazit celý kontaktTelefon: 604 955 755
E-mail: petr.bulan@century21.cz
prodej
Mostecká
972411
07.01.2026
2 (dům má 7 podlaží)
osobní
57 m2
57 m2
G - Mimořádně nehospodárná
Makléř: Ing. Bulan Petr
Telefon: 604 955 ...
E-mail: petr.bul ...
Zobrazit celý kontaktTelefon: 604 955 755
E-mail: petr.bulan@century21.cz
Nemovitost nabízí
CENTURY 21 Ruby
Přemyslovská 2845/43, 130 00 Praha 3
www.century21.cz/kancelar/ruby/
Zobrazit kontakt na RK603 488 499
Nabízíme k prodeji stylový byt 2+kk, který vyniká precizním zpracováním interiéru a důrazem na detail. Byt se nachází ve třetí podlaží patře kompletně zrekonstruovaného cihlového domu ve vnitrobloku jen 200 metrů od Karlova mostu. Nabízí nadstandardní komfort pro náročného majitele. Celý interiér je zařízen vysoce kvalitními materiály. Součástí bytu je plně vybavená kuchyňská linka vyrobená na míru, včetně vestavných spotřebičů (myčka, lednice, trouba, varná deska, digestoř) a promyšleného úložného prostoru. Vše bylo navrženo s ohledem na estetiku i funkčnost. Jedná se o výjimečnou nabídku v exkluzivní lokalitě. Byt je možné financovat hypotečním úvěrem se kterým vám rádi pomůžeme.
REZERVACE. Prodej bytu 2+kk, terasa, předzahrádka, parkovací místo, sklep, Rezidence Zvonařka, Praha
REZERVACE. Prodej prostorného bytu 2+kk s terasou a předzahrádkou se vzrostlou zelení, s garážovým stáním a sklepem v atraktivní a klidné Rezidenci…
Nový pasivní byt 2+kk s lodžií v Terra Barrandov, Praha 5
Terra Barrandov Praha 5, ulice Silurská 2+kk 55,7 m2 s lodžií 10 m2 v 5. nadzemním podlaží Orientace bytu: V Nabízíme moderní byt 2+kk v 5.…