Vybírejte z nabídky 37 524 nemovitostí od 817 realitních kanceláří
lupa mobilní menu
Přehled nemovitostí: prodej byty > 3+kk > Šlapanice Zpět na přehled nabídek

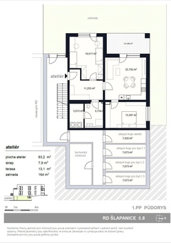
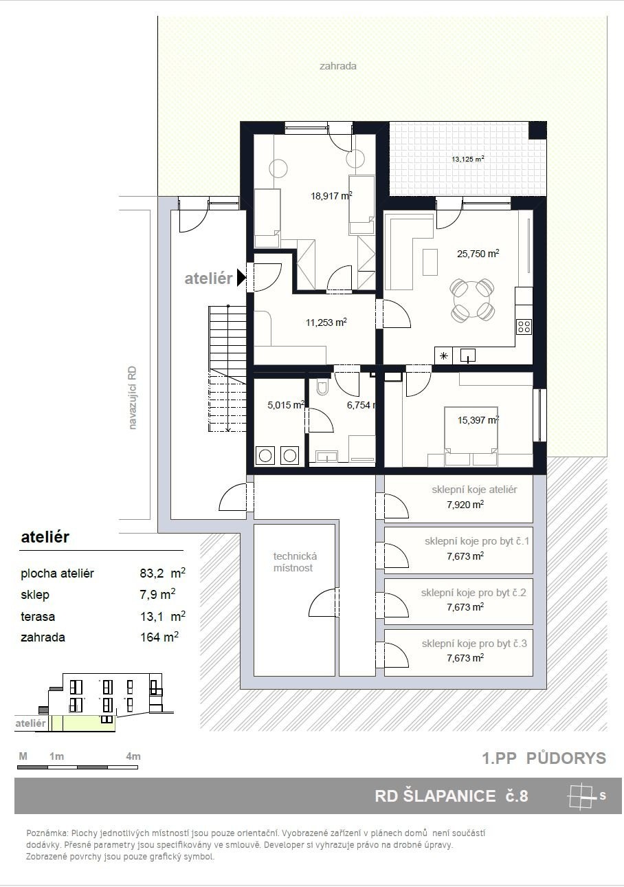
Prodej ateliéru 83,2m2, Šlapanice

Prodejce

Makléř: Krejčí Jana

Telefon: 733 636 ...

E-mail: reality@ ...

Zobrazit celý kontakt

prodej

Šlapanice (okres Brno-venkov)

Byty, Byt 3+kk

00021

25.12.2025

1 (dům má 2 podlaží)

osobní

104 m2

83 m2

B - Velmi úsporná

Cena: 12618100 CZK / objekt
Poznámka k ceně: včetně DPH, včetně poplatků, včetně provize, včetně právního servisu 1
Prodejce

Makléř: Krejčí Jana

Telefon: 733 636 ...

E-mail: reality@ ...

Zobrazit celý kontakt
Poslat dotaz k nabídce
Zásady používání osobních údajů

Nemovitost nabízí

/loga_velka/10438.webp

LUX Real s.r.o.

Řípská 1181/18, Brno

www.janakrejci.com

Zobrazit kontakt na RK

Zobrazit všechny nabídky RK

V rámci projektu Nové Šlapanice, který vyrůstá na okraji města Šlapanic si Vám dovolujeme představit výjimečné a na danou lokalitu ojedinělé bydlení. Představujeme Vám 3.etapu, která je zaměřena na výstavbu 4 viladomů, se 3 bytovými jednotkami a ateliérem. Je to ideální místo pro ty, kteří hledají kvalitní, moderní, prostorné a dispozičně chytře řešené bydlení. V tomto projektu nabízíme k prodeji ateliér 3+KK s terasou a zahradou. Součástí prodeje bytu je kuchyňská linka, dělaná na míru. K bytu náleží i sklep 7,9m2 a 1 parkovací stání, která jsou součástí kupní ceny. Možnost dokoupení dalšího parkovacího stání za cenu 200.000,-Kč. V celém bytě jsou venkovní žaluzie. Viladům č.8 na ulici Stanislava Hanzelky Byt č.3 o celkové ploše je umístěn v 1.PP Dispozice: chodba 11,25m2, obývací pokoj s kuchyňským koutem 25,75m2, ložnice 18,91m2, dětský pokoj 15,39m2, koupelna se sprchovým koutem včetně WC 6,75m2, technická místnost 5,01m2. Z obývacího pokoje přes terasu o výměře 13,12m2 na zahradu 164m2. Standarty bytu, které jsou součástí kupní ceny: - podlahy vinyl, keramická dlažba - koupelna - sanitární technika, 1x umyvadlo včetně baterie, sprchový kout, včetně WC, zrcadla, obklady - mramor - interiérové dveře + obložkové zárubně, vstupní dveře - podlahové vytápění, topné těleso - venkovní světla - příprava na klimatizaci - kuchyňská linka Samotná lokalita nabízí širokou škálu pracovních možností a veškerou potřebnou občanskou vybavenost a výbornou dojezdnost díky dálnici D1 a D2. Také zde v docházkové vzdálenosti nalezneme školu, školku, řadu obchodů, restaurací a služeb, trolejbusovou zastávku, ale především vlakové nádraží, z kterého jste na Hlavním vlakovém nádraží v Brně va 15 min. Dokončení bytů je plánované na 3Q roku 2026. Výhodou je model financování nemovitosti. Pokud by Vás nabídka tohoto či jakéhokoliv jiného bytu v tomto projektu zaujala, kontaktujte prosím makléře, u kterého se dozvíte více. Děláme moderní bydlení dostupnější.



Nahoru