Prodej bytu 4+kk 123,5m2, Šlapanice
Makléř: Krejčí Jana
Telefon: 733 636 ...
E-mail: reality@ ...
Zobrazit celý kontaktTelefon: 733 636 380
E-mail: reality@janakrejci.com
prodej
00005
25.12.2025
2 (dům má 2 podlaží)
osobní
159 m2
123 m2
G - Mimořádně nehospodárná
Makléř: Krejčí Jana
Telefon: 733 636 ...
E-mail: reality@ ...
Zobrazit celý kontaktTelefon: 733 636 380
E-mail: reality@janakrejci.com
Nemovitost nabízí
LUX Real s.r.o.
Řípská 1181/18, Brno
Zobrazit kontakt na RK733 636 380
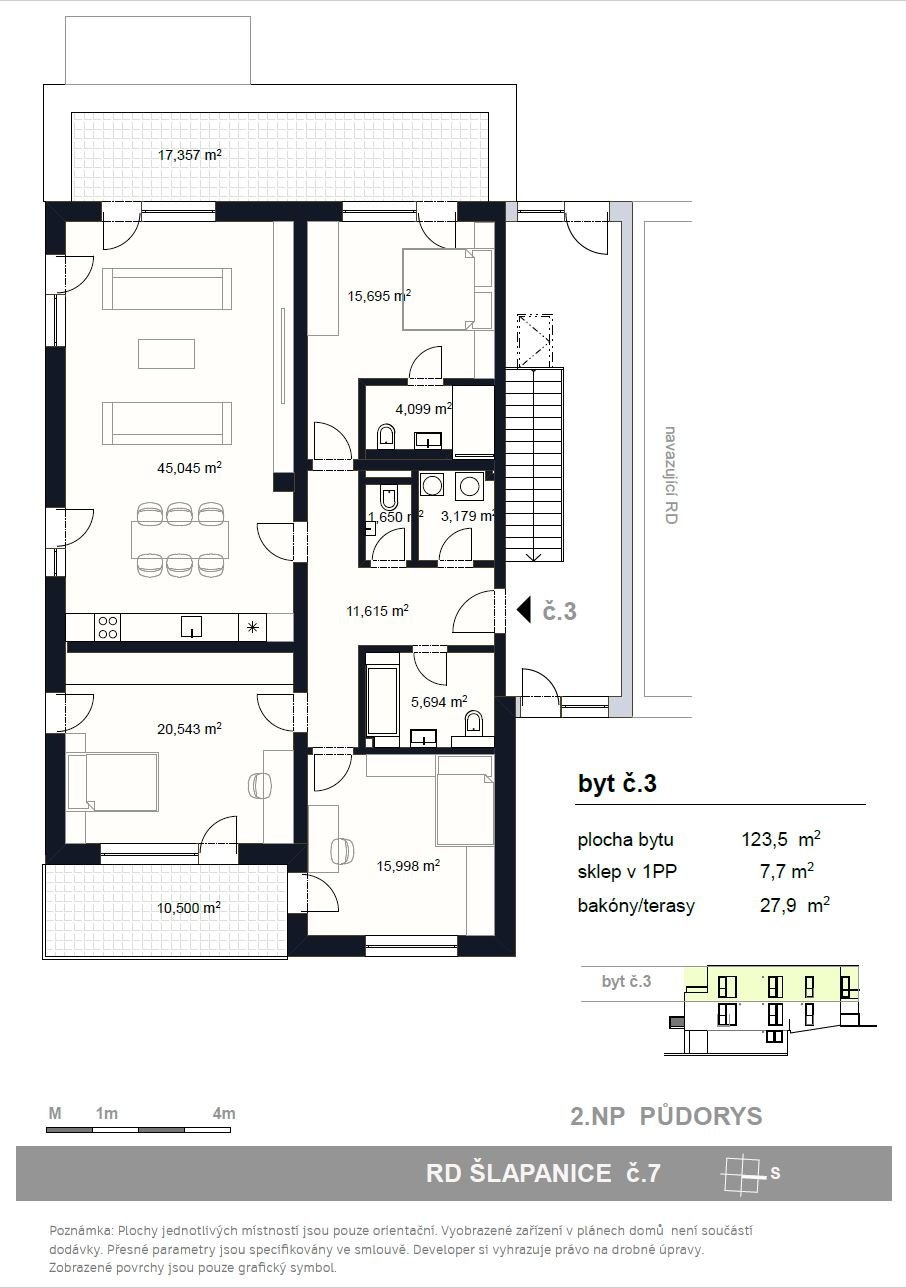
V rámci projektu Nové Šlapanice, který vyrůstá na okraji města Šlapanic si Vám dovolujeme představit výjimečné a na danou lokalitu ojedinělé bydlení. Představujeme Vám 3.etapu, která je zaměřena na výstavbu 4 viladomů, se 3 bytovými jednotkami a ateliérem. Je to ideální místo pro ty, kteří hledají kvalitní, moderní, prostorné a dispozičně chytře řešené bydlení. V tomto projektu nabízíme k prodeji byt 4+KK s terasou a balkonem. Součástí prodeje bytu je kuchyňská linka, dělaná na míru. K bytu náleží i sklep 7,7m2 a 1 parkovací stání, která jsou součástí kupní ceny. Možnost dokoupení dalšího parkovacího stání za cenu 200.000,-Kč. V celém bytě jsou venkovní žaluzie Viladům č.7 na ulic Stanislava Hanzelky Byt č.3 o celkové ploše je umístěn v 2.NP Dispozice: chodba 11,61m2, obývací pokoj s kuchyňským koutem 45,04m2, ložnice 15,69m2 s koupelnou s vanou včetně WC 4,09m2, dětský pokoj 20,54m2 se vstupem na balkon 10,5m2, druhý dětský pokoj 15,99 m2, koupelna s vanou včetně WC 5,69m2, technická místnost 3,17m2 a WC zvlášť 1,65m2. Z obývacího pokoje a ložnice je vstup na terasu o výměře 18m2. Standarty bytu, které jsou součástí kupní ceny: - podlahy vinyl, keramická dlažba - sanitární technika, 2x umyvadlo včetně baterie, 2x vana, 3 x závěsné WC, zrcadla, obklady - mramor - interiérové dveře + obložkové zárubně, vstupní dveře - podlahové vytápění, topné těleso - venkovní světla - příprava na klimatizaci - kuchyňská linka Samotná lokalita nabízí širokou škálu pracovních možností a veškerou potřebnou občanskou vybavenost a výbornou dojezdnost díky dálnici D1 a D2. Také zde v docházkové vzdálenosti nalezneme školu, školku, řadu obchodů, restaurací a služeb, trolejbusovou zastávku, ale především vlakové nádraží, z kterého jste na Hlavním vlakovém nádraží v Brně va 15 min. Dokončení bytů je plánované na 3Q roku 2026. Výhodou je model financování nemovitosti. Pokud by Vás nabídka tohoto či jakéhokoliv jiného bytu v tomto projektu zaujala, kontaktujte prosím makléře, u kterého se dozvíte více. Děláme moderní bydlení dostupnější.
Prodej bytu OV 4+kk - Šlapanice - Brněnská Pole - novostavba - lodžie - šatna
Nabízíme k prodeji velmi prostorný a moderně zařízený byt o velikosti 4+kk s šatnou, lodžií, sklepem v novostavbě cihlového domu, Šlapanice, ulice…
Prodej bytu 4+KK, 104,7 m2 s balkonem - Viladům Těsnohlídkova, Šlapanice ( B3)
V rámci projektu Viladům Těsnohlídkova ve Šlapanicích nabízím ke koupi prostorný a světlý mezonetový ateliér o dispozici 4+kk o celkové ploše 104,7…