Pronájem, Rodinný dům, Buštěhrad
Makléř: Mgr. Romana Trešlová
Telefon: 604 848 ...
E-mail: romana.t ...
Zobrazit celý kontaktTelefon: 604 848 564, 604 848 564
E-mail: romana.treslova@qara.cz
pronájem
Ořešín
18031
02.01.2026
1
56 m2
106 m2
G - Mimořádně nehospodárná
Makléř: Mgr. Romana Trešlová
Telefon: 604 848 ...
E-mail: romana.t ...
Zobrazit celý kontaktTelefon: 604 848 564, 604 848 564
E-mail: romana.treslova@qara.cz
Nemovitost nabízí
QARA s.r.o.
Šafaříkova 201/17, 120 00 Praha 2
Zobrazit kontakt na RK
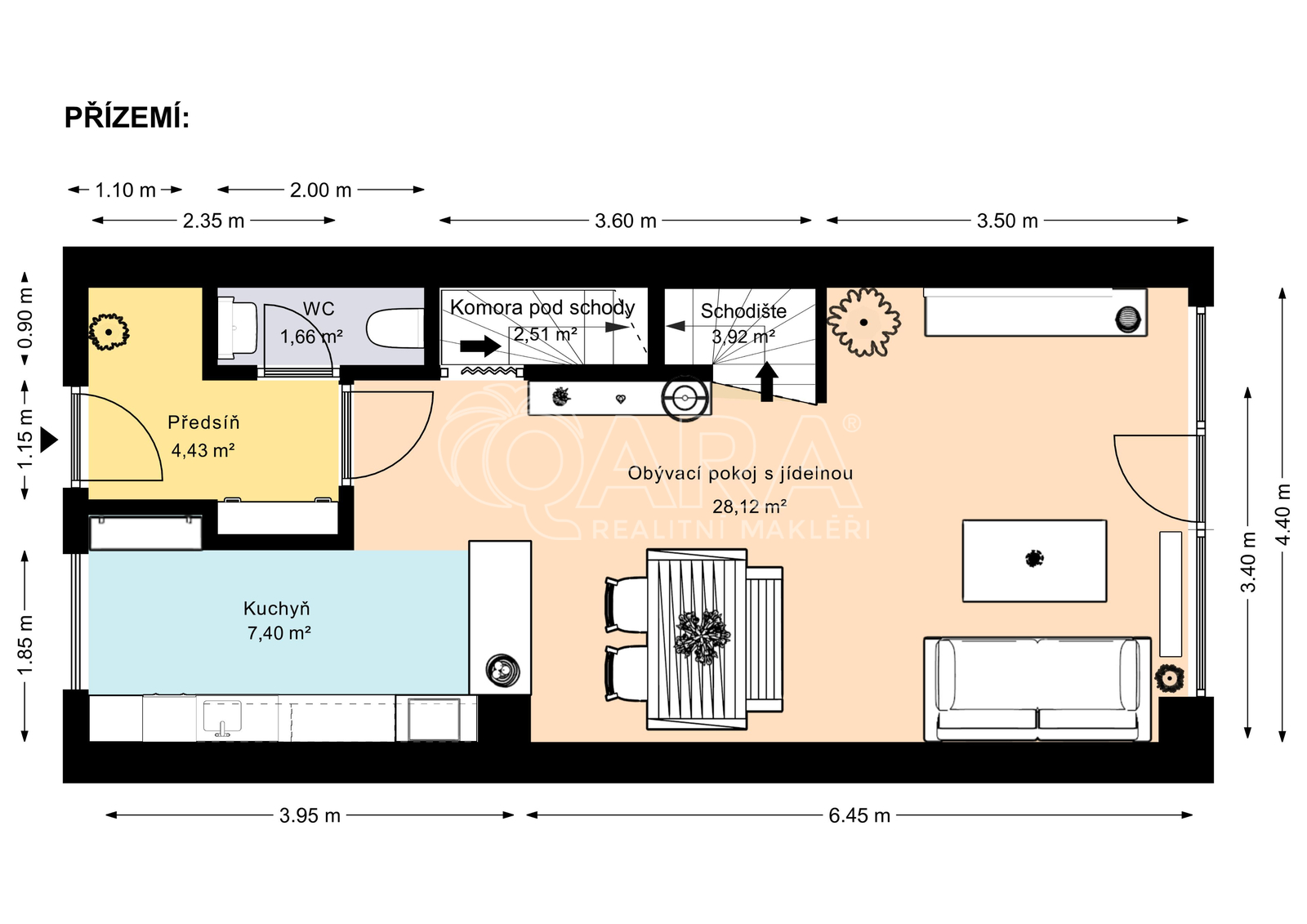
Pokud hledáte k pronájmu klidný a moderní dům se zahradou v dosahu veškerého komfortu velkoměsta, pak jste tu správně. Jedná se o řadový dům 3 + kk postavený v klidné nové čtvrti Buštěhrad - Ořešín. K domu patří dvě bezplatná parkovací stání. Přes zádveří se vstupuje do obývacího pokoje s výhledem do zahrady. Tento prostor je neskutečným bonusem celého domu, zahrada poskytuje Vašemu životu velký komfort. Pokračováním obývacího pokoje a neoficiální čtvrtou místností domu je vyhřívaná terasa, kde můžete trávit spoustu krásných večerů i v chladnějších měsících. Výhodou celého pozemku je i jeho propojení s okolím. Ze zahrady máte totiž přístup zadní brankou ven přímo do parku s nedalekým dětským hřištěm. Součástí přízemí je plně vybavený kuchyňský kout, samostatná toaleta a úložný prostor. Z obývacího pokoje v přízemí se po schodišti dostanete do podkroví, kde se nachází dva samostatné pokoje, koupelna se sprchovým koutem, vanou i WC a šikovně vyřešený pracovní kout na galerii nad schodištěm. Dům je vytápěný kondenzačním kotlem Protherm, v domě je klimatizace, voda je upravována změkčovačem vody a internetové spojení je zajišťováno místní firmou. Dům se pronajímá částečně zařízený - kuchyňská linka s vybavením, jídelní stůl se židlemi, gauč, postel, komody, vestavěné skříně, televizní stěna včetně velké TV. Vše moderní a funkční. Celý dům je nesmírně kompaktní s chytrým využitím úložných prostor a splňuje veškeré požadavky na moderní bydlení. Pro majitele hledám spolehlivého dlouhodobého nájemce. Odběr elektřiny a plynu přihlásím přímo na vás, abyste měli kontrolu nad vlastní spotřebou, vodné a stočné zůstává převedeno na majitele. Poplatky za vodné a stočné jsou 1.830 Kč měsíčně, za odvoz odpadu 1.100 Kč ročně. Poplatky za elektřinu 4 300 Kč a za plyn 1 500 Kč při provozu rodiny s dětmi a při práci z domova. Celková vstupní platba se skládá z nájemného na první měsíc ve výši 35 000 Kč + 2 vratné měsíční kauce ve výši 70 000 Kč + provize makléře ve výši 20 000 Kč. Pokud potřebujete více informací o lokalitě, nebo chcete dům navštívit, abyste zjistili, jak se vám v něm bude žít, ráda se s vámi setkám na prohlídce.
Pronájem rodinného domu 150 m2, 5+kk, pozemek 400 m2, v obci Drnek 10 km od Kladna.
Nabízíme Vám novostavbu rodinného domu o dispozici 5+kk,150m2 v obci Drnek s s podmínkou budoucího odkupu. Novostavba RD se dvěma byty. Pronajímá se…
Pronájem, Rodinný dům, Tuchlovice
Nabízíme k pronájmu novostavbu rodinného domu o dispozici 3+kk a obytné ploše 79 m2 v klidné části obce Tuchlovice. K domu náleží soukromá zahrádka…