Pronájem bytu 2+1, Na Záhonech, Michle, Praha
Makléř: Miloslava Kačerová
Telefon: 222 703 ...
E-mail: podpora@ ...
Zobrazit celý kontaktTelefon: 222 703 030
E-mail: podpora@idealninajemce.cz
pronájem
Na záhonech
N7085
06.01.2026
1 (dům má 5 podlaží)
osobní
60 m2
60 m2
C - Úsporná
Makléř: Miloslava Kačerová
Telefon: 222 703 ...
E-mail: podpora@ ...
Zobrazit celý kontaktTelefon: 222 703 030
E-mail: podpora@idealninajemce.cz
Nemovitost nabízí
Ideální nájemce
Lazaretní 925/9, 615 00 Brno
Zobrazit kontakt na RK222 703 030
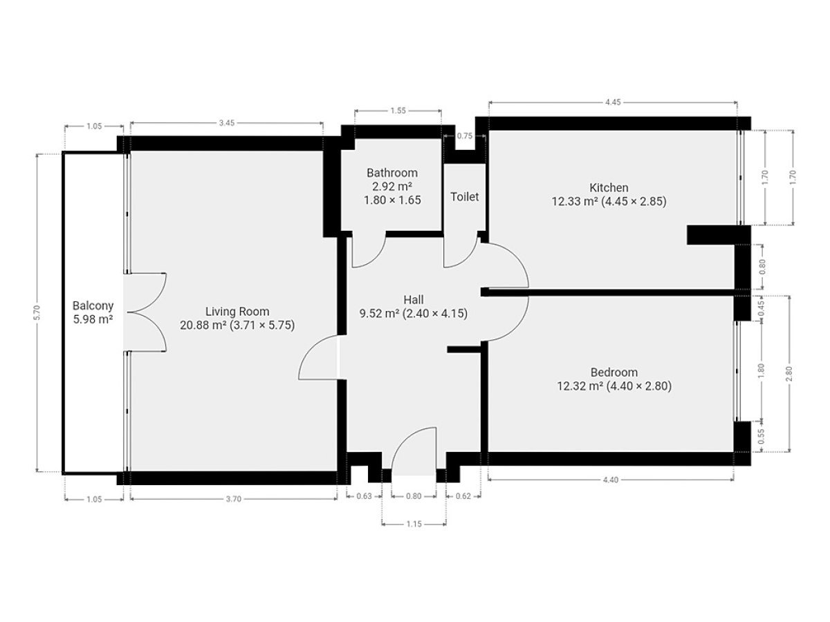
K dlouhodobému podnájmu Vám nabízíme krásný, světlý byt o dispozici 2+1, 60 m2 se sklepem, zasklenou lodžií a parkovacím stáním ve vnitrobloku. Byt se nachází v 1.NP cihlového domu. Skládá se ze vstupní chodby, zařízené velkou, vestavnou šatní skříní a botníkem. Obývacího pokoje se vstupem na velmi prostornou lodžii, ložnice a kuchyně orientované do vnitrobloku. Koupelny s vanou a umyvadlem. Toaleta je umístěna samostatně. Kuchyně je zařízena plynovým sporákem, digestoří, lednicí a pračkou. Byt se nabízí zařízený tak, jak vidíte na fotografií. Dům se nachází ve velmi klidné, přesto dobře dopravně dostupné lokalitě pražské Michle, ulice Na Záhonech. Přímo vedle domu se nachází obchod se smíšeným zbožím Žabka, základní i mateřská škola a autobusová zastávka "V Zápolí" s přímým spojením na Smíchov. Byt je k dispozici ihned. Zálohové platby už obsahují zálohy na elektřinu a pojištění domácnosti.
2+1/B, 51,6 m2, 3 p., po rekonstrukci, ul. Čílova, Praha 6 - Veleslavín
Zprostředkujeme Vám pronájem bytové jednotky s balkonem, dispozičně řešené jako 2+1, o užitné ploše 51,6 m2 plus plocha balkonu. Byt se nachází ve…
Pronájem bytu 2+1, Pod Šmukýřkou, Košíře, 22500 Kč/měs, 61 m2
K dlouhodobému podnájmu nabízíme prosluněný byt po celkové rekonstrukci, nacházející se ve 2. patře starší cihlové budovy v klidné lokalitě Praha -…