Vybírejte z nabídky 37 128 nemovitostí od 814 realitních kanceláří
lupa mobilní menu
Přehled nemovitostí: pronájem byty > 4+kk > Praha Zpět na přehled nabídek

Pronájem, Byt 4+kk, Praha 4

Prodejce

Makléř: Michal Radotínský

Telefon: 777 106 ...

E-mail: michal.r ...

Zobrazit celý kontakt

pronájem

Praha (okres Praha 4)

U zeleného ptáka

Byty, Byt 4+kk

P004819

03.01.2026

4 (dům má 4 podlaží)

osobní

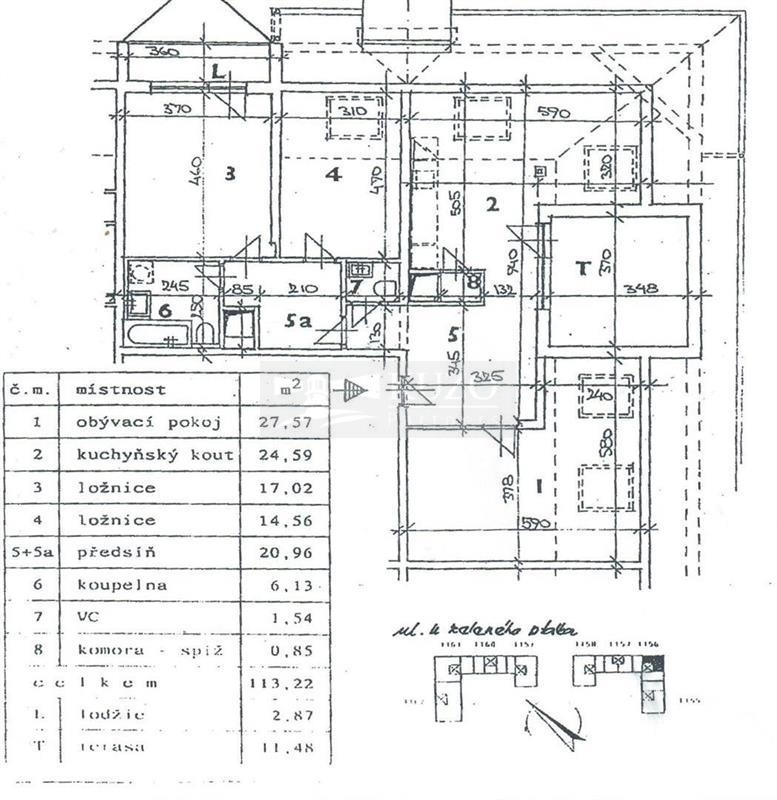
127 m2

113 m2

G - Mimořádně nehospodárná

Cena: 41500 CZK / objekt / měsíc
Poznámka k ceně: zúčtovatelné poplatky 8.900 Kč + přepis elektřiny; NEPLATÍTE PROVIZI 1
Prodejce

Makléř: Michal Radotínský

Telefon: 777 106 ...

E-mail: michal.r ...

Zobrazit celý kontakt
Poslat dotaz k nabídce
Zásady používání osobních údajů

Nemovitost nabízí

/loga_velka/10079.webp

Michal Radotínský KUZO Partners

www.kuzopartners.cz

Zobrazit kontakt na RK

Zobrazit všechny nabídky RK

Nabízíme k pronájmu příjemný slunný byt v klidné části Kunratic. Jedná se o byt 4+kk, kde jsou všechny pokoje neprůchozí, výraznou dominantou je potom terasa s výhledem na Kunratice. Jeden z pokojů má i vlastní lodžii. V bytě je koupelna s pračkou a WC, další WC je samostatné. Byt je situovaný ve 3. patře s výtahem (výtah jede pouze do 2. patra). V okolí je veškerá občanská vybavenost, do OC Westfield Chodov je to 5 minut autem. NEPLATÍTE PROVIZI.



Nahoru