Prodej, Rodinný dům, Dolní Rožínka
Makléř: David Holub
Telefon: 605 931 ...
E-mail: info@rea ...
Zobrazit celý kontaktTelefon: 605 931 999
E-mail: info@realityholub.cz
prodej
Dolní Rožínka (okres Žďár nad Sázavou)
N00535
05.01.2026
4
osobní
841 m2
250 m2
G - Mimořádně nehospodárná
Makléř: David Holub
Telefon: 605 931 ...
E-mail: info@rea ...
Zobrazit celý kontaktTelefon: 605 931 999
E-mail: info@realityholub.cz
Nemovitost nabízí
Realitní kancelář David Holub
Minská 44, Brno
Zobrazit kontakt na RK605 931 999
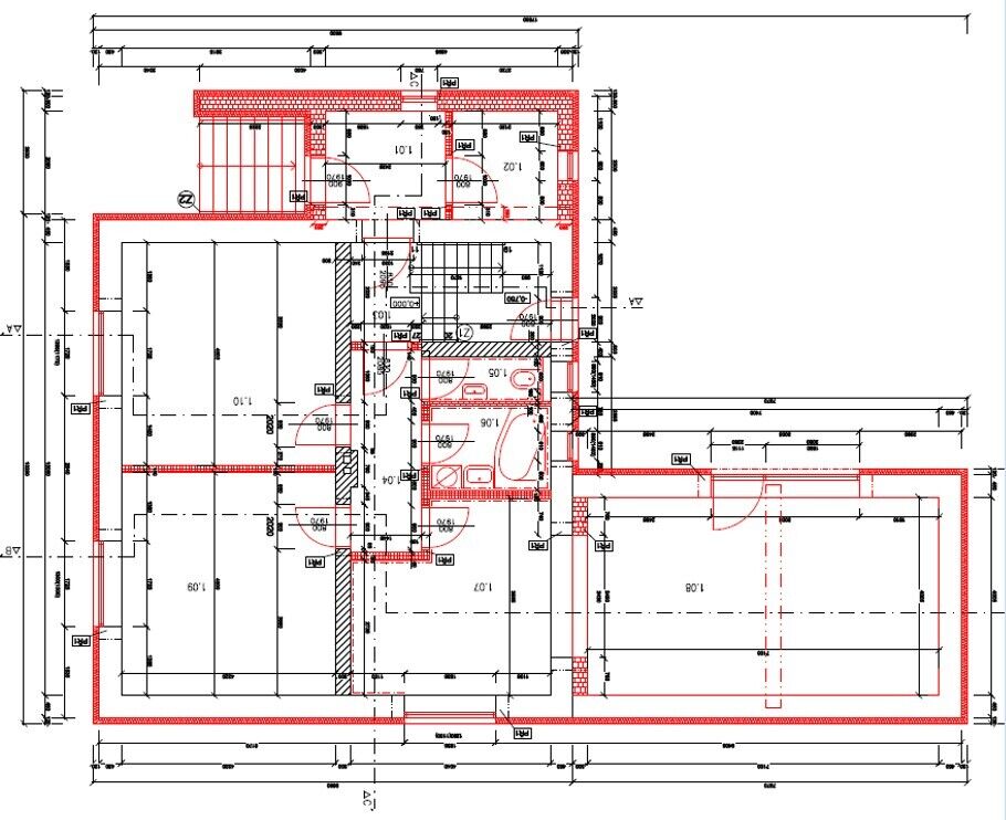
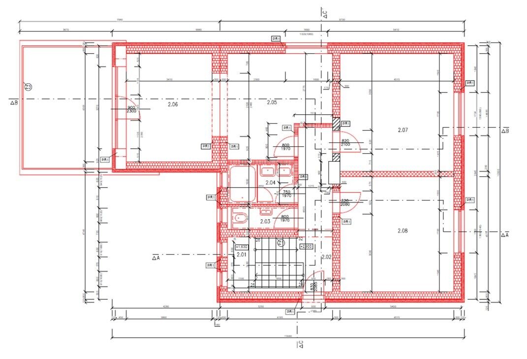
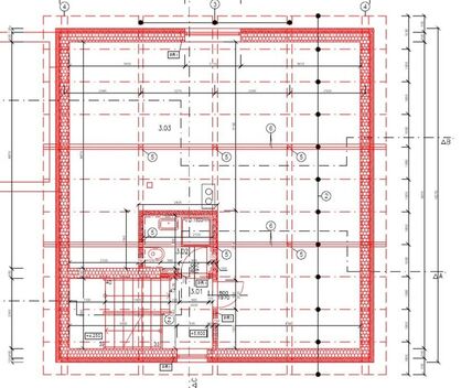
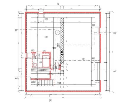
Ve výhradním zastoupení nabízím k prodeji RD v klidné ulici v obci Dolní Rožínka. Nové Město na Moravě je vzdáleno 16km, Bystřice n. Pernštejnem 8km. Celková plocha pozemku činí 798m2, z toho aktuálně zastavěná plocha domu je cca 120m2. Dům je nyní ve fázi hrubé stavby - rekonstrukce / rozšíření. Vydáno stavební povolení, v ceně je k dispozici projekt a stavební dokumentace vč. PENB. Veškeré IS + Cetin. Možnost dvougeneračního bydlení, nebo dvou samostatných bytových jednotek 3+1 (příp. další v podkroví). Dispozice : 1.PP 64m - kotelna 19,67m2, koupelna + WC 4,35m2, dílna / sklad 40m2 1.NP 112,2,m2 - schodiště 8,61m2, předsíň 5,34m2, šatna 4,66m2, hala 5,92m2, WC 2,07m2, koupelna 4,17m2, kuchyně 14,11m2 s výstupem na zahradu, obývací pokoj 28,44m2, 2x pokoj 19,44m2 2.NP 112,79m2m - schodiště 6,1m2, chodba 8,62m2, WC 2,52m2, koupelna 4,24m2, kuchyně 15,42m2 s výstupem na terasu 19,4m2, obývací pokoj 14,68m2, pokoj 21,15m2, pokoj 20,66m2. 3.NP (Podkroví) 45,5m2 - schodiště 9,5m2, koupelna / WC 3,7m2, prostor 32,3m2 (možnost využití herna / pracovna / úložný půdní prostor...) Prohlídka možná po dohodě na tel. 605 931 999 nebo e-mailu holub@bravoreality.cz
Prodej RD Dolní Libochová
Nabízíme k prodeji samostatně stojící rodinný dům v Dolní Libochové, okres Žďár nad Sázavou. Dům se nachází ve velmi klidné části obce a je určen k…
Prodej rodinného domu, 165 m2, Švařec - Koroužné
Nabízíme k prodeji samostatně stojící rodinný dům v obci Švařec. Obec se nachází v klidném údolí řeky Svratky, nedaleko Koroužné v okrese Žďár nad…