Vybírejte z nabídky 37 039 nemovitostí od 813 realitních kanceláří
lupa mobilní menu
Přehled nemovitostí: pronájem byty > 2+1 > Praha Zpět na přehled nabídek

Pronájem, Byt 2+1, Praha 3

Prodejce

Makléř: Richard Dobiaš

Telefon: 775 252 ...

E-mail: richard. ...

Zobrazit celý kontakt

pronájem

Praha (okres Praha 3)

Žerotínova

Byty, Byt 2+1

78783

05.01.2026

2 (dům má 5 podlaží)

osobní

70 m2

70 m2

G - Mimořádně nehospodárná

Cena: 26000 CZK / objekt / měsíc
Poznámka k ceně: + 1.800 služby pro 2 osoby, elektřina a plyn přepis na nájemce ( měsíční záloha 4.000), vratná kauce 35.000 1
Prodejce

Makléř: Richard Dobiaš

Telefon: 775 252 ...

E-mail: richard. ...

Zobrazit celý kontakt
Poslat dotaz k nabídce
Zásady používání osobních údajů

Nemovitost nabízí

/loga_velka/10014.webp

Home Sweet Home

Pařížská 1073/1, 110 00 Praha 1

www.homesweethome.cz

Zobrazit kontakt na RK

Zobrazit všechny nabídky RK

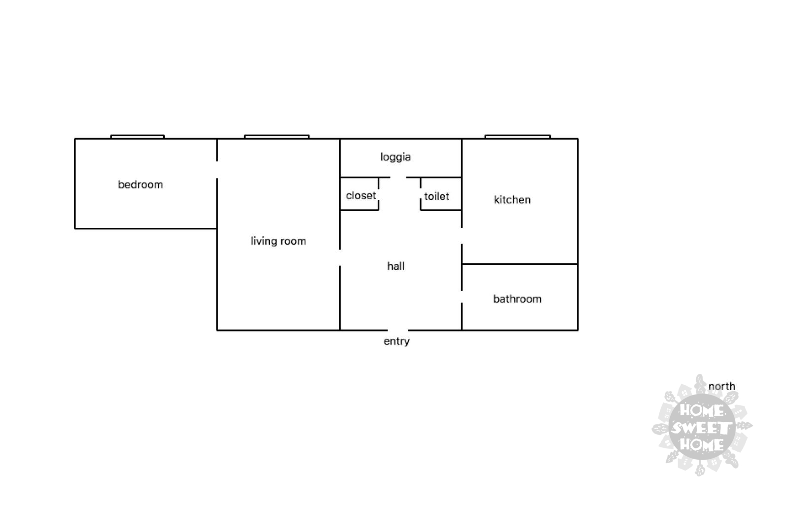
Nabízíme k pronájmu hezký částečně vybavený byt 2+1 s balkonem, který se nachází ve 2.patře cihlového domu s výtahem, v ulici Žerotínova na Žižkově. Dispozice bytu: vstupní chodba vybavená vestavěnou skříní, komodou a botníkem, obývací pokoj se sedačkou, samostatná ložnice se skříní a komodou, kuchyně s jídelním stolem a moderní kuchyňskou linkou (sklokeramická deska, trouba, myčka, pračka, lednice a mikrovlnka), koupelna se sprchovým koutem, toaleta zvlášť. Dostatek úložného prostoru - komora, sklep. Na podlaze PVC, plovoucí podlaha, topení WAW. Klidné bydlení na Praze 3. Kompletní občanská vybavenost a skvělá dopravní dostupnost. Není vhodné na spolubydlení. K dispozici od 1.2.2026



Nahoru