Vybírejte z nabídky 37 122 nemovitostí od 815 realitních kanceláří
lupa mobilní menu
Přehled nemovitostí: prodej domy > rodinné domy > Horní Třešňovec Zpět na přehled nabídek

Prodej rodinného domu, 847 m2, Horní Třešňovec

Prodejce

Makléř: Pechová Štěpánka

Telefon: 296 399 ...

E-mail: info@mmr ...

Zobrazit celý kontakt

prodej

Horní Třešňovec (okres Ústí nad Orlicí)

Domy, Rodinné domy

928220

06.01.2026

1

osobní

2 600 m2

847 m2

G - Mimořádně nehospodárná

Cena: 13900000 CZK / objekt
Prodejce

Makléř: Pechová Štěpánka

Telefon: 296 399 ...

E-mail: info@mmr ...

Zobrazit celý kontakt
Poslat dotaz k nabídce
Zásady používání osobních údajů

Nemovitost nabízí

/loga_velka/7301.jpg

M&M reality holding a.s.

Krakovská 1675/2, 110 00 Praha 1

www.mmreality.cz

Zobrazit kontakt na RK

Zobrazit všechny nabídky RK

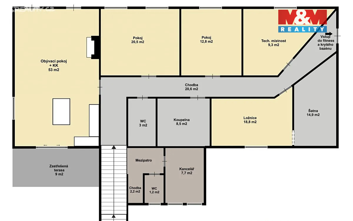
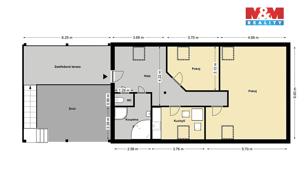
Nabízíme k prodeji výjimečnou rezidenci-multifunkční vícegenerační dům, který splňuje nároky na komfortní bydlení, soukromé wellness i podnikatelské využití na jednom místě. Nemovitost disponuje třemi samostatnými bytovými jednotkami. Dominantou domu je byt 5+1 s terasou a s přímým vstupem do fitness, bazénu a sauny.Tento byt disponuje luxusní kuchyní, krásným dech beroucím kachlovým krbem, dvě pracovny, dětským pokojem a ložnicí s velikou šatnou. K tomuto bytu je přistavěná samostatná přístavba, ve které se nachází bezbariérový byt 3+KK a nad ním podkrovní byt 2+1. Dům prošel v roce 2018 rekonstrukcí a může dobře sloužit jak k trvalému bydlení, tak i k podnikání v různých oblastech např. rekreační, penzion s ubytováním s nabídkou welness, fitness, plavání a sportovní aktivity. Veliké garážové prostory se dají využít například jako autodílna. V roce 2023 zřízená nová fotovoltaika pro úsporu energie. Velkém benefitem je také plánované otevření úseku dálnice D35. Zavolejte si o prohlídku



Nahoru