Vybírejte z nabídky 36 393 nemovitostí od 797 realitních kanceláří
lupa mobilní menu
Přehled nemovitostí: pronájem byty > 1+1 > Nový Jičín Zpět na přehled nabídek

Pronájem bytu 1+1, Nový Jičín, ul.Dvořákova.

Prodejce

Makléř: Akantis Viktor

Telefon: 420 737 ...

E-mail: viktor.a ...

Zobrazit celý kontakt

pronájem

Nový Jičín (okres Nový Jičín)

Dvořákova

Byty, Byt 1+1

972750

06.02.2026

2 (dům má 4 podlaží)

osobní

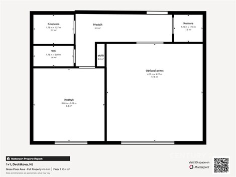
42 m2

42 m2

G - Mimořádně nehospodárná

Cena: 10000 CZK / objekt / měsíc
Poznámka k ceně: + zálohy na energie a služby 1
Prodejce

Makléř: Akantis Viktor

Telefon: 420 737 ...

E-mail: viktor.a ...

Zobrazit celý kontakt
Poslat dotaz k nabídce
Zásady používání osobních údajů

Nemovitost nabízí

/loga_velka/10033.webp

CENTURY 21 3D Reality

Gregorova 1412/12, 741 01 Nový Jičín

www.century21.cz/kancelar-3d-reality

Zobrazit kontakt na RK

Zobrazit všechny nabídky RK

Nabízíme k pronájmu světlý a velmi udržovaný byt o dispozici 1+1 a celkové výměře 42 m2, který se nachází ve 3. nadzemním podlaží ze 4 cihlového domu bez výtahu. Byt je v původním, ale pečlivě udržovaném a čistém stavu. Podlahy tvoří kombinace parket, koberců a PVC, okna jsou plastová. Dům je zateplen, což přispívá k nižším nákladům na bydlení. K bytu náleží sklepní kóje. Byt je aktuálně zařízený, po dohodě je možné jej pronajmout i nezařízený. K nastěhování ihned. Velkou výhodou je klidná lokalita s minimálním hlukem, přesto téměř v centru města, s dobrou dostupností služeb, MHD i občanské vybavenosti. Vhodné pro jednotlivce nebo pár, kteří hledají klidné bydlení v dobré lokalitě. Cena nájmu činí 10.000, Kč + zálohy na topení 1.500, Kč + záloha na vodu ve výši 700, Kč/osoba. Elektřinu a plyn (pouze na vaření) si budoucí nájemním přepíše na sebe. Majitel požaduje vratnou kauci ve výši 20.000, Kč + provize RK 10.000, Kč + DPH.



Nahoru