Vybírejte z nabídky 36 984 nemovitostí od 815 realitních kanceláří
lupa mobilní menu
Přehled nemovitostí: pronájem byty > 3+kk > Benešov Zpět na přehled nabídek

Pronájem, Byt 3+kk, Benešov

Prodejce

Makléř: Martina Kavková, MBA

Telefon: 602 684 ...

E-mail: kavkova@ ...

Zobrazit celý kontakt

pronájem

Benešov (okres Benešov)

Křižíkova

Byty, Byt 3+kk

650275

08.01.2026

2 (dům má 3 podlaží)

osobní

62 m2

62 m2

E - Nehospodárná

Cena: 15000 CZK / objekt / měsíc
Poznámka k ceně: +popl. 4213, cena měsíčního pronájmu nezahrnuje poplatky za užívání bytu (vodné, teplo, energie) 1
Prodejce

Makléř: Martina Kavková, MBA

Telefon: 602 684 ...

E-mail: kavkova@ ...

Zobrazit celý kontakt
Poslat dotaz k nabídce
Zásady používání osobních údajů

Nemovitost nabízí

/loga_velka/6242.jpg

Dumrealit.cz

Svornosti 8, 150 00 Praha 5

www.dumrealit.cz

Zobrazit kontakt na RK

Zobrazit všechny nabídky RK

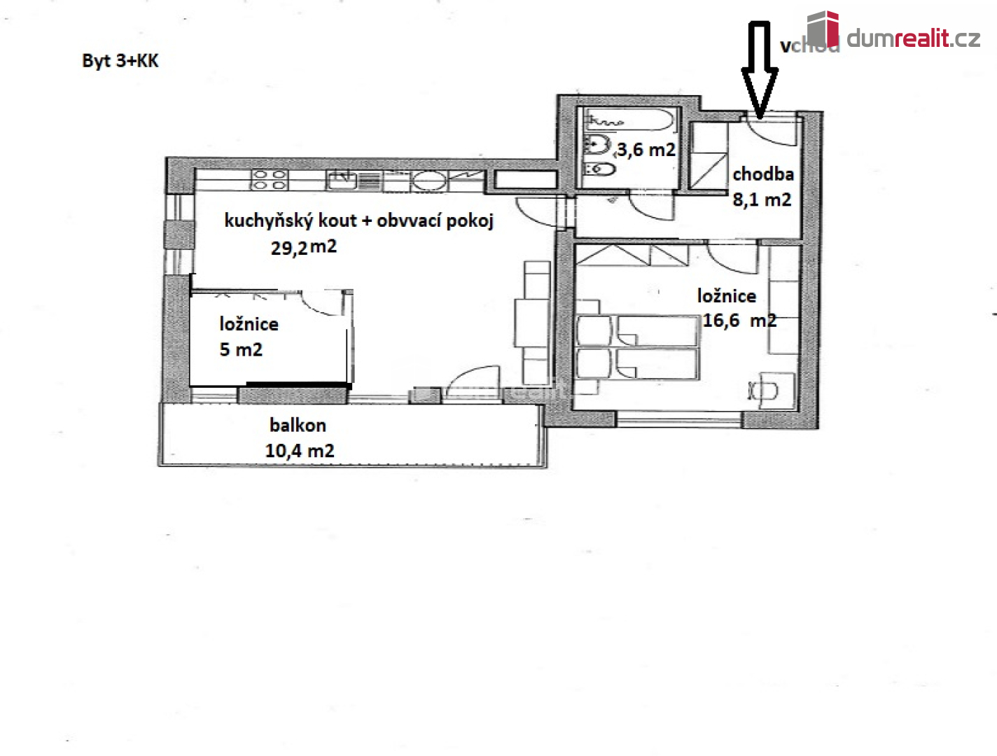
Dumrealit.cz Vám zprostředkuje pronájem bytu 3 + KK, 62 m2 +10 m2 balkón, v ul. Křižíkova, v Benešově. Bytová jednotka se nachází v cihlovém domě z r. 20210, v 2.NP. Dispozice: ze vstupní chodby je samostatný vstup do ložnice s vestavěnou skříní, koupelny osazené vanou, umyvadlem a WC, dále do obývacího pokoje s kuchyňským koutem se spotřebiči (el. varná deska, el. trouba, digestoř). Z této centrální části bytu je vstup do maličké ložnice a na balkón. Součástí pronájmu je koje (cca 2 m2) a nekryté parkovací stání pro jeden automobil před domem. Měsíční nájemné činí15.000 Kč + 4.213 Kč poplatky. Zálohy na spotřebu elektrické energie si nájemce převede u dodavatele na sebe. Vratná kauce činí 30.000 Kč. Při podpisu nájemní smlouvy je třeba uhradit odměnu RK ve výši jednoho nájemného. Byt bude připravený k pronájmu od 2/2026. Lokalita je klidná, v okolí bytové domy, 10 min. pěší chůze na nádraží BUS, vlak. Benešov poskytuje plnou občanskou vybavenost. Pro více informací, volejte na uvedené telefonní číslo. Ráda Vám byt osobně představím. Ev. číslo: 650275. Energetický štítek: E (109 kWh/m2/rok).



Nahoru