Pronájem bytu 3+1 s lodžií Třeboň
Makléř: Ing. BOROVKA Jan
Telefon: 728 147 ...
E-mail: jan.boro ...
Zobrazit celý kontaktTelefon: 728 147 922
E-mail: jan.borovka@trebonskarealitni.cz
pronájem
Třeboň (okres Jindřichův Hradec)
Svobody
001533
08.01.2026
neuvedeno
osobní
72 m2
neuvedeno
C - Úsporná
Makléř: Ing. BOROVKA Jan
Telefon: 728 147 ...
E-mail: jan.boro ...
Zobrazit celý kontaktTelefon: 728 147 922
E-mail: jan.borovka@trebonskarealitni.cz
Nemovitost nabízí
Třeboňská realitní s.r.o.
Holičky 50, Třeboň 379 01
Zobrazit kontakt na RKmartin.svanda@trebonskarealitni.cz
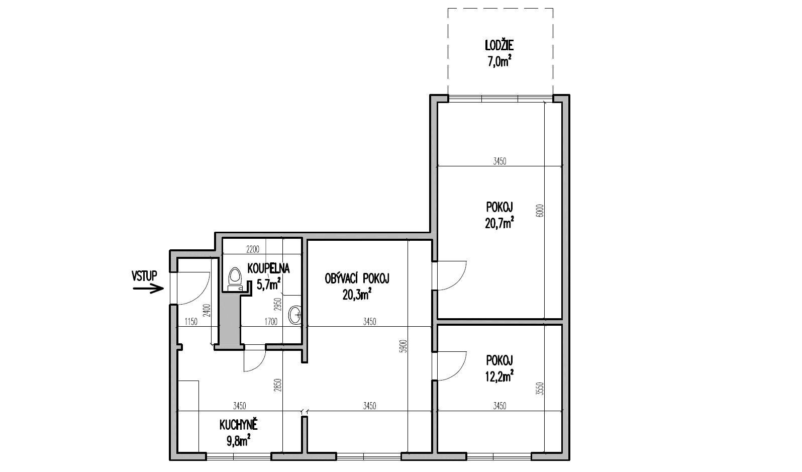
Nabízíme k pronájmu byt 3+1 s lodžií na atraktivním místě v Třeboni. Byt o celkové výměře 72 m2 se nachází v přízemí bytového domu a skládá se z chodby, ze které je vstup do kuchyně s jídelnou. Z kuchyně je dále vstup do koupelny a obývacího pokoje. Obývací pokoj je průchozí do pokoje a ložnice, ze které je vstup na lodžii. K bytu je možné užívat i sklepní kóji a společnou kolárnu. Dispoziční řešení a velikosti jednotlivých místností naleznete na přiloženém půdorysu. Bezplatné parkování je možné přímo před domem na veřejném parkovišti. Energetická třída C úsporná. Byt je ihned k dispozici a je určen k dlouhodobému nájmu. Nájemné je 14.000,-Kč/měs., zálohy za služby 5.000,-Kč/měs. (elektřina, voda, vytápění, atd.) Kauce 2x měsíční nájem + provize RK
Pronájem, Bytu 3+1, 67 m2 v obci Vlčice Střížovice
Hledáte klidné bydlení v dojezdové vzdálenosti od Jindřichova Hradce? V zastoupení majitelky vám nabízíme k pronájmu byt 3+1, o velikosti 67,42 m2…
Pronájem, byt 3+1, 61 m2, Jindřichův Hradec, sídliště Vajgar
Pronájem bytu o celkové výměře 61 m2 ve třetím patře panelového domu s výtahem na sídlišti Vajgar, Jindřichův Hradec. Dispozice 3+1 nabízí vstupní…
Pronájem bytu 3+1 Třeboň na Eurobydleni.cz